Bildegalleri

Velkommen til Navestadveien 105!
Navestad
Sjarmerende enebolig på stor og solrik tomt - Alt på et plan
Prisantydning3 700 000 kr
Nøkkelinfo
- Boligtype
- Enebolig
- Eieform
- Eier (Selveier)
- Soverom
- 2
- Internt bruksareal
- 96 m² (BRA-i)
- Bruksareal
- 96 m²
- Balkong/Terrasse
- 30 m² (TBA)
- Byggeår
- 1946
- Energimerking
- F - Gul
- Rom
- 3
- Tomteareal
- 1 944 m² (eiet)
Fasiliteter
Barnevennlig
Balkong/Terrasse
Garasje/P-plass
Offentlig vann/kloakk
Peis/Ildsted
Turterreng
Rolig
Visning
mandag, 02. februar
16:30 – 17:30
Velkommen til visning!
Alle våre visninger har påmelding. På denne måten sikrer vi at megler har god oversikt og tid til å imøtekomme alle interessenter på beste måte. Dette er veldig verdifullt for boligkjøpere og for oss. Det er enkelt å melde seg på, og du kan like enkelt melde deg av. Kontakt også gjerne megler i forkant av visning dersom du har spørsmål.
Om boligen
Navestad ligger sentralt og barnevennlig til på Borgenhaugen, kun få kilometer fra Sarpsborg sentrum. Området har både skole, barnehage og gode bussforbindelser. Det er enkel adkomst til Fv 111 og E6 mot både Oslo og Gøteborg. I nærheten finner du Iseveien senter, Skjeberg Golfklubb og flotte turområder ved Børtevann og Langen.
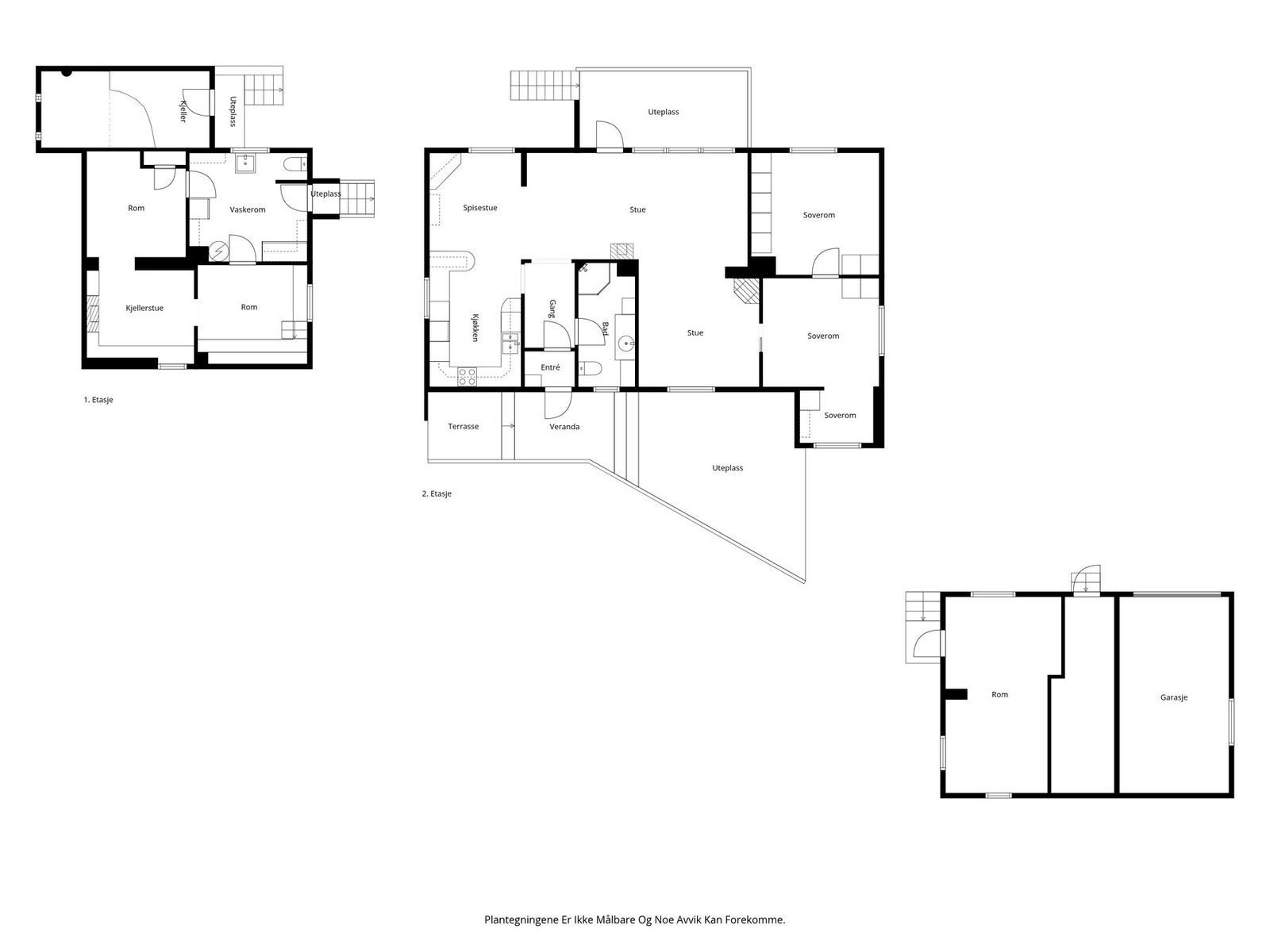
Boligen har alt på ett plan med entré, bad, gang, romslig stue/kjøkken og to soverom. Store vindusflater gir rikelig lys, og varme sørges for via vedovn, varmepumpe og elektrisk gulvvarme. Kjelleren byr på ekstra rom med lav takhøyde. Eiendommen har garasje/uthus og en stor, pent opparbeidet tomt med plen og beplantning - et sjeldent funn i området.
Et perfekt hjem for deg som ønsker landlig ro med byens tilbud like i nærheten.
Boligen har alt på ett plan med entré, bad, gang, romslig stue/kjøkken og to soverom. Store vindusflater gir rikelig lys, og varme sørges for via vedovn, varmepumpe og elektrisk gulvvarme. Kjelleren byr på ekstra rom med lav takhøyde. Eiendommen har garasje/uthus og en stor, pent opparbeidet tomt med plen og beplantning - et sjeldent funn i området.
Et perfekt hjem for deg som ønsker landlig ro med byens tilbud like i nærheten.
NB: Knappen for å vise hele beskrivelsen har kun en visuell effekt.
NB: Knappen for å vise hele beskrivelsen har kun en visuell effekt.
Salgsoppgaven beskriver vesentlig og lovpålagt informasjon om eiendommen
Se komplett salgsoppgaveNyttige lenker
Nærområdet

PrivatMegleren Sarpsborg
Kun det beste på dine vegne
Annonseinformasjon
| FINN-kode | 435854340 |
|---|---|
| Sist endret | 23. jan. 2026 09:44 |
| Referanse | 193250219 |
Annonsene kan være mangelfulle i forhold til lovpålagt opplysningsplikt. Før bindende avtale inngås oppfordres interessenter til å innhente komplett informasjon fra meglerforetaket, selger eller utleier.



























