Bildegalleri

Velkommen til Edvard Griegs vei 17!
Påkostet og moderne enebolig med to stuer, store uteplasser og unik plassering mot grøntområde *Muligheter i u.etasje
Nøkkelinfo
- Boligtype
- Enebolig
- Eieform
- Eier (Selveier)
- Soverom
- 3
- Internt bruksareal
- 271 m² (BRA-i)
- Bruksareal
- 271 m²
- Eksternt bruksareal
- 17 m² (BRA-e)
- Balkong/Terrasse
- 38 m² (TBA)
- Byggeår
- 1978
- Energimerking
- D - Gul
- Tomteareal
- 410 m² (eiet)
- Boligselgerforsikring
- Ja
Fasiliteter
Visning
Om boligen
Velkommen til en påkostet og moderne enebolig med høy kvalitet, flott arkitektonisk uttrykk og svært attraktiv beliggenhet mot friareal på Eiganes. Boligen fremstår gjennomført med lys og sosial planløsning, store vindusflater, to stuer og flere solrike uteplasser. Her får man en kombinasjon av moderne komfort og et nabolag som byr på trygge omgivelser for både store og små.
Eiendommen grenser til grønt friareal og har akebakken rett utenfor, et sjeldent barnevennlig og sosialt nabolag. Kort vei til Stokkadalen barnehage, Eiganes skole, butikk, buss og turområder rundt Stokkavannet og Byhaugen.
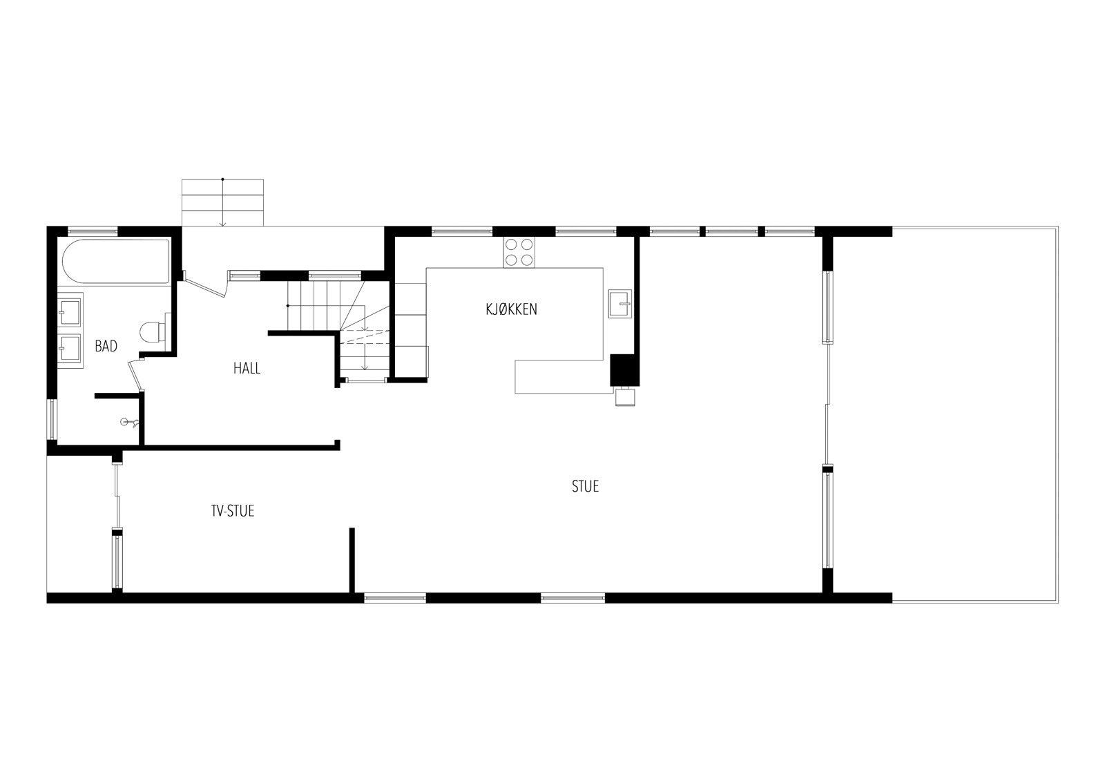
2. etasje: Tre soverom, bad og loftsstue
1. etasje: Entré, gang, bad, stue, spisestue og kjøkken
U.etasje: Egen inngang, vaskerom, boder og disponibelt areal med potensial
Garasje og parkering i gårdsrom
Salgsoppgaven beskriver vesentlig og lovpålagt informasjon om eiendommen
Se komplett salgsoppgaveNyttige lenker
Nærområdet

PrivatMegleren Haferkamp & Partnere
Annonseinformasjon
| FINN-kode | 435757316 |
|---|---|
| Sist endret | 19. feb. 2026 14:51 |
| Referanse | 301250266 |
Annonsene kan være mangelfulle i forhold til lovpålagt opplysningsplikt. Før bindende avtale inngås oppfordres interessenter til å innhente komplett informasjon fra meglerforetaket, selger eller utleier.


























































