Bildegalleri

Auke Terrasse 3 til salgs ved Fredrik von Krogh - EIE eiendomsmegling. Foto: Isnitt (Emil Jakobczyk)
TOTALOPPUSSET MED HYBEL
Nyoppusset enebolig med flott fjordutsikt og solrike uteplasser - Stor tomt - To garasjeplasser - Hybel - Nær barneskole
Prisantydning8 300 000 kr
Nøkkelinfo
- Boligtype
- Enebolig
- Eieform
- Eier (Selveier)
- Soverom
- 5
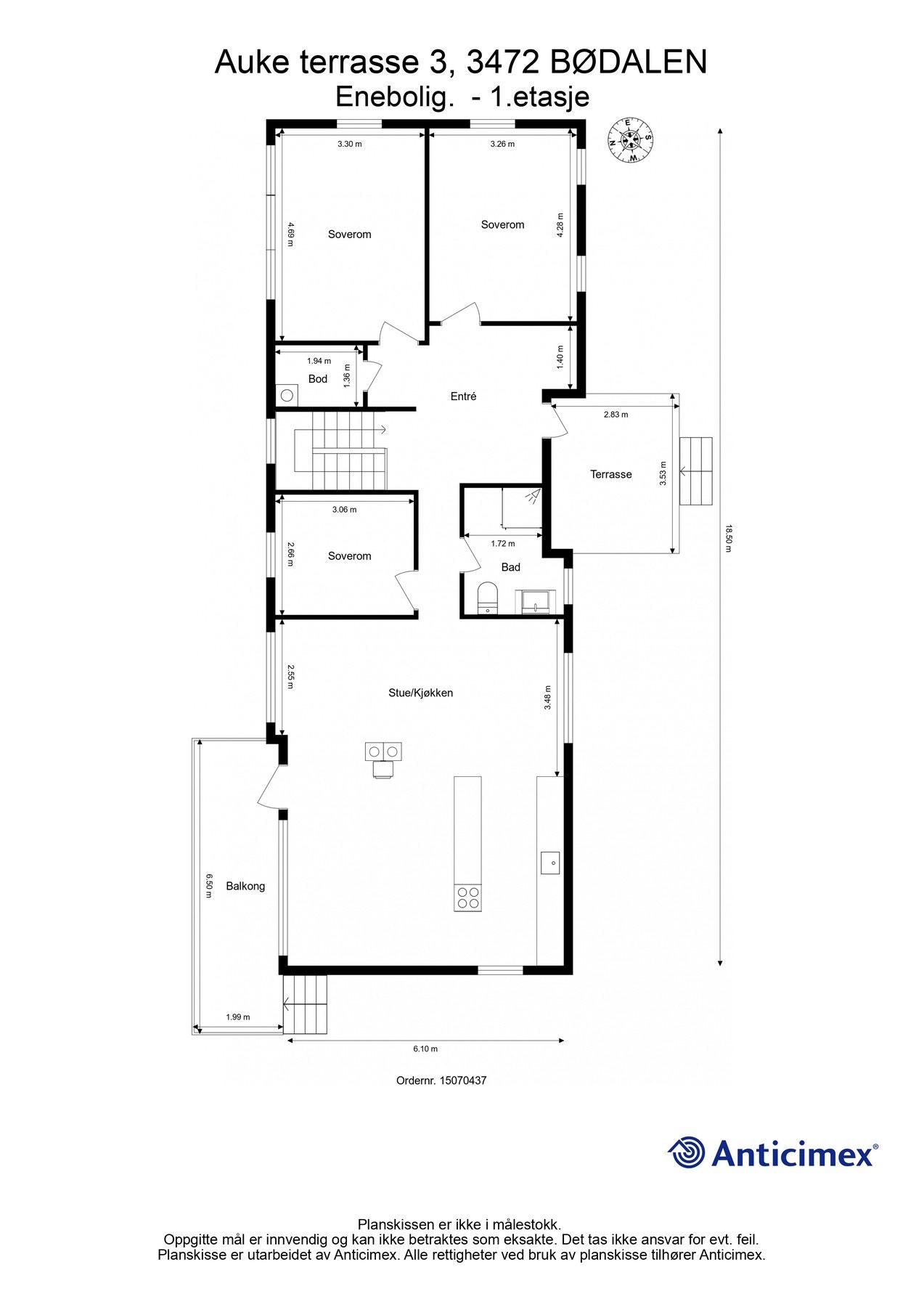
- Internt bruksareal
- 212 m² (BRA-i)
- Bruksareal
- 231 m²
- Eksternt bruksareal
- 19 m² (BRA-e)
- Balkong/Terrasse
- 23 m² (TBA)
- Byggeår
- 1967
- Energimerking
- F - Oransje
- Tomteareal
- 1 138 m² (eiet)
Fasiliteter
Barnevennlig
Balkong/Terrasse
Garasje/P-plass
Kabel-TV
Offentlig vann/kloakk
Ingen gjenboere
Parkett
Peis/Ildsted
Turterreng
Utsikt
Bredbåndstilknytning
Moderne
Rolig
Visning
På denne eiendommen avtales visning med megler. Ta kontakt med Fredrik von Krogh på 95428701 eller fvk@eie.no
VisningspåmeldingOm boligen
Velkommen til en flott eiendom med fjordutsikt, gode solforhold og høy standard! Eiendommen ligger nesten innerst i en rolig blindvei i et veletablert og svært barnevennlig område - perfekt for barnefamilier. Her bor du med kort avstand til barnehager, skoler, nærbutikk, Rortunet kjøpesenter og Slemmestad sentrum med hurtigbåt til Oslo. Kollektivtransport, marka med fine turmuligheter og rekreasjonstilbud er også i gangavstand.
Tomten på over 1,1 mål byr på en stor, opparbeidet hage hvor både barn og voksne kan trives. Boligen er totaloppusset og holder en moderne og gjennomført standard.
Utdrag av oppgraderinger:
* Nytt el-anlegg
* Nye kjøkken
* Nytt VA
* Etterisolert
* Varme i de fleste gulv
* Byttet vinduer
* Bygget utleiedel
En innflytningsklar bolig med det lille ekstra - klar for nye eiere!
Tomten på over 1,1 mål byr på en stor, opparbeidet hage hvor både barn og voksne kan trives. Boligen er totaloppusset og holder en moderne og gjennomført standard.
Utdrag av oppgraderinger:
* Nytt el-anlegg
* Nye kjøkken
* Nytt VA
* Etterisolert
* Varme i de fleste gulv
* Byttet vinduer
* Bygget utleiedel
En innflytningsklar bolig med det lille ekstra - klar for nye eiere!
NB: Knappen for å vise hele beskrivelsen har kun en visuell effekt.
NB: Knappen for å vise hele beskrivelsen har kun en visuell effekt.
Salgsoppgaven beskriver vesentlig og lovpålagt informasjon om eiendommen
Se komplett salgsoppgaveNyttige lenker
Nærområdet
EIE eiendomsmegling Asker
Annonseinformasjon
| FINN-kode | 435735098 |
|---|---|
| Sist endret | 01. des. 2025 09:17 |
| Referanse | 85251147 |
Annonsene kan være mangelfulle i forhold til lovpålagt opplysningsplikt. Før bindende avtale inngås oppfordres interessenter til å innhente komplett informasjon fra meglerforetaket, selger eller utleier.


























































