Bildegalleri

Velkommen til H Nestens veg 6B. En pen 2-roms leilighet i 1 etasje. (Foto: Morten Eriksen).
Perfekt førstegangskjøp - pen og arealeffektiv 2-roms med balkong og nyere kjøkken |Fellesparkering | Sentrumsnært!
Prisantydning2 700 000 kr
Nøkkelinfo
- Boligtype
- Leilighet
- Eieform
- Andel
- Soverom
- 1
- Internt bruksareal
- 50 m² (BRA-i)
- Bruksareal
- 52 m²
- Eksternt bruksareal
- 2 m² (BRA-e)
- Balkong/Terrasse
- 14 m² (TBA)
- Etasje
- 1
- Byggeår
- 1968
- Energimerking
- G - Mørkegrønn
- Rom
- 2
- Tomteareal
- 3 536 m² (eiet)
Fasiliteter
Balkong/Terrasse
Barnevennlig
Garasje/P-plass
Sentralt
Lademulighet
Om boligen
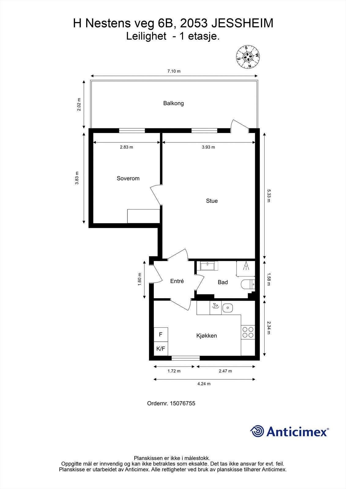
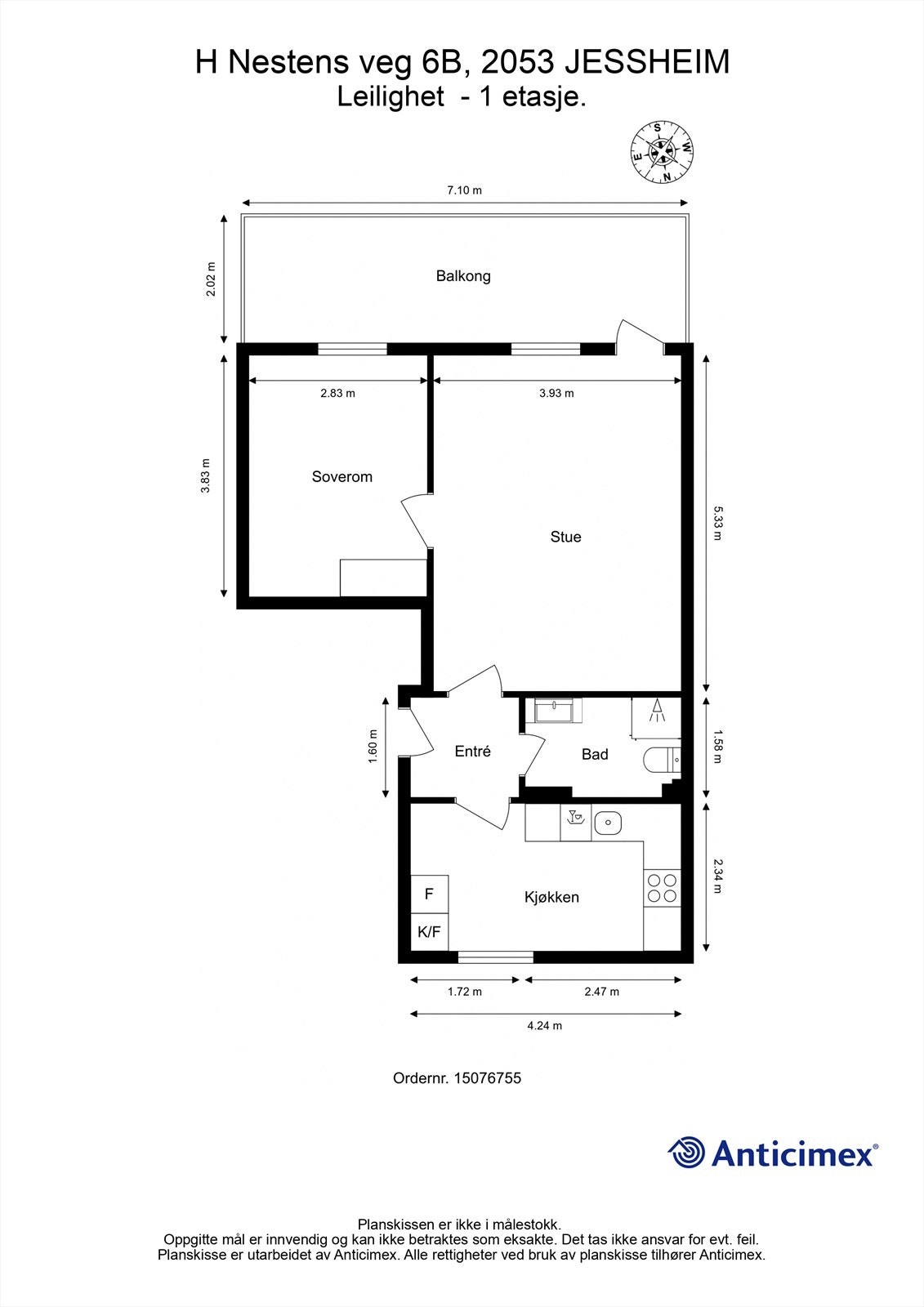
H Nestens veg 6 B er en arealeffektiv og tiltalende 2-roms andelsleilighet et perfekt førstegangskjøp eller smart valg for deg som vil bo lettstelt og sentralt med nærhet til sentrum med alt du trenger i hverdagen. Leilighet ligger i byggets 1 etasje, og det er adkomst via felles inngangsparti - samt trappeoppgang. Leiligheten består av entré, stue, kjøkken, soverom og bad. Det er utgang fra stue til sørvendt balkong på 14 kvm. Boligbygget går over 3 etasjer, leiligheten disponerer kjellerbod, og det er felles parkeringsplass i Borettslaget.
Eiendommen ligger kun få hundre meter fra Jessheim Storsenter og togstasjonen. Det er gangavstand til skoler, barnehager og Jessheim sentrum med de fleste fasiliteter.
Eiendommen ligger kun få hundre meter fra Jessheim Storsenter og togstasjonen. Det er gangavstand til skoler, barnehager og Jessheim sentrum med de fleste fasiliteter.
NB: Knappen for å vise hele beskrivelsen har kun en visuell effekt.
NB: Knappen for å vise hele beskrivelsen har kun en visuell effekt.
Salgsoppgaven beskriver vesentlig og lovpålagt informasjon om eiendommen
Se komplett salgsoppgaveNyttige lenker
Nærområdet
Krogsveen Jessheim
Verdien av en god megler.
Annonseinformasjon
| FINN-kode | 435722792 |
|---|---|
| Sist endret | 16. feb. 2026 10:15 |
| Referanse | KR63.25250 |
Annonsene kan være mangelfulle i forhold til lovpålagt opplysningsplikt. Før bindende avtale inngås oppfordres interessenter til å innhente komplett informasjon fra meglerforetaket, selger eller utleier.




















