Bildegalleri

Aktiv Moss presenterer Slalåmbakken 5L - Ungdommelig leilighet med lyse overflater og gulvvarme. Kjøkken fra 2018 og bad fra 2014.
Moss| Slalåmbakken| Moderne leilighet med lyse overflater, tidløst kjøkken og praktisk planløsning, klar for innflytting
Prisantydning2 600 000 kr
Nøkkelinfo
- Boligtype
- Leilighet
- Eieform
- Andel
- Soverom
- 1
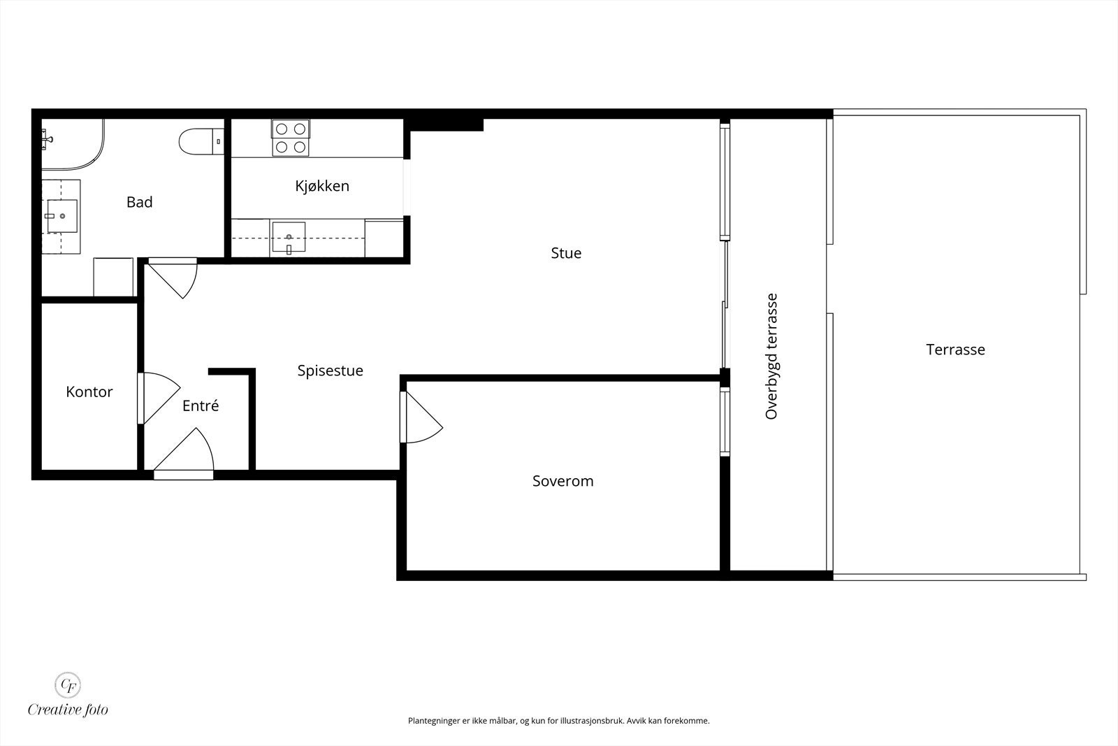
- Internt bruksareal
- 60 m² (BRA-i)
- Bruksareal
- 63 m²
- Eksternt bruksareal
- 3 m² (BRA-e)
- Balkong/Terrasse
- 35 m² (TBA)
- Etasje
- -1
- Byggeår
- 1970
- Energimerking
- G - Rød
- Rom
- 2
- Tomteareal
- 126 491 m² (eiet)
Fasiliteter
Balkong/Terrasse
Barnevennlig
Bredbåndstilknytning
Garasje/P-plass
Kjæledyr tillatt
Ingen gjenboere
Kabel-TV
Offentlig vann/kloakk
Rolig
Sentralt
Vaktmester-/vektertjeneste
Turterreng
Visning
Ved annonsert visning er det viktig at du melder deg på visningen ved å bruke visningspåmeldingsknappen eller kontakter megler. Annonserte visninger hvor det ikke er noen påmeldte vil ikke bli avholdt.
For visninger utover dette, ta direkte kontakt med megler.
VisningspåmeldingOm boligen
Velkommen til Slalåmbakken 5L - En lys og innbydende leilighet på bakkeplan med jevn og god standard og stor vestvendt terrasse. Leiligheten har en praktisk planløsning med lyse overflater som gir et moderne og tidløst uttrykk.
Kjøkkenet er funksjonelt med folierte skrog, slette fronter, laminert benkeplate og integrerte hvitevarer perfekt for matlaging og sosialt samvær. Badet er innredet med dusjhjørne med glassvegger, servant med underskap og opplegg for vaskemaskin. Innvendig finner du gjennomgående laminatgulv, slette malte vegger og downlights i alle rom. Her bor du i et veletablert område med flotte fellesarealer, lekeplasser og sittegrupper, samt kort vei til barnehager, skoler, bussforbindelser og Moss sentrum. En leilighet som kombinerer komfort, funksjonalitet og beliggenhet!
Kjøkkenet er funksjonelt med folierte skrog, slette fronter, laminert benkeplate og integrerte hvitevarer perfekt for matlaging og sosialt samvær. Badet er innredet med dusjhjørne med glassvegger, servant med underskap og opplegg for vaskemaskin. Innvendig finner du gjennomgående laminatgulv, slette malte vegger og downlights i alle rom. Her bor du i et veletablert område med flotte fellesarealer, lekeplasser og sittegrupper, samt kort vei til barnehager, skoler, bussforbindelser og Moss sentrum. En leilighet som kombinerer komfort, funksjonalitet og beliggenhet!
NB: Knappen for å vise hele beskrivelsen har kun en visuell effekt.
NB: Knappen for å vise hele beskrivelsen har kun en visuell effekt.
Salgsoppgaven beskriver vesentlig og lovpålagt informasjon om eiendommen
Se komplett salgsoppgaveNærområdet
Aktiv Moss
Annonseinformasjon
| FINN-kode | 435717097 |
|---|---|
| Sist endret | 08. des. 2025 13:02 |
| Referanse | 1114250068 |
Annonsene kan være mangelfulle i forhold til lovpålagt opplysningsplikt. Før bindende avtale inngås oppfordres interessenter til å innhente komplett informasjon fra meglerforetaket, selger eller utleier.




























