Bildegalleri

Velkommen til Kjørholtvegen 71!

Heistad/Kjørholt

Stor og innbydende halvpart av tomannsbolig beliggende i barnevennlig og landlige omgivelser! 5 sov - garasje - solrikt

Prisantydning2 490 000 kr
Totalpris
2 573 240 kr
Omkostninger
83 240 kr
Kommunale avg.
14 688 kr per år
Eiendomsskatt
1 536 kr per år
Formuesverdi
565 939 kr

Nøkkelinfo

Boligtype
Tomannsbolig
Eieform
Eier (Selveier)
Soverom
5
Internt bruksareal
212 m² (BRA-i)
Bruksareal
249 m²
Eksternt bruksareal
37 m² (BRA-e)
Balkong/Terrasse
89 m² (TBA)
Etasje
3
Byggeår
1948
Energimerking
G - Oransje
Rom
6
Tomteareal
652 m² (eiet)

Les mer om bruksareal her

Fasiliteter

Balkong/Terrasse
Barnevennlig
Bredbåndstilknytning
Garasje/P-plass
Hage
Ingen gjenboere
Offentlig vann/kloakk
Peis/Ildsted
Rolig
Sentralt
Utsikt
Turterreng

Visning

For å delta på visning, ber vi om at du melder deg på. Da sikrer vi at du får nødvendig informasjon og at det er satt av tilstrekkelig med tid. Kontakt megler dersom annet tidspunkt ønskes. Husk å lese salgsoppgaven før visningen, så du stiller forberedt. NB. Visning utgår dersom det ikke er noen påmeldte. Ønsker du kun å bli holdt orientert, kan du fra eiendommens hjemmeside få varsel om solgtpris, eller kontakte megler.
Visningspåmelding

Om boligen

Velkommen til Kjørholtvegen 71!

En god og romslig halvpart av tomannsbolig, beliggende i et landlig og barnevennlig område.
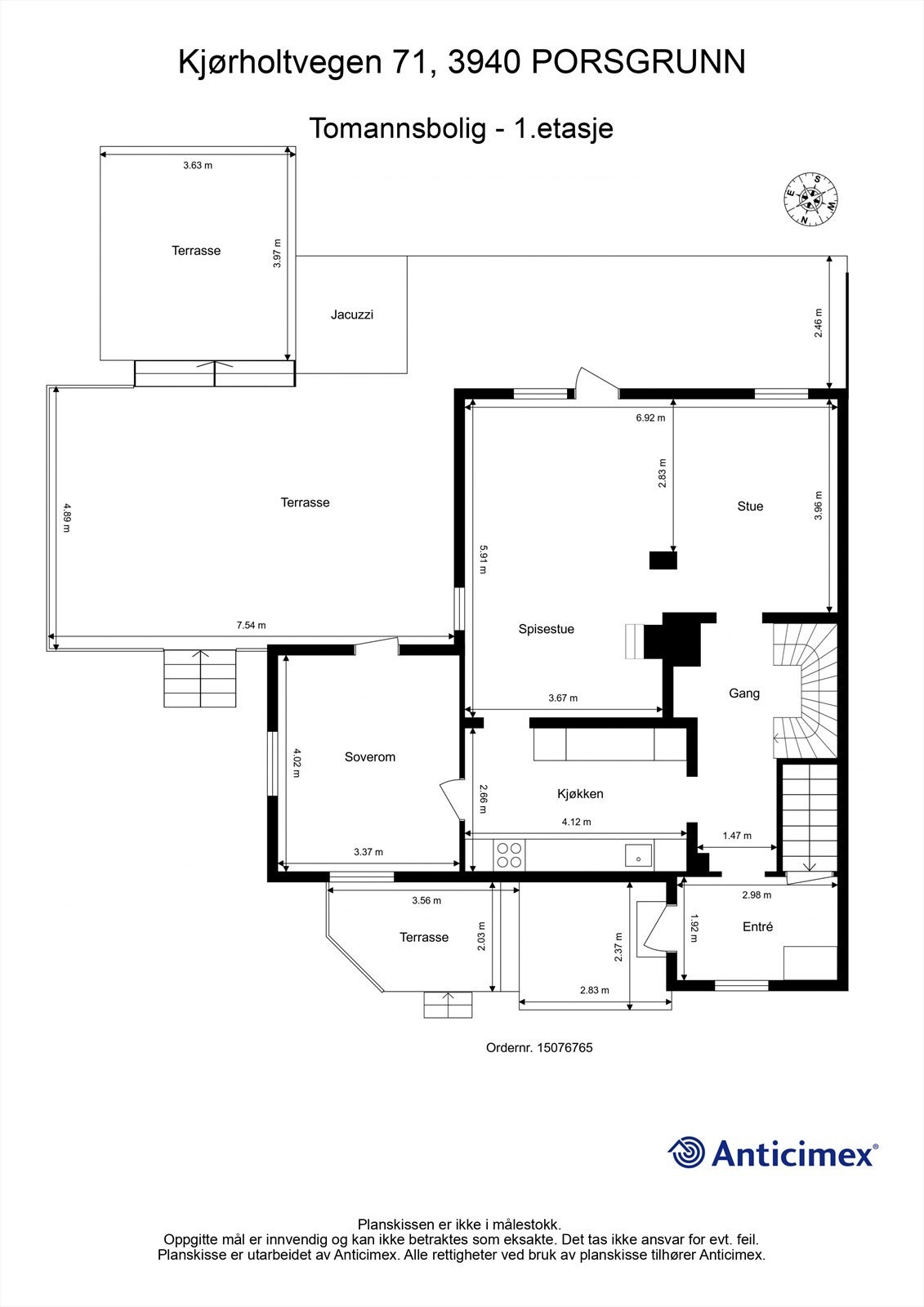
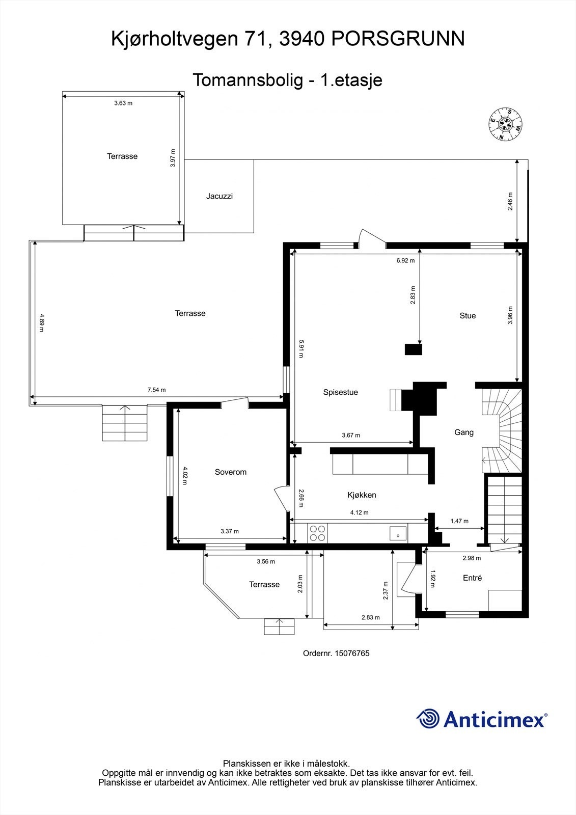
Huset byr på en praktisk planløsning med fem soverom, store vindusflater og lyse, trivelige rom. Hovedplanet har stue, spisestue og kjøkken i delvis åpen løsning, med peis som skaper en lun atmosfære, samt ekstra stue/soverom.
I andre etasje finner du fire soverom og et lyst flislagt bad.
Underetasjen har boder, vaskerom, wc og kontor.
Ute venter romslige terrasser med gode solforhold og dobbel garasje. Nær flotte turområder samt butikker og andre servicetilbud på Heistad så alt familien trenger ligger i nærheten.

Velkommen til en hyggelig visning og velkommen hjem.

Salgsoppgaven beskriver vesentlig og lovpålagt informasjon om eiendommen

Se komplett salgsoppgave

Nærområdet

Annonseinformasjon

FINN-kode435708035
Sist endret25. nov. 2025 08:22
ReferanseKR22.25425

Rapporter annonse

Annonsene kan være mangelfulle i forhold til lovpålagt opplysningsplikt. Før bindende avtale inngås oppfordres interessenter til å innhente komplett informasjon fra meglerforetaket, selger eller utleier.