Bildegalleri

EIE eiendomsmegling ved Amrinder Singh har gleden av å presentere Waldemar Aunes veg 12C.
Solgt
Hallset
Rålekker og moderne 4-roms i 2. etasje. Betydelig oppgradert 2017-2019. Solrik balkong og parkering*. TG1 på nesten alt.
Prisantydning3 690 000 kr
Nøkkelinfo
- Boligtype
- Leilighet
- Eieform
- Andel
- Soverom
- 3
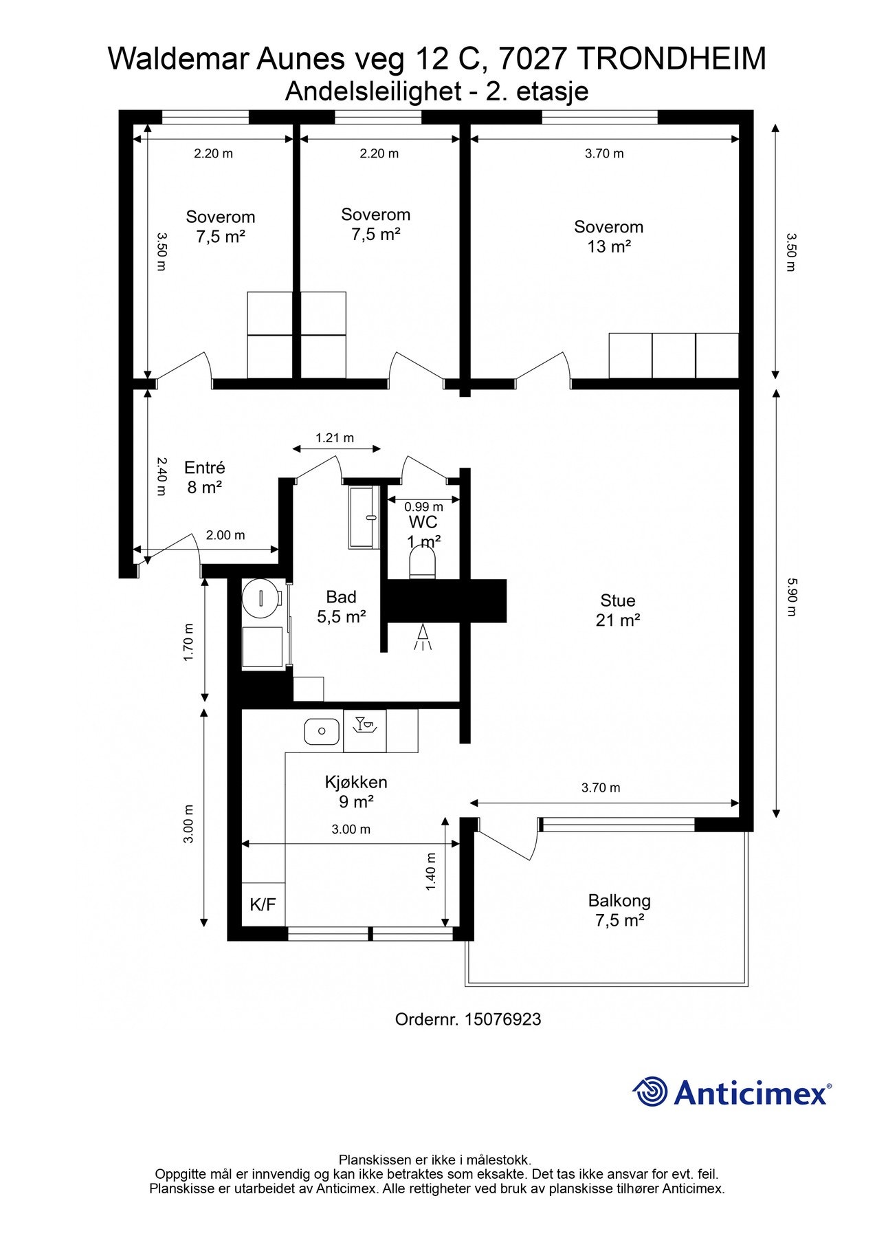
- Internt bruksareal
- 81 m² (BRA-i)
- Bruksareal
- 95 m²
- Eksternt bruksareal
- 14 m² (BRA-e)
- Balkong/Terrasse
- 7 m² (TBA)
- Etasje
- 2
- Byggeår
- 1967
- Energimerking
- E - Oransje
- Rom
- 4
- Tomt
- Eiet
Fasiliteter
Barnevennlig
Balkong/Terrasse
Garasje/P-plass
Kabel-TV
Offentlig vann/kloakk
Parkett
Turterreng
Utsikt
Vaktmester-/vektertjeneste
Aircondition
Sentralt
Bredbåndstilknytning
Moderne
Rolig
Lademulighet
Om boligen
EIE eiendomsmegling v/ Amrinder Singh har gleden av å presentere Waldemar Aunes veg 12C - en moderne 4-roms endeleilighet, stilfullt oppgradert i perioden 2017-2019.
Merk deg følgende ved boligen:
- Betydelig oppgradert mellom 2017 og 2019
- Moderne og stilrent Norema-kjøkken fra 2019 med integrerte hvitevarer
- Delikat bad fra 2017 og separat toalettrom fra 2019 - begge med TG1
- Lys og luftig planløsning med tre romslige soverom
- Solrik balkong med hyggelig uteplass og gode solforhold
- Varmepumpe fra 2022
- Tre boder med god lagringsplass
- Ingen dokumentavgift
- TV/Internett og kommunale avgifter inkludert i felleskostnadene
- Nærhet til Bymarka med ypperlige turmuligheter både sommer og vinter
- Rørfornying ble gjennomført i borettslaget høsten 2023
- Kort vei til skoler, barnehager og kollektivtransport
- Borettslaget har gode parkeringsmuligheter med 113 frittstående garasjer i rekke og ca. 250 p-plasser
Velkommen til visning!
Merk deg følgende ved boligen:
- Betydelig oppgradert mellom 2017 og 2019
- Moderne og stilrent Norema-kjøkken fra 2019 med integrerte hvitevarer
- Delikat bad fra 2017 og separat toalettrom fra 2019 - begge med TG1
- Lys og luftig planløsning med tre romslige soverom
- Solrik balkong med hyggelig uteplass og gode solforhold
- Varmepumpe fra 2022
- Tre boder med god lagringsplass
- Ingen dokumentavgift
- TV/Internett og kommunale avgifter inkludert i felleskostnadene
- Nærhet til Bymarka med ypperlige turmuligheter både sommer og vinter
- Rørfornying ble gjennomført i borettslaget høsten 2023
- Kort vei til skoler, barnehager og kollektivtransport
- Borettslaget har gode parkeringsmuligheter med 113 frittstående garasjer i rekke og ca. 250 p-plasser
Velkommen til visning!
NB: Knappen for å vise hele beskrivelsen har kun en visuell effekt.
NB: Knappen for å vise hele beskrivelsen har kun en visuell effekt.
Salgsoppgaven beskriver vesentlig og lovpålagt informasjon om eiendommen
Se komplett salgsoppgaveNyttige lenker
Nærområdet
EIE eiendomsmegling Heimdal
Annonseinformasjon
| FINN-kode | 435693038 |
|---|---|
| Sist endret | 18. nov. 2025 05:09 |
| Referanse | 97251201 |
Annonsene kan være mangelfulle i forhold til lovpålagt opplysningsplikt. Før bindende avtale inngås oppfordres interessenter til å innhente komplett informasjon fra meglerforetaket, selger eller utleier.



























