Bildegalleri

Velkommen til Camilla Colletts Veg 31!
Familievennlig enebolig m/ 6 soverom på Hanstad | Store terrasser på totalt 82 m² | Dobbelgarasje
Prisantydning4 490 000 kr
Nøkkelinfo
- Boligtype
- Enebolig
- Eieform
- Selveier
- Soverom
- 6
- Internt bruksareal
- 214 m² (BRA-i)
- Bruksareal
- 260 m²
- Eksternt bruksareal
- 46 m² (BRA-e)
- Balkong/Terrasse
- 82 m² (TBA)
- Etasje
- 2
- Byggeår
- 1986
- Energimerking
- Rom
- 7
- Tomteareal
- 1 050 m² (eiet)
Fasiliteter
Balkong/Terrasse
Barnevennlig
Garasje/P-plass
Hage
Offentlig vann/kloakk
Peis/Ildsted
Rolig
Sentralt
Om boligen
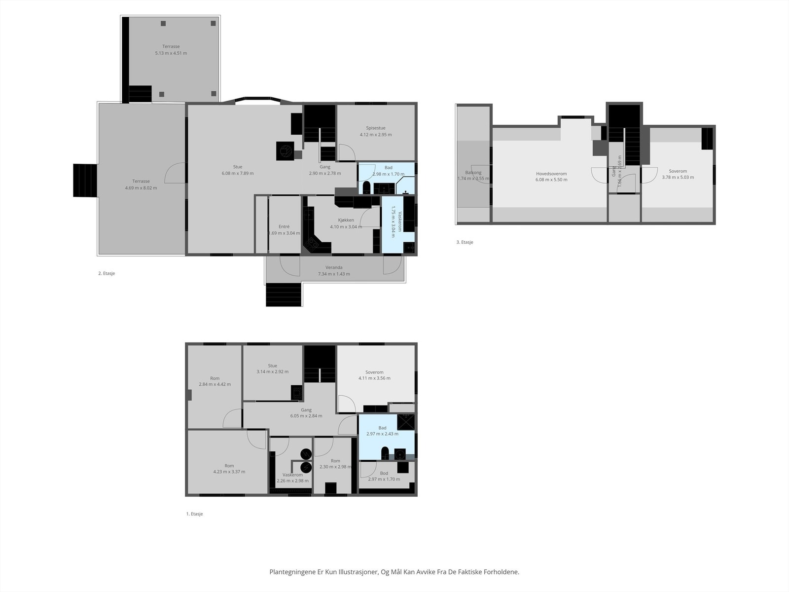
Velkommen til Camilla Colletts veg 31! Her presenteres en innholdsrik og velholdt enebolig over tre plan i det etablerte og familievennlige boligområdet Hanstad syd. Området er stille og rolig, med nærhet til skoler, barnehager og dagligvarebutikker. For den aktive familien er det kort vei til flotte turområder, idrettsanlegg og lekeplasser.
Boligen har en familievennlig planløsning med blant annet et moderne kjøkken fra 2010, to bad, separat vaskerom og en romslig stue med vedovn. Kjelleren er innredet med en hyggelig kjellerstue, bad og flere soverom. Eiendommen har flere fine uteplasser, inkludert en stor, delvis overbygget terrasse på 69 m² og en overbygget balkong i andre etasje på 13 m². I tillegg er det en dobbelgarasje på 46 m² med gode lagringsmuligheter.
Velkommen til visning!
Boligen har en familievennlig planløsning med blant annet et moderne kjøkken fra 2010, to bad, separat vaskerom og en romslig stue med vedovn. Kjelleren er innredet med en hyggelig kjellerstue, bad og flere soverom. Eiendommen har flere fine uteplasser, inkludert en stor, delvis overbygget terrasse på 69 m² og en overbygget balkong i andre etasje på 13 m². I tillegg er det en dobbelgarasje på 46 m² med gode lagringsmuligheter.
Velkommen til visning!
NB: Knappen for å vise hele beskrivelsen har kun en visuell effekt.
NB: Knappen for å vise hele beskrivelsen har kun en visuell effekt.
Salgsoppgaven beskriver vesentlig og lovpålagt informasjon om eiendommen
Se komplett salgsoppgaveNyttige lenker
Nærområdet
EiendomsMegler 1 Elverum
Vi loser deg trygt gjennom hele boligsalget
Annonseinformasjon
| FINN-kode | 435573279 |
|---|---|
| Sist endret | 26. mai 2026 13:13 |
| Referanse | 6014260122 |
Annonsene kan være mangelfulle i forhold til lovpålagt opplysningsplikt. Før bindende avtale inngås oppfordres interessenter til å innhente komplett informasjon fra meglerforetaket, selger eller utleier.


























































