Bildegalleri

Hjem Eiendomsmegling v/ eiendomsmegler Robin I. Martinsen presenterer denne tomannsboligen, Bjørnøygata 6!
Sentrum sør
Hel tomannsbolig med 2 store leiligheter | Romslig parkering | Attraktivt utleieobjekt | Ta kontakt for visning!
Prisantydning7 400 000 kr
Nøkkelinfo
- Boligtype
- Tomannsbolig
- Eieform
- Eier (Selveier)
- Soverom
- 5
- Internt bruksareal
- 196 m² (BRA-i)
- Bruksareal
- 196 m²
- Balkong/Terrasse
- 12 m² (TBA)
- Byggeår
- 1892
- Rom
- 7
- Tomteareal
- 405 m² (eiet)
Fasiliteter
Balkong/Terrasse
Barnevennlig
Offentlig vann/kloakk
Rolig
Sentralt
Visning
Vi ønsker visninger med høyest mulig servicegrad og forutsigbarhet. Derfor har vi alltid påmelding til visning. Meld deg på visning via lenken Visningspåmelding eller kontakt meg på tlf. eller e-post for å avtale tidspunkt. Visninger uten påmeldte deltagere vil bli avlyst.
VisningspåmeldingOm boligen
Spennende mulighet like sør for sentrum!
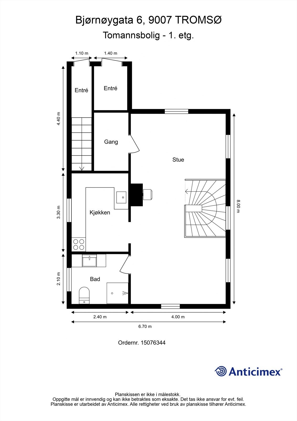
| Hel tomannsbolig - innredet med 2 romslige leiligheter, hver over 2 plan.
| Romslig parkering med plass til flere biler.
| Enkelte oppgraderinger, dog moderniseringsbehov.
| Eiendommen har generert svært gode leie inntekter til nåværende eiere.
| Envegskjørt gate.
| Sentral beliggenhet, kun 5-10 minutters gangavstand til sentrum.
Eiendommen har tidligere vært seksjonert, men ble tilbakestilt da nåværende eiere hadde behov for hele bygget til utleieformål. Det foreligger tegninger av eiendommen vedlagt komplett salgsoppgave. Eiendomsmegler har ikke undersøkt nærmere mulige utviklingsmuligheter for tomten som er på ca. 405 m2. Det foreligger tilstandsrapport utarbeidet 14.10.2025.
Kontakt megler for visning!
| Hel tomannsbolig - innredet med 2 romslige leiligheter, hver over 2 plan.
| Romslig parkering med plass til flere biler.
| Enkelte oppgraderinger, dog moderniseringsbehov.
| Eiendommen har generert svært gode leie inntekter til nåværende eiere.
| Envegskjørt gate.
| Sentral beliggenhet, kun 5-10 minutters gangavstand til sentrum.
Eiendommen har tidligere vært seksjonert, men ble tilbakestilt da nåværende eiere hadde behov for hele bygget til utleieformål. Det foreligger tegninger av eiendommen vedlagt komplett salgsoppgave. Eiendomsmegler har ikke undersøkt nærmere mulige utviklingsmuligheter for tomten som er på ca. 405 m2. Det foreligger tilstandsrapport utarbeidet 14.10.2025.
Kontakt megler for visning!
NB: Knappen for å vise hele beskrivelsen har kun en visuell effekt.
NB: Knappen for å vise hele beskrivelsen har kun en visuell effekt.
Salgsoppgaven beskriver vesentlig og lovpålagt informasjon om eiendommen
Se komplett salgsoppgaveNærområdet
Hjem Eiendomsmegling
Annonseinformasjon
| FINN-kode | 435551910 |
|---|---|
| Sist endret | 21. nov. 2025 14:06 |
| Referanse | 1-0316/25 |
Annonsene kan være mangelfulle i forhold til lovpålagt opplysningsplikt. Før bindende avtale inngås oppfordres interessenter til å innhente komplett informasjon fra meglerforetaket, selger eller utleier.







































