Bildegalleri

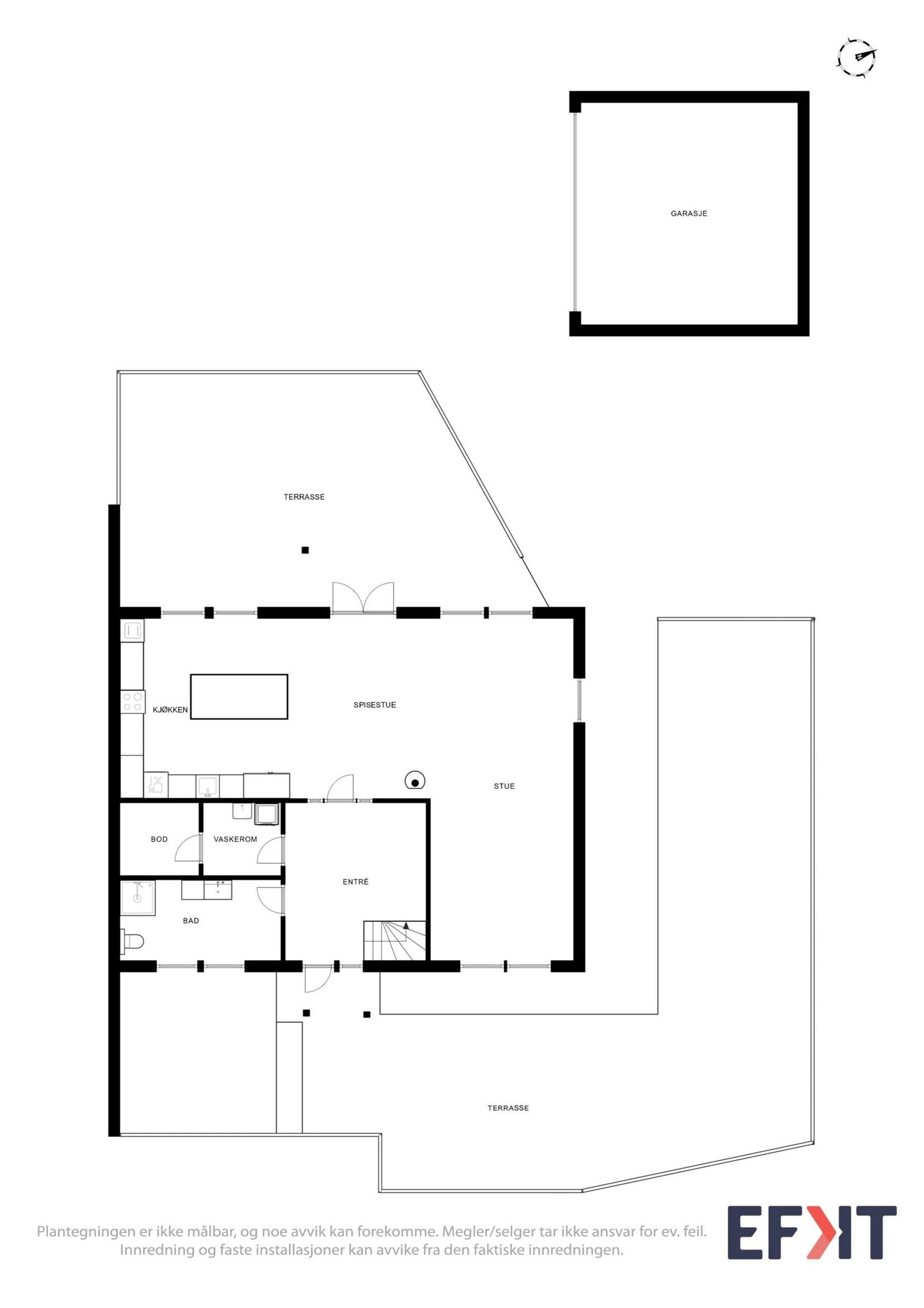
Står gårdsplass plass til flere biler foran garasjen. Garasje er isolert og oppvarmet. Loftstue med trapp på bakside av garasje.
Nydelig vertikaldelt enebolig med høy standard isolert dobbeltgarasje, store terrasser og Jacuzzi
Nøkkelinfo
- Boligtype
- Tomannsbolig
- Eieform
- Eier (Selveier)
- Soverom
- 4
- Internt bruksareal
- 196 m² (BRA-i)
- Bruksareal
- 228 m²
- Eksternt bruksareal
- 32 m² (BRA-e)
- Byggeår
- 2014
- Energimerking
- B - Oransje
- Tomteareal
- 1 274 m² (eiet)
Fasiliteter
Om boligen
Familievennlig boligdrøm på Augerød.
Moderne tomannsbolig med fire soverom, isolert dobbeltgarasje med elbil lader, store terrasser, pergola og Jacuzzi. Perfekt for deg som ønsker god plass både inne og ute – i et rolig og trygt nabolag med kort vei til skole, barnehage, butikk og Mosseporten. Her kan barna leke trygt, mens du nyter hverdagen i en komfortabel og lettstelt bolig med høy standard.
Beliggenhet
Boligen ligger i et attraktivt og barnevennlig boligområde på Augerød i Våler kommune, med kort vei til alt man trenger i hverdagen. Her bor du rolig og trygt – samtidig som du har nærhet til skole, barnehage, butikk og flotte naturområder.
Barnehagen ligger som en av de nærmeste naboene, og det er gangstier til barneskolen samt skolebuss til ungdomsskolen på Kirkebygden. På feltet finner du Kiwi-butikk, lekeplasser og trivelige nabolag med mange barnefamilier.
Det er kun 5 minutter til Mosseporten senter med et bredt utvalg av butikker og servicetilbud, og E6 ligger like i nærheten med enkel adkomst mot både Moss, Oslo og Sarpsborg.
Området er omgitt av vakker natur, med kort vei til Vansjø, Mossemarka og flere fine tur- og sykkelstier. Her får du både trygg oppvekst og gode rekreasjonsmuligheter – året rundt.
Annet
Det er ingen forkjøpsrett på boligen. Om du ikke har mulighet til å komme på visning, holder jeg gjerne privatvisning. Ta kontakt, så finner vi en tid.
Omkostninger
15 900 kr (HELP boligkjøperforsikring (valgfritt))
156 250 kr (Dokumentavgift)
545 kr (Tinglysing av pantedokument)
545 kr (Tinglysing av skjøte)
---
173 240 kr (Omkostninger totalt)
---
6 423 240 kr (Totalpris inkl. omkostninger)
NB: Regnestykket forutsetter at det kun tinglyses én låneobligasjon og at eiendommen selges til prisantydning.
Det tas forbehold om endringer i offentlige og private gebyrer.
Selger er selv ansvarlig for følgende gebyr:
0 kr (Eierskiftegebyr)
545 kr (Panterett med urådighet)
Salgsoppgaven beskriver vesentlig og lovpålagt informasjon om eiendommen
Se komplett salgsoppgaveNyttige lenker
Nærområdet
Annonsene kan være mangelfulle i forhold til lovpålagt opplysningsplikt. Før bindende avtale inngås oppfordres interessenter til å innhente komplett informasjon fra meglerforetaket, selger eller utleier.


















