Bildegalleri

Velkommen til Rakkestadveien 128 - Presentert av PrivatMegleren Indre Østfold
Tidligere gårdstun - Sentralt og nært E-18 - Sidebygning med mulighet for utleie - Dobbel garasje og stabbur
Prisantydning4 100 000 kr
Nøkkelinfo
- Boligtype
- Enebolig
- Eieform
- Eier (Selveier)
- Soverom
- 3
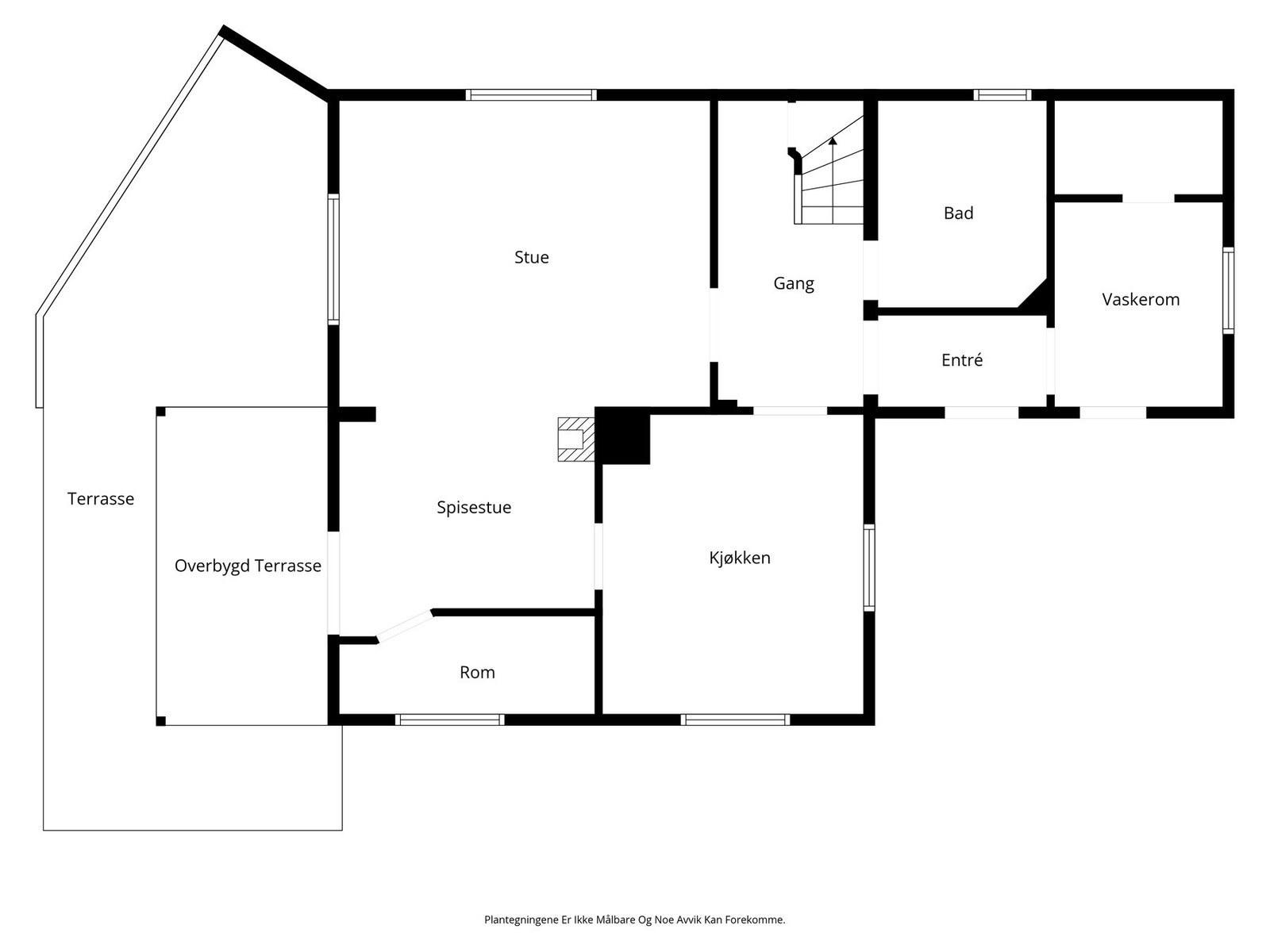
- Internt bruksareal
- 158 m² (BRA-i)
- Bruksareal
- 223 m²
- Eksternt bruksareal
- 65 m² (BRA-e)
- Balkong/Terrasse
- 33 m² (TBA)
- Energimerking
- G - Oransje
- Tomteareal
- 1 567 m² (eiet)
Fasiliteter
Balkong/Terrasse
Garasje/P-plass
Utsikt
Lademulighet
Om boligen
Vesle Sulerud er tidligere et gårdsbruk. Eiendommen består nå av 1567 kvm eiet tomt med bolighus, sidebygning som passer fint for utleie eller eget bruk, stabbur og dobbel garasje.
Rakkestadveien 12 har en landlig men samtidig sentral beliggenhet med sin nærhet til Sekkelsten/ E-18. Det er kort kjørevei til Askim sentrum og bussforbindelse om behov ved Sekkelsten. Eiendommen har herlige uteplasser på vestsiden av huset som er helt usjenerte og med utsyn over jordbruksarealer. Her er det meget solrike og skjermede omgivelser. Det er stort gårdsplass på østsiden mot Rakkestadveien. Tunet er koselig med både stabbur og sidebygning.
Eiendommen holder en gjennomgående normal standard på utstyr og innredninger. Det er gjort mye arbeider i sidebygning av nåværende eier.
Velkommen til visning!
Rakkestadveien 12 har en landlig men samtidig sentral beliggenhet med sin nærhet til Sekkelsten/ E-18. Det er kort kjørevei til Askim sentrum og bussforbindelse om behov ved Sekkelsten. Eiendommen har herlige uteplasser på vestsiden av huset som er helt usjenerte og med utsyn over jordbruksarealer. Her er det meget solrike og skjermede omgivelser. Det er stort gårdsplass på østsiden mot Rakkestadveien. Tunet er koselig med både stabbur og sidebygning.
Eiendommen holder en gjennomgående normal standard på utstyr og innredninger. Det er gjort mye arbeider i sidebygning av nåværende eier.
Velkommen til visning!
NB: Knappen for å vise hele beskrivelsen har kun en visuell effekt.
NB: Knappen for å vise hele beskrivelsen har kun en visuell effekt.
Salgsoppgaven beskriver vesentlig og lovpålagt informasjon om eiendommen
Se komplett salgsoppgaveNyttige lenker
Nærområdet
PrivatMegleren Indre Østfold
Kun det beste på dine vegne
Annonseinformasjon
| FINN-kode | 434976775 |
|---|---|
| Sist endret | 15. feb. 2026 05:01 |
| Referanse | 292250110 |
Annonsene kan være mangelfulle i forhold til lovpålagt opplysningsplikt. Før bindende avtale inngås oppfordres interessenter til å innhente komplett informasjon fra meglerforetaket, selger eller utleier.


































































