Bildegalleri

Hyggelig inngangsparti. Utvendig bod.
Nøtterøy/Skallestad
Lys og innholdsrik bolig over tre plan - nyoppusset kjøkken, utsikt, garasje og gode solforhold.
Prisantydning3 350 000 kr
Nøkkelinfo
- Boligtype
- Tomannsbolig
- Eieform
- Andel
- Soverom
- 3
- Internt bruksareal
- 138 m² (BRA-i)
- Bruksareal
- 163 m²
- Eksternt bruksareal
- 25 m² (BRA-e)
- Balkong/Terrasse
- 57 m² (TBA)
- Etasje
- 3
- Byggeår
- 1980
- Energimerking
- Tomteareal
- 10 618 m² (eiet)
Fasiliteter
Balkong/Terrasse
Barnevennlig
Garasje/P-plass
Hage
Peis/Ildsted
Utsikt
Visning
Ta kontakt med megler for avtale om privatvisning. Ønsker du kun å bli holdt orientert, kan du fra eiendommens hjemmeside få varsel om solgtpris, eller kontakte megler.
VisningspåmeldingOm boligen
Boligen går over tre plan med hovedinngang i underetasjen.
Underetasjen inneholder entré med praktisk garderobeløsning, to soverom og et flislagt bad. I tillegg disponerer boligen en utvendig bod i denne etasjen.
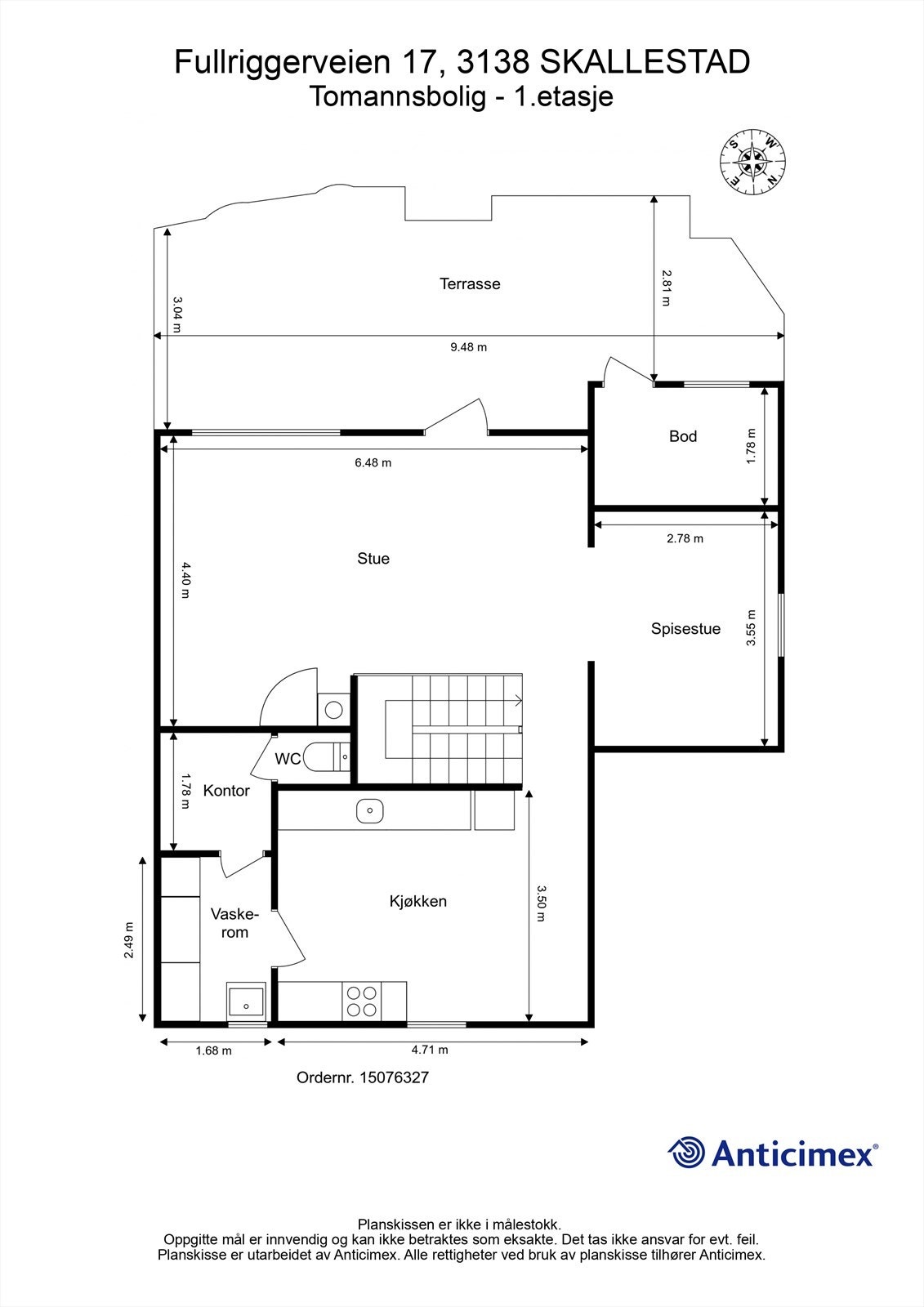
I første etasje finner du en hyggelig stue med peis og varmepumpe, samt utgang til en usjenert uteplass på hele 29 m². Etasjen rommer også en lys og trivelig spisestue. Kjøkkenet har ny innredning med integrerte hvitevarer, nytt gulv og downlights i tak.
I toppetasjen ligger et bad, romslig soverom og en TV-stue med utgang til en flott terrasse med kveldssol og fin utsikt.
Garasje i rekke på ca. 17 kvm medfølger.
Det er nylig gitt flere ferdigattester for utførte tiltak bl.a på en bruksendring og tilbygg.
Underetasjen inneholder entré med praktisk garderobeløsning, to soverom og et flislagt bad. I tillegg disponerer boligen en utvendig bod i denne etasjen.
I første etasje finner du en hyggelig stue med peis og varmepumpe, samt utgang til en usjenert uteplass på hele 29 m². Etasjen rommer også en lys og trivelig spisestue. Kjøkkenet har ny innredning med integrerte hvitevarer, nytt gulv og downlights i tak.
I toppetasjen ligger et bad, romslig soverom og en TV-stue med utgang til en flott terrasse med kveldssol og fin utsikt.
Garasje i rekke på ca. 17 kvm medfølger.
Det er nylig gitt flere ferdigattester for utførte tiltak bl.a på en bruksendring og tilbygg.
NB: Knappen for å vise hele beskrivelsen har kun en visuell effekt.
NB: Knappen for å vise hele beskrivelsen har kun en visuell effekt.
Salgsoppgaven beskriver vesentlig og lovpålagt informasjon om eiendommen
Se komplett salgsoppgaveNyttige lenker
Nærområdet
Krogsveen Tønsberg
Verdien av en god megler.
Annonseinformasjon
| FINN-kode | 434968975 |
|---|---|
| Sist endret | 24. mai 2026 20:53 |
| Referanse | KR21.24122 |
Annonsene kan være mangelfulle i forhold til lovpålagt opplysningsplikt. Før bindende avtale inngås oppfordres interessenter til å innhente komplett informasjon fra meglerforetaket, selger eller utleier.




































