Bildegalleri

Velkommen til Leanglia 88, presentert av Terje Tveit i Krogsveen.
LEANGBUKTA
Innholdsrikt rekkehus med fantastisk utsikt - Gode solforhold - Peisovn - 3 soverom - 3 uteplasser - Garasje og P-plass
Prisantydning7 790 000 kr
Nøkkelinfo
- Boligtype
- Rekkehus
- Eieform
- Eier (Selveier)
- Soverom
- 3
- Internt bruksareal
- 135 m² (BRA-i)
- Bruksareal
- 150 m²
- Eksternt bruksareal
- 15 m² (BRA-e)
- Balkong/Terrasse
- 47 m² (TBA)
- Etasje
- 3
- Byggeår
- 1984
- Energimerking
- F - Oransje
- Rom
- 5
- Tomteareal
- 118 m² (eiet)
Fasiliteter
Balkong/Terrasse
Garasje/P-plass
Hage
Kjæledyr tillatt
Ingen gjenboere
Peis/Ildsted
Utsikt
Lademulighet
Om boligen
Velkommen til Leanglia 88, presentert av Terje Tveit i Krogsveen.
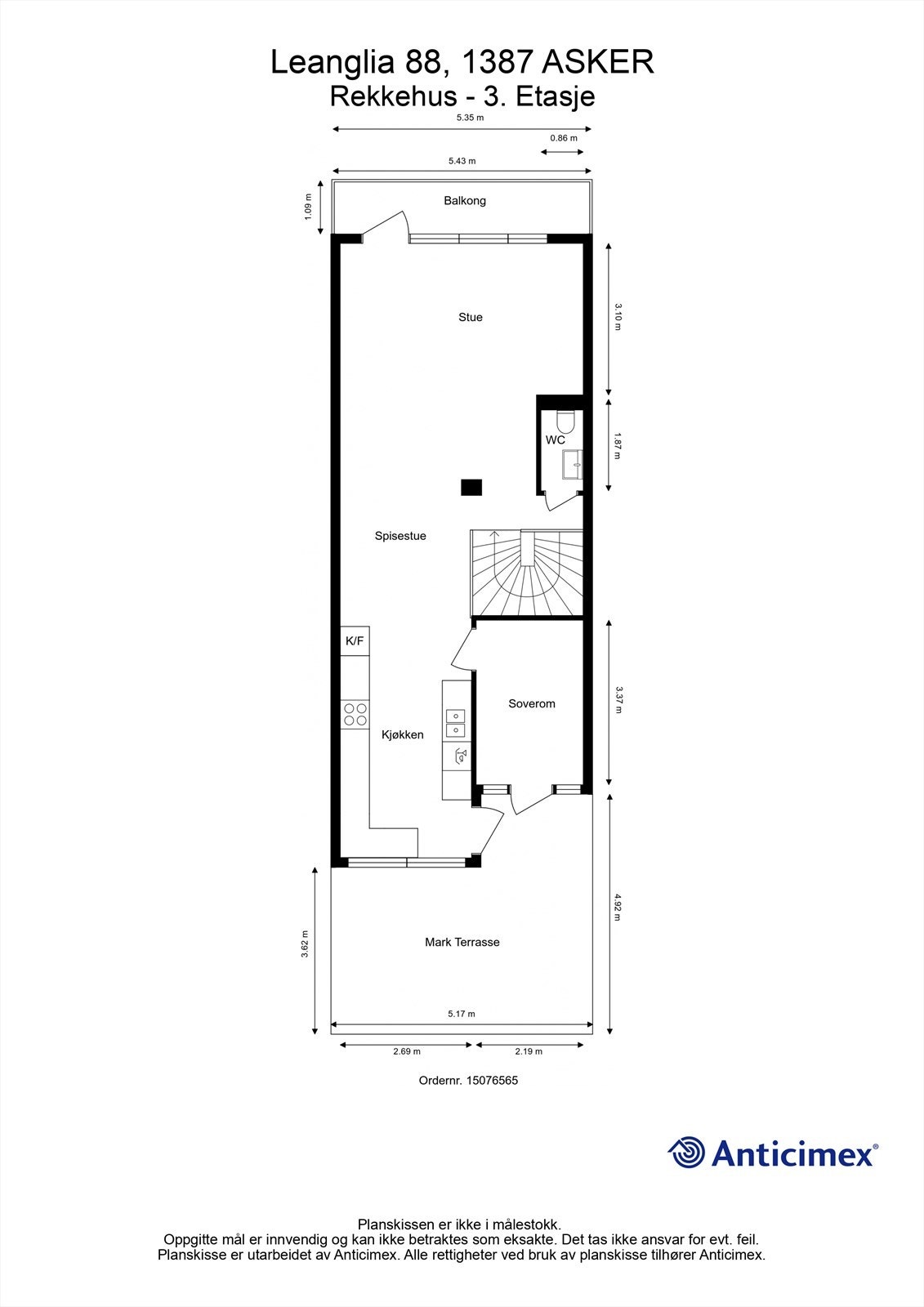
Her får du en innholdsrik bolig over 3 plan som inneholder 3 soverom, stue, spisestue, kjøkken, TV-stue, bad, vaskerom, 2 WC-rom, entré, 2 balkonger og markterrasse. Beliggende i blindvei, i et svært populært boligområde. Boligen går over tre plan og har til sammen tre flotte uteplasser og godt med sol. Sameiet har pent opparbeidede og velholdte fellesarealer på området bak rekkehusene, og her er det også lekeplass.
Kort fortalt:
Her får du en innholdsrik bolig over 3 plan som inneholder 3 soverom, stue, spisestue, kjøkken, TV-stue, bad, vaskerom, 2 WC-rom, entré, 2 balkonger og markterrasse. Beliggende i blindvei, i et svært populært boligområde. Boligen går over tre plan og har til sammen tre flotte uteplasser og godt med sol. Sameiet har pent opparbeidede og velholdte fellesarealer på området bak rekkehusene, og her er det også lekeplass.
Kort fortalt:
- Fantastisk utsikt
- 3 soverom
- Flere solrike uteplasser
- Gode solforhold
- Stille og fredelig
- Kort vei til sjø med bademuligheter og båthavn
- Nærhet til buss
- Parkeringsplass under tak
- Garasje rett utenfor døra
Velkommen til visning!
NB: Knappen for å vise hele beskrivelsen har kun en visuell effekt.
NB: Knappen for å vise hele beskrivelsen har kun en visuell effekt.
Salgsoppgaven beskriver vesentlig og lovpålagt informasjon om eiendommen
Se komplett salgsoppgaveNyttige lenker
Nærområdet
Krogsveen Asker
Velkommen til en enklere boligreise.
Annonseinformasjon
| FINN-kode | 434900334 |
|---|---|
| Sist endret | 30. des. 2025 11:08 |
| Referanse | KR15.2589 |
Annonsene kan være mangelfulle i forhold til lovpålagt opplysningsplikt. Før bindende avtale inngås oppfordres interessenter til å innhente komplett informasjon fra meglerforetaket, selger eller utleier.











































