Bildegalleri

Nordvik Tønsberg v/Jørgen Nyhus har gleden av å ønske velkommen til Vestre vei 2! Foto: Fotograf Magik.
Tolvsrød
Stor selveierleilighet på 153m² | 4(5) soverom og 2 bad | vestvendt og solrik balkong på 26m² | Egen garasjeplass
Prisantydning5 450 000 kr
Nøkkelinfo
- Boligtype
- Leilighet
- Eieform
- Eier (Selveier)
- Soverom
- 3
- Internt bruksareal
- 153 m² (BRA-i)
- Bruksareal
- 153 m²
- Balkong/Terrasse
- 26 m² (TBA)
- Etasje
- 2
- Byggeår
- 1987
- Energimerking
- E - Gul
- Rom
- 4
- Tomteareal
- 2 013 m² (eiet)
Fasiliteter
Balkong/Terrasse
Garasje/P-plass
Offentlig vann/kloakk
Peis/Ildsted
Sentralt
Turterreng
Lademulighet
Visning
Alle våre visninger har påmelding. På denne måten sikrer vi at megler har god oversikt og tid til å imøtekomme alle interessenter. Meld deg på visning ved å trykke på lenken visningspåmelding.
VisningspåmeldingOm boligen
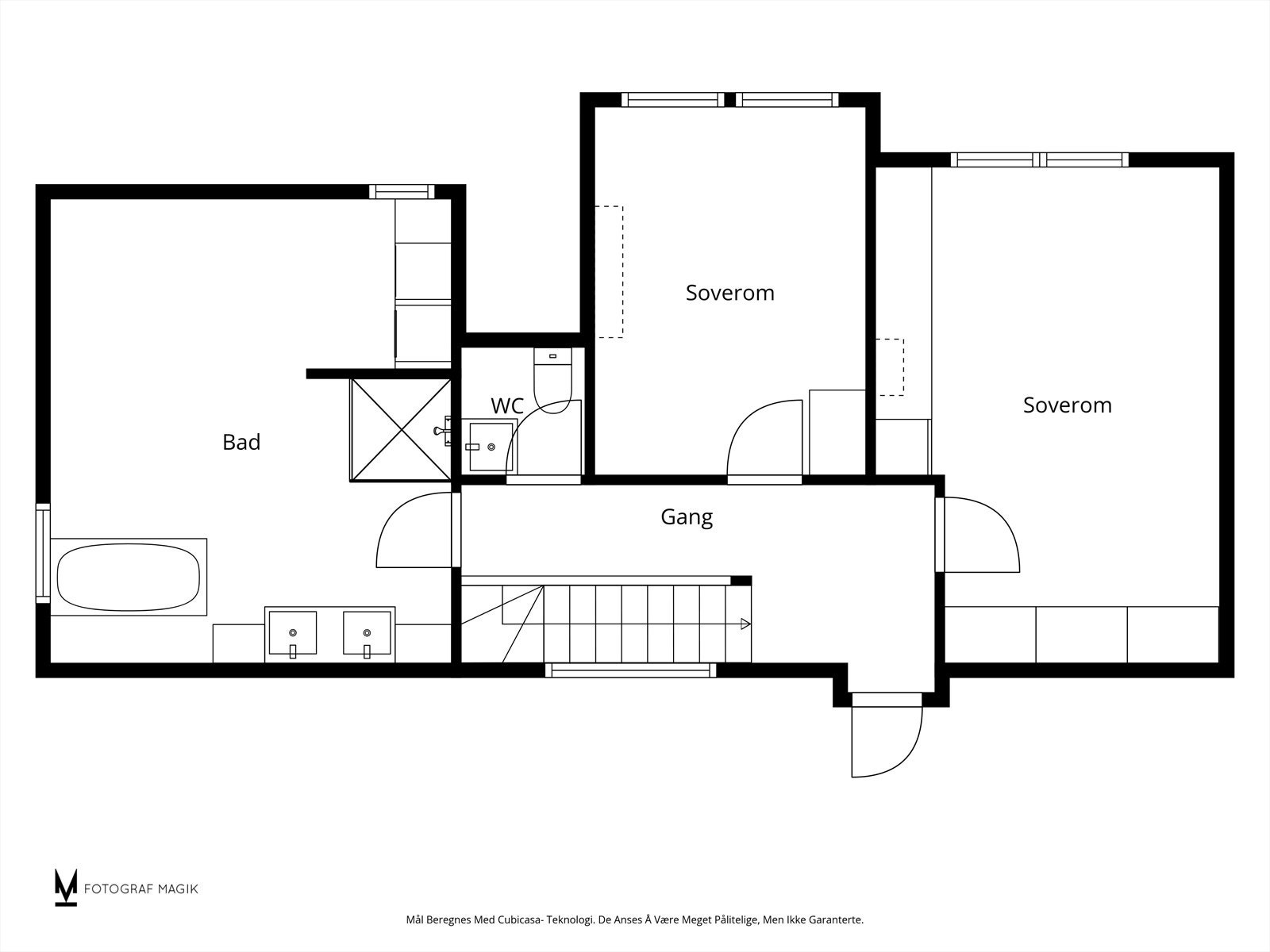
Velkommen til Vestre vei 2 og denne romslige og pene leiligheten på hele 153 kvm med fleksibel planløsning perfekt for familier, par eller deg som ønsker ekstra plass eller utleiemulighet. Boligen byr på store, lyse rom, moderne kjøkken fra Marbodal med integrerte hvitevarer, to pene bad, to separate toalettrom og opptil fire soverom. Stue med utgang til vestvendt terrasse med boblebad gir herlig hverdagsluksus. Boligen har vært gjennom diverse oppgraderinger i 2016/2017 med bl.a. nye to oppussede bad, nye vinduer, gulv og el-anlegg.
Tilhørende boligen medfølger en innvendig garasjeplass.
Attraktiv beliggenhet på Tolvsrød rolig og sentralt med kort vei til sentrum, sjø, skoler, barnehager og servicetilbud. En innholdsrik bolig med mye kvalitet og komfort!
Tilhørende boligen medfølger en innvendig garasjeplass.
Attraktiv beliggenhet på Tolvsrød rolig og sentralt med kort vei til sentrum, sjø, skoler, barnehager og servicetilbud. En innholdsrik bolig med mye kvalitet og komfort!
NB: Knappen for å vise hele beskrivelsen har kun en visuell effekt.
NB: Knappen for å vise hele beskrivelsen har kun en visuell effekt.
Salgsoppgaven beskriver vesentlig og lovpålagt informasjon om eiendommen
Se komplett salgsoppgaveNyttige lenker
Nærområdet
Nordvik Tønsberg
Annonseinformasjon
| FINN-kode | 434896067 |
|---|---|
| Sist endret | 01. des. 2025 14:16 |
| Referanse | 25-0183/25 |
Annonsene kan være mangelfulle i forhold til lovpålagt opplysningsplikt. Før bindende avtale inngås oppfordres interessenter til å innhente komplett informasjon fra meglerforetaket, selger eller utleier.



















































