Bildegalleri

Frydenberg
Klassisk familiebolig i vakker allé - rosetter i taket, stor hage og kort vei til sentrum. Kjeller med egen inngang.
Prisantydning5 790 000 kr
Nøkkelinfo
- Boligtype
- Enebolig
- Eieform
- Eier (Selveier)
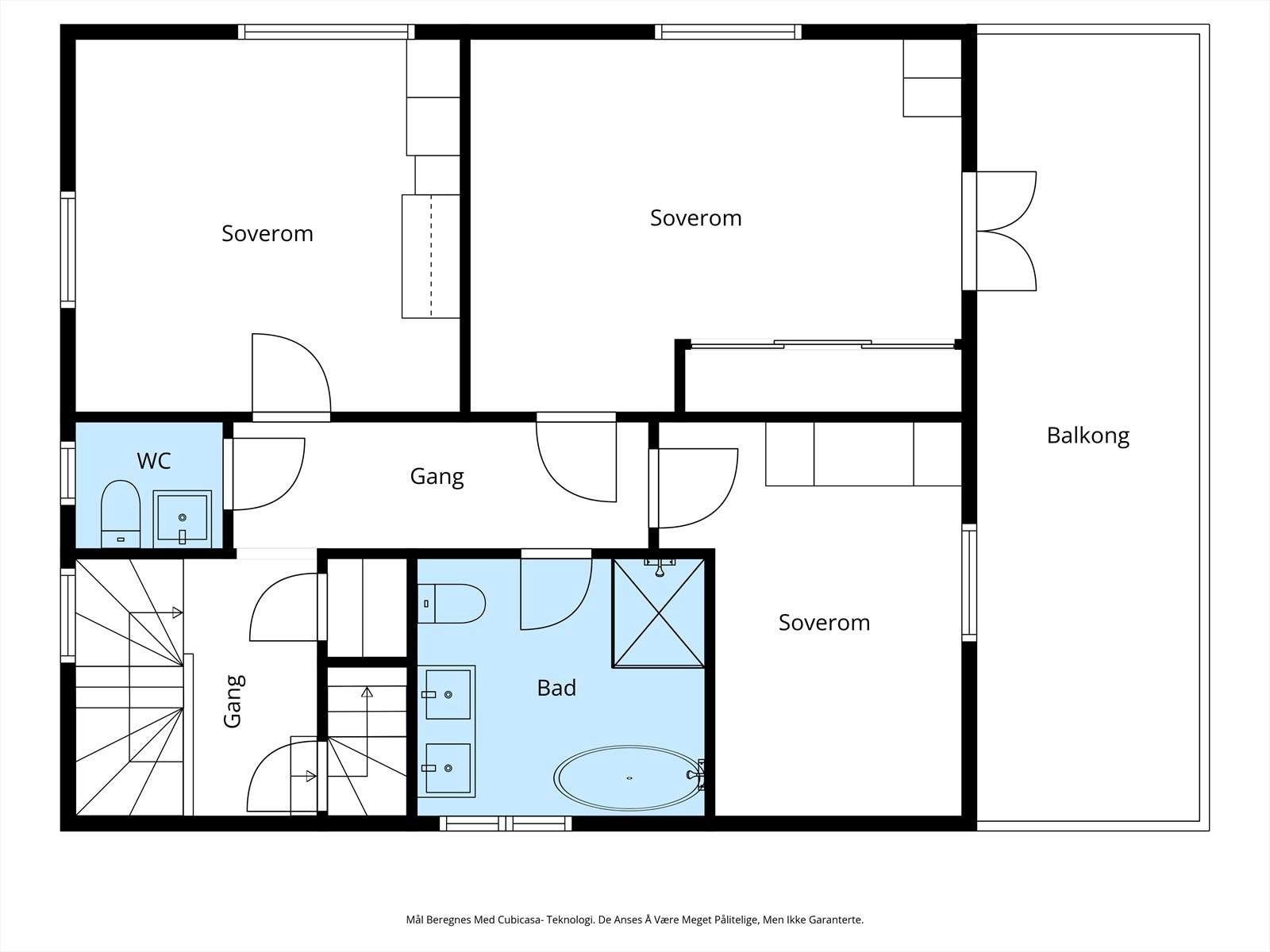
- Soverom
- 3
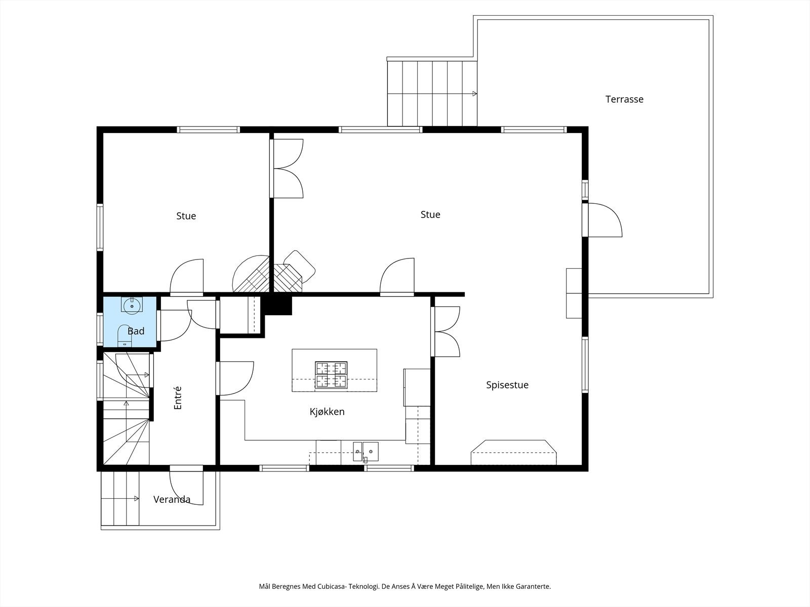
- Internt bruksareal
- 286 m² (BRA-i)
- Bruksareal
- 306 m²
- Eksternt bruksareal
- 20 m² (BRA-e)
- Balkong/Terrasse
- 43 m² (TBA)
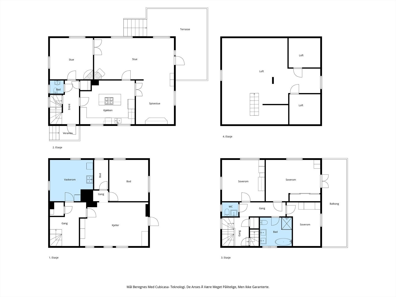
- Etasje
- 2
- Byggeår
- 1932
- Energimerking
- G - Rød
- Rom
- 4
- Tomteareal
- 547 m² (eiet)
Fasiliteter
Balkong/Terrasse
Barnevennlig
Bredbåndstilknytning
Garasje/P-plass
Hage
Kabel-TV
Offentlig vann/kloakk
Parkett
Peis/Ildsted
Rolig
Sentralt
Turterreng
Lademulighet
Om boligen
Vestre Frydenbergvei 12 ligger i bydelen Frydenberg, omtrent 1 km nordvest for Fredrikstad sentrum, med alle sentrumstilbud i gangavstand. Dette familievennlige og rolige nabolaget rommer smågater, gamle trehus og løvtrær. Skoler, barnehager og butikker finnes like ved. Veien er kort til Brattliparken og marka som byr på flotte turmuligheter. Den hvitmalte, velholdte eneboligen fra 1932 ligger fredelig til i et pent nabolag. Bak smijernsporter og stakittgjerde finner du forseggjorte, ryddige uteplasser. Fra de to romslige terrassene nyter du både kveldssol og langstrakt utsikt. Boligen strekker seg over to etasjer med lyse, flotte, oppussede rom der spesielt kjøkkenet og badet imponerer med sine kvaliteter. I kjelleren finnes plass til en utleiedel. Perfekt for en middels stor familie.
NB: Knappen for å vise hele beskrivelsen har kun en visuell effekt.
NB: Knappen for å vise hele beskrivelsen har kun en visuell effekt.
Salgsoppgaven beskriver vesentlig og lovpålagt informasjon om eiendommen
Se komplett salgsoppgaveNyttige lenker
Nærområdet
Nordvik Fredrikstad og Hvaler
Vi vet hva det er verdt
Annonseinformasjon
| FINN-kode | 434879859 |
|---|---|
| Sist endret | 04. feb. 2026 10:46 |
| Referanse | 30-0257/25 |
Annonsene kan være mangelfulle i forhold til lovpålagt opplysningsplikt. Før bindende avtale inngås oppfordres interessenter til å innhente komplett informasjon fra meglerforetaket, selger eller utleier.
















































