Bildegalleri

Velkommen til Voll Terrasse 53 A, presentert av Tinholt Eiendomsmegling.
JAR
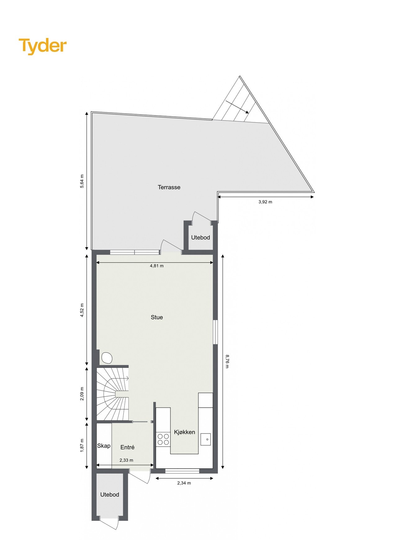
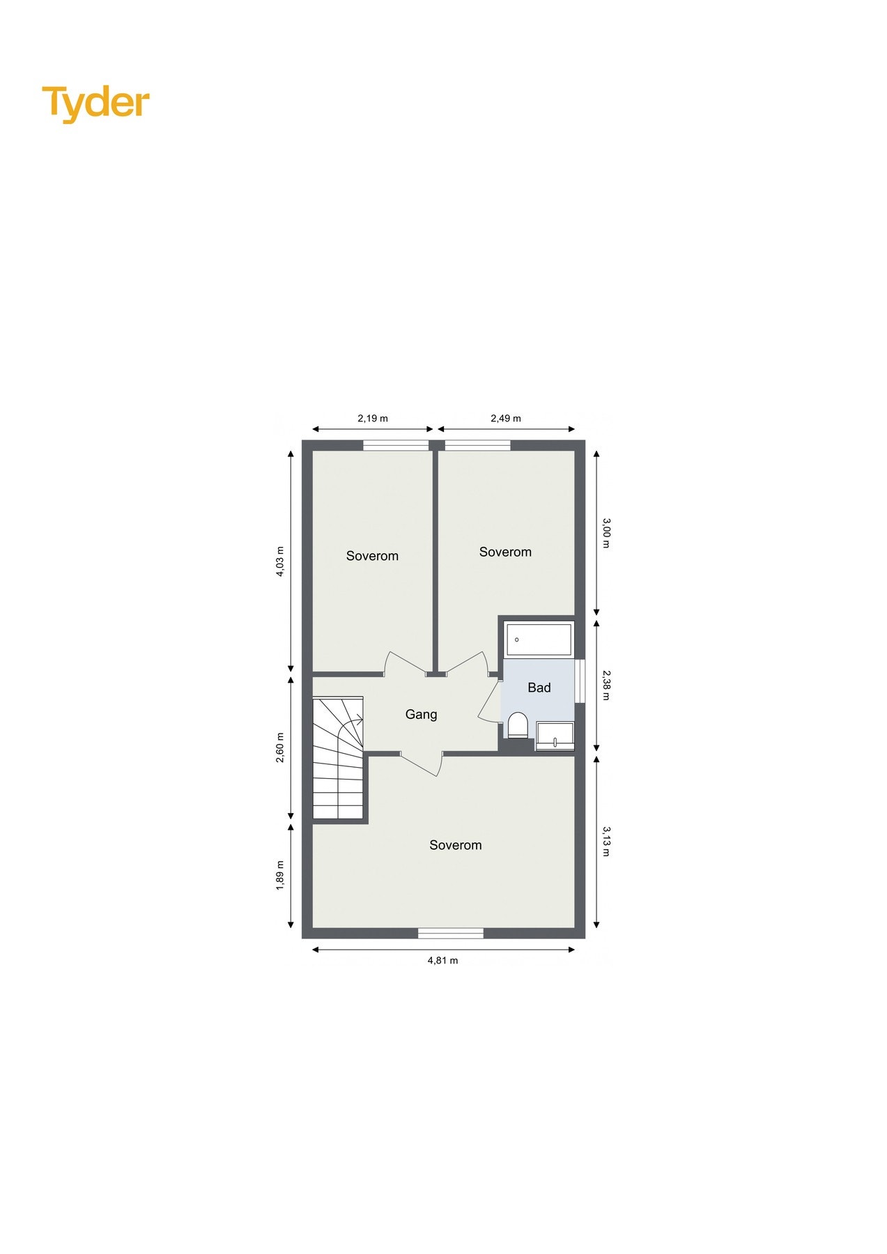
Attraktivt enderekkehus over tre plan | Solrik terrasse og hage | Peis | Garasje | Barnevennlig og idyllisk boområde
Prisantydning9 750 000 kr
Nøkkelinfo
- Boligtype
- Rekkehus
- Eieform
- Eier (Selveier)
- Soverom
- 3
- Internt bruksareal
- 123 m² (BRA-i)
- Bruksareal
- 126 m²
- Eksternt bruksareal
- 3 m² (BRA-e)
- Balkong/Terrasse
- 35 m² (TBA)
- Byggeår
- 1955
- Energimerking
- F - Oransje
- Tomteareal
- 1 995 m² (eiet)
Fasiliteter
Barnevennlig
Balkong/Terrasse
Garasje/P-plass
Offentlig vann/kloakk
Peis/Ildsted
Turterreng
Moderne
Rolig
Om boligen
Velkommen til Voll Terrasse 53 A - et innbydende enderekkehus over tre plan med en familievennlig beliggenhet. Her bor du stille og tilbaketrukket, uten gjennomgangstrafikk. Like ved boligen - i området kjent som "hesteskoen" - ligger et hyggelig felles lekeområde som fungerer som et naturlig samlingspunkt for nabolagets barnefamilier. Boligen har trygg skolevei og et nærmiljø som innbyr til et aktivt og sosialt familieliv.
Rekkehuset er gjennomtenkt utformet med god planløsning. Nærheten til Lysakerelven gir vakre naturomgivelser - perfekt for barnefamilien eller for deg som ønsker fredelige omgivelser med kort vei til det meste.
KV A L I T E T E R:
Rekkehuset er gjennomtenkt utformet med god planløsning. Nærheten til Lysakerelven gir vakre naturomgivelser - perfekt for barnefamilien eller for deg som ønsker fredelige omgivelser med kort vei til det meste.
KV A L I T E T E R:
- Stor terrasse på 35 kvm med gode solforhold
- Idyllisk hage med rikt utvalg av frukt og bær
- 2 varmepumper fra 2022 samt en peisovn i stue
- Garasje og biloppstillingsplass
- Yttertaket er tekket om i 2006/2007
- Eiksmarka skole
NB: Knappen for å vise hele beskrivelsen har kun en visuell effekt.
NB: Knappen for å vise hele beskrivelsen har kun en visuell effekt.
Salgsoppgaven beskriver vesentlig og lovpålagt informasjon om eiendommen
Se komplett salgsoppgaveNyttige lenker
Nærområdet
TINHOLT Eiendomsmegling
Du vil kjenne forskjellen
Annonseinformasjon
| FINN-kode | 434772104 |
|---|---|
| Sist endret | 03. jan. 2026 11:21 |
| Referanse | 201250392 |
Annonsene kan være mangelfulle i forhold til lovpålagt opplysningsplikt. Før bindende avtale inngås oppfordres interessenter til å innhente komplett informasjon fra meglerforetaket, selger eller utleier.

































