Bildegalleri

Velkommen til Reistaddalen 27!
Vågstranda
Nydelig eiendom med strandlinje og naust - Modernisert og renovert enebolig - Garasje - Flott opparbeidet tomt på 920 m2
Prisantydning3 900 000 kr
Nøkkelinfo
- Boligtype
- Enebolig
- Eieform
- Eier (Selveier)
- Soverom
- 3
- Internt bruksareal
- 186 m² (BRA-i)
- Bruksareal
- 281 m²
- Eksternt bruksareal
- 95 m² (BRA-e)
- Balkong/Terrasse
- 93 m² (TBA)
- Byggeår
- 1957
- Rom
- 5
- Tomteareal
- 920 m² (eiet)
Fasiliteter
Balkong/Terrasse
Garasje/P-plass
Fiskemulighet
Peis/Ildsted
Strandlinje
Turterreng
Moderne
Rolig
Bademulighet
Visning
søndag, 15. februar
12:00 – 13:00
Våre visninger har påmelding. Dette gjør vi for å kunne yte bedre service for våre kunder. Verdifullt for boligkjøper og for oss. Vi anbefaler at salgsoppgaven lastes ned digitalt før visning, og ring oss gjerne på forhånd for spørsmål om boligen. Passer ikke angitt tidspunkt, ta kontakt så finner vi en løsning. Skulle det mot formodning ikke være påmeldte til angitt visningstidspunkt vil ikke visning bli gjennomført.
Om boligen
Velkommen til Reistaddalen 27!
Flott eiendom på Vågstranda med lang strandlinje og fantastisk utsikt. Tomten er romslig og pent opparbeidet med plen, steinmur og fine uteplasser. Her har man sol til langt på kveld på sommerstid. Boligen er påbygd og modernisert de siste årene. Både tak, kledning, etterisolering, vinduer, terrasser, vinterhage og kjøkken nytt i 2019.
Naustet ble oppført i 1998 og har støpt stø. Garasjen over naustet ble oppført i 2003.
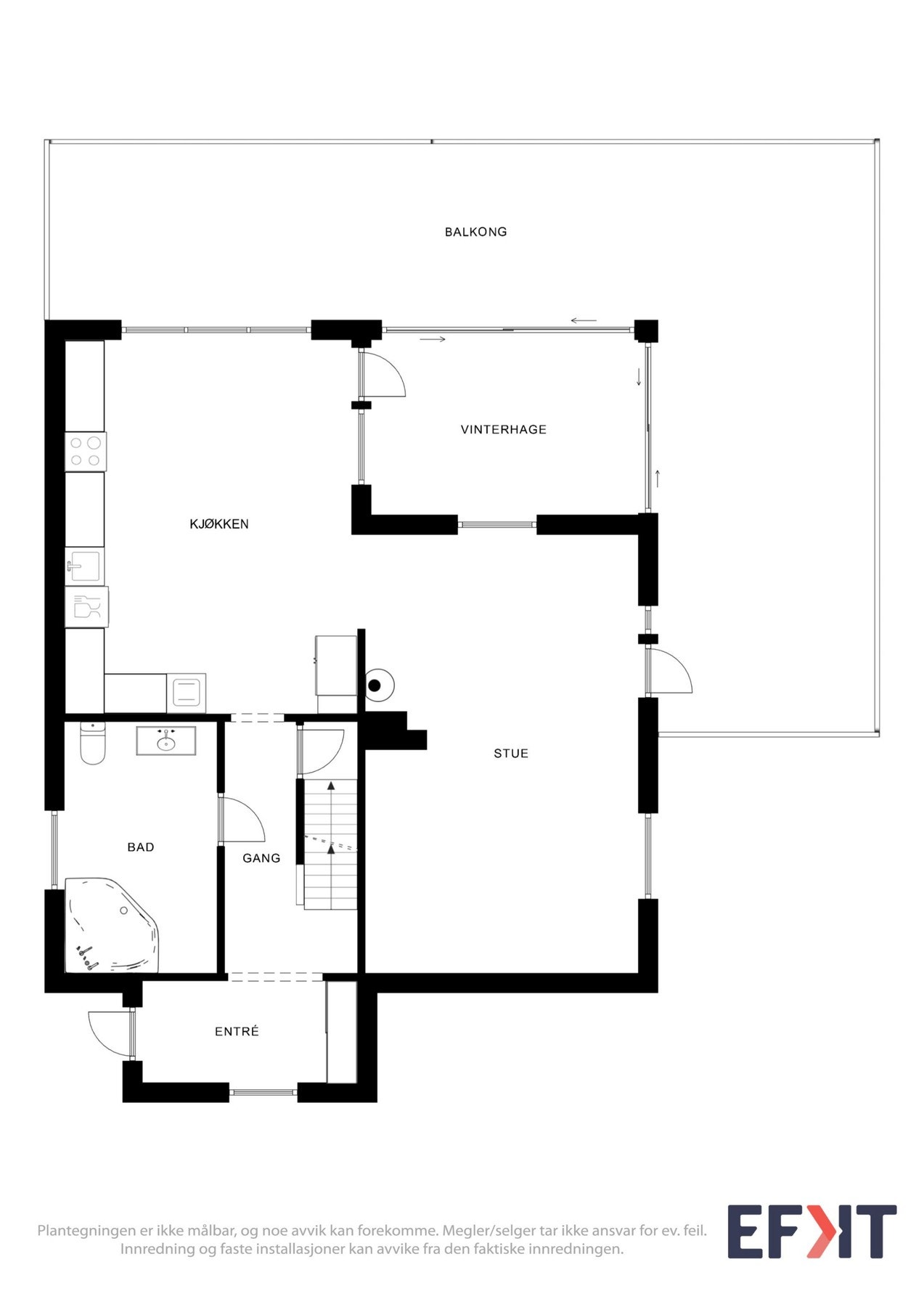
1. etasje: Bad, gang, kjøkken, stue, vinterstue.
2. etasje: Gang, 3 soverom.
Kjeller: Bad, gang, kjellerstue, bod, vaskerom.
Flott eiendom på Vågstranda med lang strandlinje og fantastisk utsikt. Tomten er romslig og pent opparbeidet med plen, steinmur og fine uteplasser. Her har man sol til langt på kveld på sommerstid. Boligen er påbygd og modernisert de siste årene. Både tak, kledning, etterisolering, vinduer, terrasser, vinterhage og kjøkken nytt i 2019.
Naustet ble oppført i 1998 og har støpt stø. Garasjen over naustet ble oppført i 2003.
1. etasje: Bad, gang, kjøkken, stue, vinterstue.
2. etasje: Gang, 3 soverom.
Kjeller: Bad, gang, kjellerstue, bod, vaskerom.
NB: Knappen for å vise hele beskrivelsen har kun en visuell effekt.
NB: Knappen for å vise hele beskrivelsen har kun en visuell effekt.
Salgsoppgaven beskriver vesentlig og lovpålagt informasjon om eiendommen
Se komplett salgsoppgaveNyttige lenker
Nærområdet
EiendomsMegler 1 Molde
Vi loser deg trygt gjennom hele boligsalget
Annonseinformasjon
| FINN-kode | 434762236 |
|---|---|
| Sist endret | 30. jan. 2026 11:13 |
| Referanse | 13250397 |
Annonsene kan være mangelfulle i forhold til lovpålagt opplysningsplikt. Før bindende avtale inngås oppfordres interessenter til å innhente komplett informasjon fra meglerforetaket, selger eller utleier.














































