Bildegalleri

Krogsveen v/ Emilio de Paoli Dunne | Vesthagan 56
Blaker
Enebolig med alt på en flate og stort potensial | Solrik tomt| Barnevennlig | Rolig beliggenhet mot landbruksareal |
Prisantydning3 090 000 kr
Nøkkelinfo
- Boligtype
- Enebolig
- Eieform
- Eier (Selveier)
- Soverom
- 2
- Internt bruksareal
- 101 m² (BRA-i)
- Bruksareal
- 108 m²
- Eksternt bruksareal
- 7 m² (BRA-e)
- Balkong/Terrasse
- 22 m² (TBA)
- Etasje
- 1
- Byggeår
- 1986
- Energimerking
- F - Rød
- Rom
- 3
- Tomteareal
- 585 m² (eiet)
Fasiliteter
Balkong/Terrasse
Barnevennlig
Hage
Peis/Ildsted
Rolig
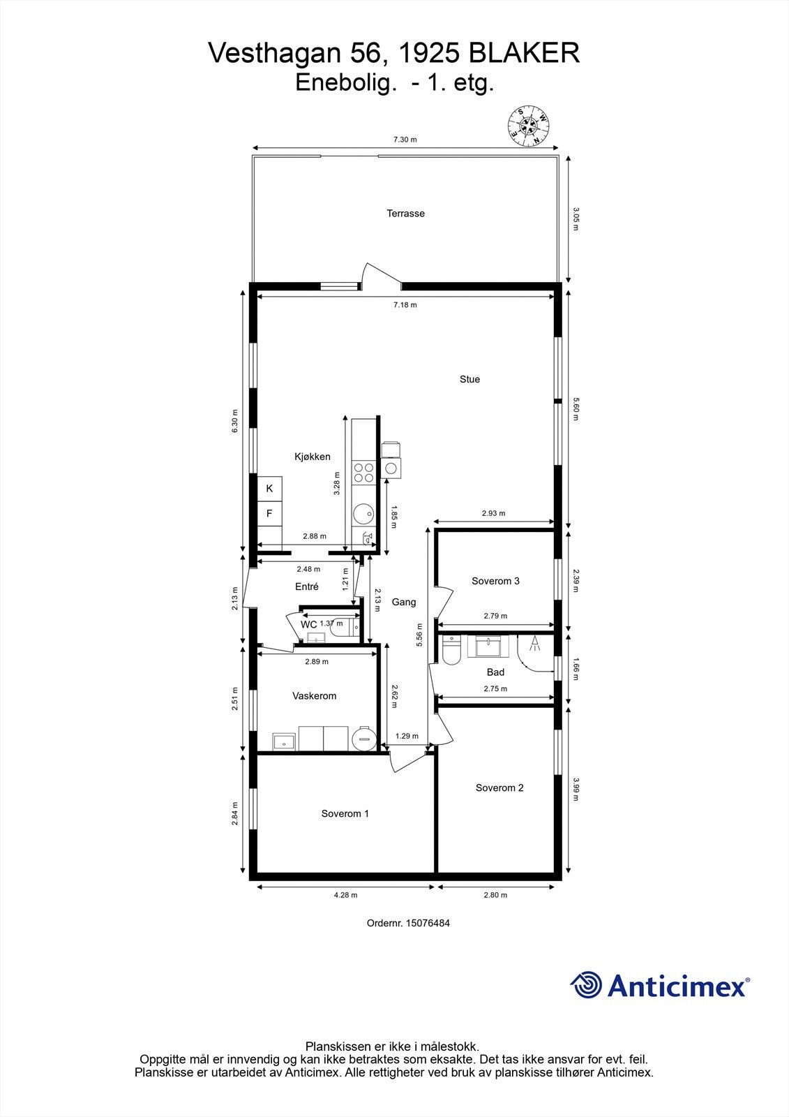
Om boligen
Enebolig med alt på en flate med tilbaketrukket beliggenhet og stort potensial - velkommen til Vesthagan 56. Attraktiv og solrik beliggenhet på etablert boligfelt i Blaker i Lillestrøm kommune.
Boligen holder en gjennomgående enkel standard og har et stort potensial. Her har du nok boltreplass for familien både inne og ute. Boligen går over et plan med fornuftig planløsning og inneholder blant annet: kjøkken, stue, bad, toalettrom, vaskerom, to soverom og bod/disponibelt rom. Fra stuen er det utgang til solrik terrasse på ca. 22 kvm. som er sørvestvendt og med videre utgang hagen med god plass til lek og moro for de minste.
Velkommen til visning. Huske å melde deg på!
Boligen holder en gjennomgående enkel standard og har et stort potensial. Her har du nok boltreplass for familien både inne og ute. Boligen går over et plan med fornuftig planløsning og inneholder blant annet: kjøkken, stue, bad, toalettrom, vaskerom, to soverom og bod/disponibelt rom. Fra stuen er det utgang til solrik terrasse på ca. 22 kvm. som er sørvestvendt og med videre utgang hagen med god plass til lek og moro for de minste.
Velkommen til visning. Huske å melde deg på!
NB: Knappen for å vise hele beskrivelsen har kun en visuell effekt.
NB: Knappen for å vise hele beskrivelsen har kun en visuell effekt.
Salgsoppgaven beskriver vesentlig og lovpålagt informasjon om eiendommen
Se komplett salgsoppgaveNyttige lenker
Nærområdet
Krogsveen Jessheim
Verdien av en god megler.
Annonseinformasjon
| FINN-kode | 434707426 |
|---|---|
| Sist endret | 28. jan. 2026 12:53 |
| Referanse | KR63.25241 |
Annonsene kan være mangelfulle i forhold til lovpålagt opplysningsplikt. Før bindende avtale inngås oppfordres interessenter til å innhente komplett informasjon fra meglerforetaket, selger eller utleier.
































