Bildegalleri

EiendomsMegler1 v/Karen Heggset Monge har gleden av å presentere Nerlandsdalen 19 A. FOTO: EFKT (Vilde Dahl)
Strøken halvpart av tomannsbolig, meget smakfullt og delikat innredet !
Prisantydning3 490 000 kr
Nøkkelinfo
- Boligtype
- Tomannsbolig
- Eieform
- Eier (Selveier)
- Soverom
- 3
- Internt bruksareal
- 118 m² (BRA-i)
- Bruksareal
- 118 m²
- Balkong/Terrasse
- 9 m² (TBA)
- Byggeår
- 1954
- Energimerking
- G - Oransje
- Rom
- 4
- Tomteareal
- 191 m² (eiet)
Fasiliteter
Balkong/Terrasse
Utsikt
Moderne
Visning
tirsdag, 20. januar
17:00 – 17:45
Våre visninger har påmelding. Dette gjør vi for å kunne yte bedre service for våre kunder. Verdifullt for boligkjøper og for oss. Vi anbefaler at salgsoppgaven lastes ned digitalt før visning, og ring oss gjerne på forhånd for spørsmål om boligen. Passer ikke angitt tidspunkt, ta kontakt så finner vi en løsning. Skulle det mot formodning ikke være påmeldte til angitt visningstidspunkt vil ikke visning bli gjennomført.
Om boligen
Eiendomsmegler 1 v/ Karen Heggset Monge har gleden av å presentere denne flotte og delikate boligen beliggende i attraktive Nerlandsdalen med fine sol og lysforhold og flott utsikt over Bremsnesfjorden og ut mot Stavneset. Gangavstand til sentrum med alle dets fasiliteter.
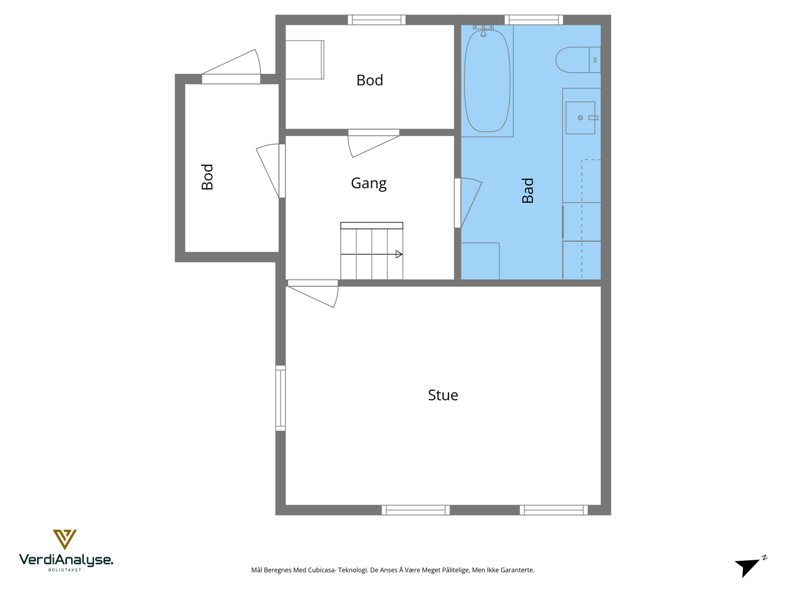
Boligen er gjennomgående oppusset i 2018/2019 og er meget smakfult og delikat innredet. Boligen inneholder bl.a vf, gang, stue, kjøkken, 3 soverom, kjellerstue, rom, bad, vaskerom/bad samt bod og kott. Koselig markterrasse der fine sommerdager kan nytes.
Utvendig er det gjort følgende: (2018/2019)
-Nye vindsperrer og kledning på utvendige
vegger.
-Nytt el-anlegg og rørsystem med rør-i-rør.
-Skiftet vinduer og ytterdører.
-Utvidet terrasse med nytt dekke og rekkverk.
-Ny markterrasse
Velkommen til visning !
Boligen er gjennomgående oppusset i 2018/2019 og er meget smakfult og delikat innredet. Boligen inneholder bl.a vf, gang, stue, kjøkken, 3 soverom, kjellerstue, rom, bad, vaskerom/bad samt bod og kott. Koselig markterrasse der fine sommerdager kan nytes.
Utvendig er det gjort følgende: (2018/2019)
-Nye vindsperrer og kledning på utvendige
vegger.
-Nytt el-anlegg og rørsystem med rør-i-rør.
-Skiftet vinduer og ytterdører.
-Utvidet terrasse med nytt dekke og rekkverk.
-Ny markterrasse
Velkommen til visning !
NB: Knappen for å vise hele beskrivelsen har kun en visuell effekt.
NB: Knappen for å vise hele beskrivelsen har kun en visuell effekt.
Salgsoppgaven beskriver vesentlig og lovpålagt informasjon om eiendommen
Se komplett salgsoppgaveNyttige lenker
Nærområdet
EiendomsMegler 1 Kristiansund
Vi loser deg trygt gjennom hele boligsalget
Annonseinformasjon
| FINN-kode | 434706837 |
|---|---|
| Sist endret | 07. jan. 2026 09:56 |
| Referanse | 17250448 |
Annonsene kan være mangelfulle i forhold til lovpålagt opplysningsplikt. Før bindende avtale inngås oppfordres interessenter til å innhente komplett informasjon fra meglerforetaket, selger eller utleier.




























