Bildegalleri

Velkommen til Ridebaneveien 9!
Birkenlund
Enebolig i kjede beliggende i attraktivt og barnevennlig nabolag! Garasje
Prisantydning2 200 000 kr
Nøkkelinfo
- Boligtype
- Enebolig
- Eieform
- Eier (Selveier)
- Soverom
- 3
- Internt bruksareal
- 112 m² (BRA-i)
- Bruksareal
- 144 m²
- Eksternt bruksareal
- 32 m² (BRA-e)
- Balkong/Terrasse
- 37 m² (TBA)
- Etasje
- 2
- Byggeår
- 1971
- Energimerking
- F - Oransje
- Tomteareal
- 220 m² (festet)
- Festeavgift
- 888 kr
Visning
Eiendomsmegler Norge sine visninger har påmelding. Påmelding gjøres enkelt ved å benytte knappen under. Ta kontakt med megler dersom oppsatt tidspunkt ikke passer. Det vil ikke bli avholdt visning uten påmelding, frist for påmelding er senest kl. 12.00 på visningsdagen. Husk å laste ned salgsoppgaven digitalt før visning. Velkommen til en hyggelig visning!
VisningspåmeldingOm boligen
Boligen ligger i etablert og populært boligområde ca. 2.5 km øst for Arendal sentrum. Meget barnevennlig område med kort gangavstand til det meste som skole, barnehager, dagligvarebutikk og flotte turområder med lysløype. Gang og sykkelsti til sentrum hvor deler av veien er med nærhet til sjøen. Herfra er det enkelt å komme seg rundt enten du skal til sentrum, jobb eller fritidsaktiviteter.
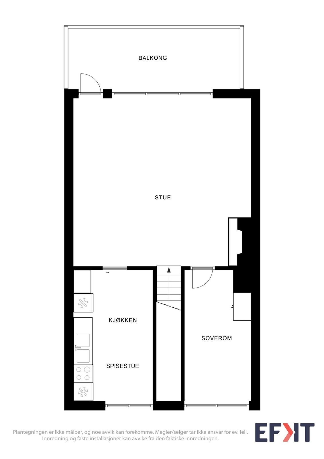
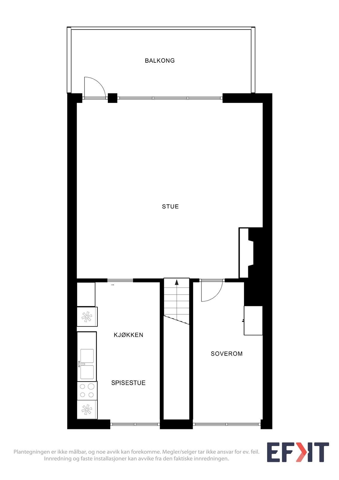
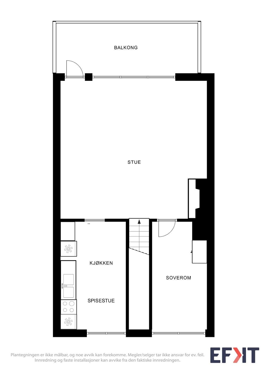
Boligen går over to plan og inneholder blant annet: Hall, 2 soverom, bad og vaskerom i 1 etasje. Stue, kjøkken og ett soverom i 2 etasje. Hyggelig veranda ut fra stuedel.
Garasje til en bil
Boligen går over to plan og inneholder blant annet: Hall, 2 soverom, bad og vaskerom i 1 etasje. Stue, kjøkken og ett soverom i 2 etasje. Hyggelig veranda ut fra stuedel.
Garasje til en bil
NB: Knappen for å vise hele beskrivelsen har kun en visuell effekt.
NB: Knappen for å vise hele beskrivelsen har kun en visuell effekt.
Salgsoppgaven beskriver vesentlig og lovpålagt informasjon om eiendommen
Se komplett salgsoppgaveNyttige lenker
Nærområdet
Eiendomsmegler Norge Arendal
Det viktigste stedet i Norge er der du bor
Annonseinformasjon
| FINN-kode | 434606884 |
|---|---|
| Sist endret | 07. nov. 2025 13:54 |
| Referanse | 59250362 |
Annonsene kan være mangelfulle i forhold til lovpålagt opplysningsplikt. Før bindende avtale inngås oppfordres interessenter til å innhente komplett informasjon fra meglerforetaket, selger eller utleier.























































