Bildegalleri

Christian Halvorsen v/EIE eiendomsmegling har gleden av å presentere Heggeveien 15F!
Lys og tiltalende 2-roms leilighet | Stor innglasset balkong på 17 m² | Peisovn | Garasjeplass | Attraktiv beliggenhet!
Prisantydning3 290 000 kr
Nøkkelinfo
- Boligtype
- Leilighet
- Eieform
- Andel
- Soverom
- 1
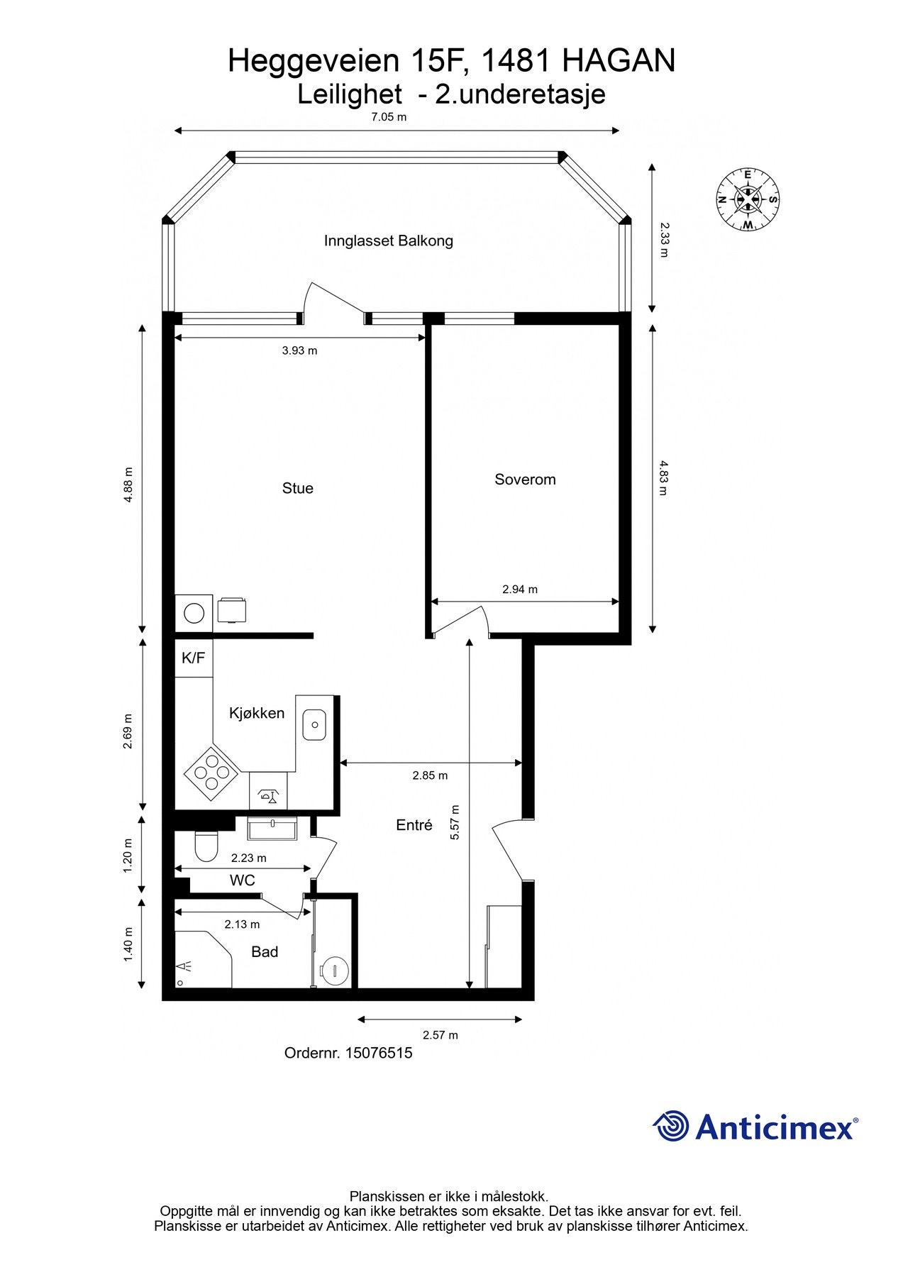
- Internt bruksareal
- 65 m² (BRA-i)
- Bruksareal
- 86 m²
- Eksternt bruksareal
- 4 m² (BRA-e)
- Innglasset balkong
- 17 m² (BRA-b)
- Byggeår
- 1969
- Energimerking
- F - Rød
- Rom
- 2
- Tomteareal
- 39 097 m² (eiet)
Fasiliteter
Barnevennlig
Balkong/Terrasse
Garasje/P-plass
Kabel-TV
Offentlig vann/kloakk
Peis/Ildsted
Turterreng
Sentralt
Bredbåndstilknytning
Rolig
Om boligen
Christian Halvorsen v/EIE eiendomsmegling har gleden av å presentere Heggeveien 15F!
En romslig og innbydende 2-roms leilighet med stor innglasset balkong og garasjeplass. Her bor du lyst, luftig og praktisk med kort vei til alt du trenger i hverdagen. Leiligheten har en god og gjennomtenkt planløsning med et stort soverom, flislagt bad og et kjøkken med plass til spisebord. Stuen er lys og trivelig, med moderne peisovn. Fra stuen er det utgang til en stor innglasset balkong - et ekstra oppholdsrom som kan brukes store deler av året. Til leiligheten følger garasjeplass med el-billader i fellesanlegg, og det er gode gjesteparkeringsmuligheter i området.
Høydepunkter:
En romslig og innbydende 2-roms leilighet med stor innglasset balkong og garasjeplass. Her bor du lyst, luftig og praktisk med kort vei til alt du trenger i hverdagen. Leiligheten har en god og gjennomtenkt planløsning med et stort soverom, flislagt bad og et kjøkken med plass til spisebord. Stuen er lys og trivelig, med moderne peisovn. Fra stuen er det utgang til en stor innglasset balkong - et ekstra oppholdsrom som kan brukes store deler av året. Til leiligheten følger garasjeplass med el-billader i fellesanlegg, og det er gode gjesteparkeringsmuligheter i området.
Høydepunkter:
- Innglasset balkong, et ekstra rom store deler av året
- Delvis åpen stue-/kjøkkenløsning
- Romslig soverom med god plass til oppbevaring
- Mulighet for kontorplass ved entréen
- Garasjeplass med el-billader medfølger
- Rolig, sentral beliggenhet på Hagan
NB: Knappen for å vise hele beskrivelsen har kun en visuell effekt.
NB: Knappen for å vise hele beskrivelsen har kun en visuell effekt.
Salgsoppgaven beskriver vesentlig og lovpålagt informasjon om eiendommen
Se komplett salgsoppgaveNyttige lenker
Nærområdet
EIE eiendomsmegling Lørenskog
Annonseinformasjon
| FINN-kode | 434598211 |
|---|---|
| Sist endret | 30. jan. 2026 12:23 |
| Referanse | 32250267 |
Annonsene kan være mangelfulle i forhold til lovpålagt opplysningsplikt. Før bindende avtale inngås oppfordres interessenter til å innhente komplett informasjon fra meglerforetaket, selger eller utleier.
































