


Velkommen til Østre Tromøyvei 531A - Presentert av Marius Engelskjønn v/Meglerhuset & Partners
Innholdsrik tomannsbolig med solrik uteplass og godt med parkering - i rolige og naturskjønne omgivelser!
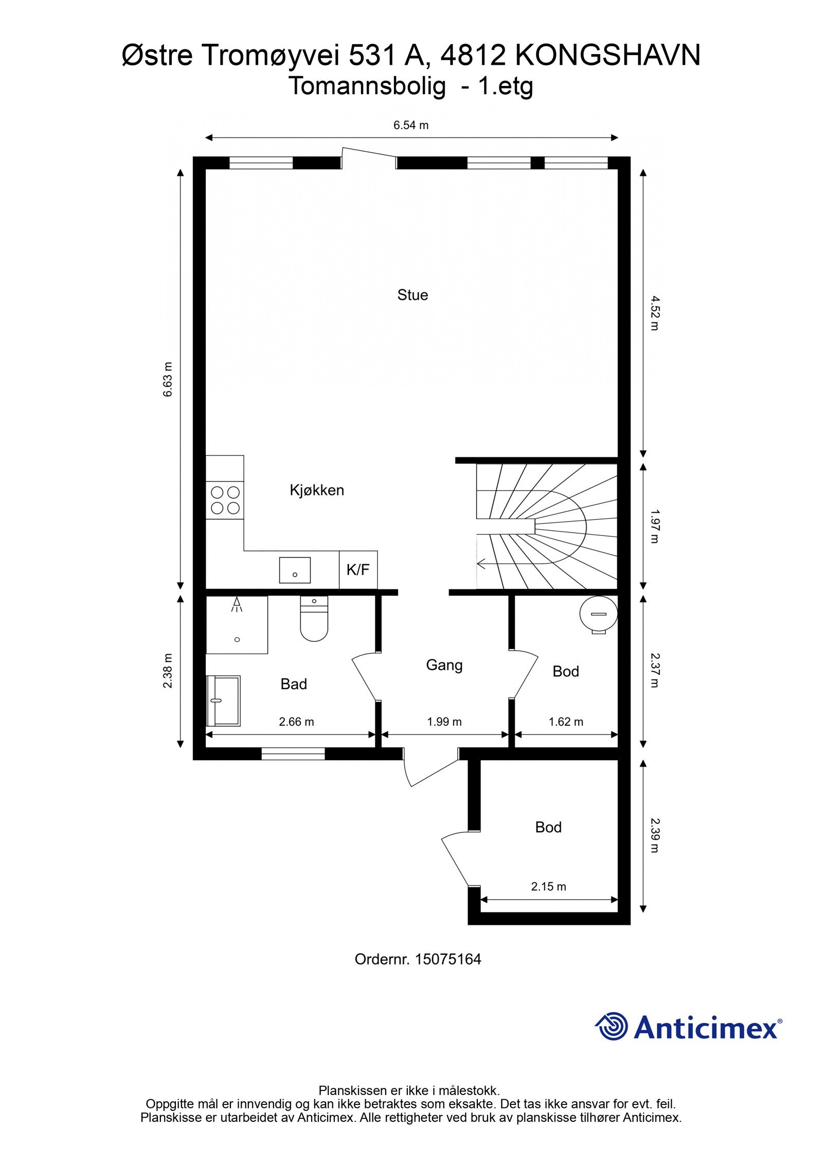
Her får du en nyere bolig med godt grunnlag for å skape seg et fint hjem. Boligen er lettstelt og praktisk med fin planløsning og romslig tomt. Det er hele 4 soverom i loftsetasjen i tillegg til loftstue. I 1.etg er det bad, teknisk rom/bod, kjøkken og stue med utgang til solrik uteplass med deilig kveldssol til 21 tiden om sommeren. Her bor du med gåavstand til sjøen og flotte badeplasser, fine turløyper, og til Sandnes skole med SFO hvor også Tromøy IL har deres kunstgressbane. Det er kort kjørevei til nærbutikk på Kongshavn. Tromøy byr ellers på nydelig natur, festivaler om sommeren, velkjente Hove, selvplukk, og kafé med lokalproduserte varer.
Velkommen til hyggelig visning!
Salgsoppgaven beskriver vesentlig og lovpålagt informasjon om eiendommen
Se komplett salgsoppgaveØstre Tromøyvei 531A
på annonsen
prisantydning per kvadratmeter
Pris per m² ligger 4 195 kr under snittet for tomannsboliger i Arendal.
Grafen viser antall tomannsboliger solgt i Arendal siste året fordelt på pris per m² - totalt 56 tomannsboliger
Antall boliger
Kvadratmeterpris tilsvarer prisantydning pluss fellesgjeld per kvadratmeter (p-rom eller BRA-i). Prisene i grafen er avrundet til nærmeste 1000 kr.












| FINN-kode | 434592059 |
|---|---|
| Sist endret | 23. apr. 2026 13:39 |
| Referanse | 40250240 |
Annonsene kan være mangelfulle i forhold til lovpålagt opplysningsplikt. Før bindende avtale inngås oppfordres interessenter til å innhente komplett informasjon fra meglerforetaket, selger eller utleier.