Bildegalleri

Velkommen til Laboveien 12 - En lys og gjennomgående 3-roms selveierleilighet beliggende i et rolig og barnevennlig boligområde på Lahaugmoen mellom Skjetten og Gjelleråsen.
Skjetten
Gjennomgående 3-roms selveierleilighet med solrik balkong og fin utsikt | Garasje | Barnevennlige og rolige omgivelser!
Prisantydning3 300 000 kr
Nøkkelinfo
- Boligtype
- Leilighet
- Eieform
- Eier (Selveier)
- Soverom
- 2
- Internt bruksareal
- 66 m² (BRA-i)
- Bruksareal
- 94 m²
- Eksternt bruksareal
- 28 m² (BRA-e)
- Balkong/Terrasse
- 16 m² (TBA)
- Etasje
- 2
- Byggeår
- 1953
- Energimerking
- G - Oransje
- Rom
- 3
- Tomteareal
- 12 081 m² (eiet)
Fasiliteter
Balkong/Terrasse
Barnevennlig
Bredbåndstilknytning
Garasje/P-plass
Kjæledyr tillatt
Kabel-TV
Offentlig vann/kloakk
Peis/Ildsted
Rolig
Utsikt
Turterreng
Visning
Velkommen til visning! Meld deg på ved å trykke "visningspåmelding" i våre boligannonser. Visning med megler til stede vil ikke bli avholdt uten påmeldinger. Ta gjerne kontakt med megler i forkant av visningen om du har spørsmål.
VisningspåmeldingOm boligen
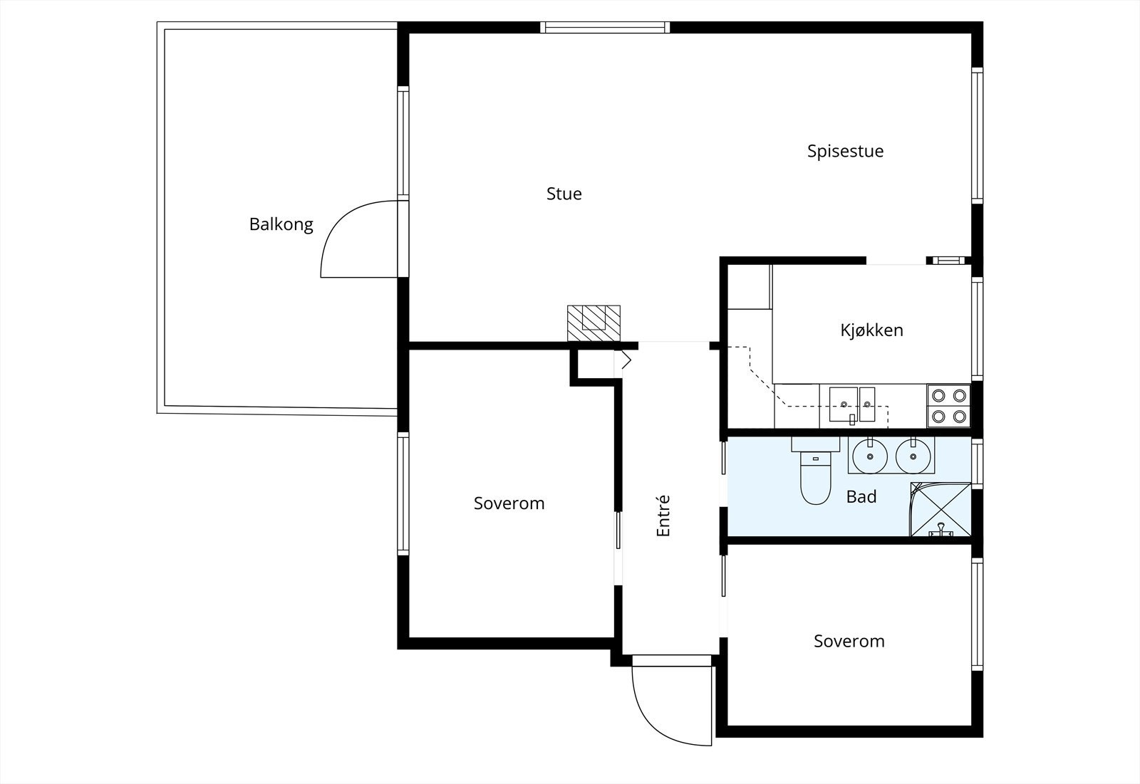
Velkommen til Laboveien 12! En lys og gjennomgående 3-roms selveierleilighet beliggende i et rolig og barnevennlig boligområde på Lahaugmoen mellom Skjetten og Gjelleråsen. Her bor du landlig til med flotte grøntarealer, lekeplass på tomten og kort vei til marka, turstier og badevann. Området har nærhet til skoler, barnehager, dagligvarebutikker og gode kollektivforbindelser til Lillestrøm og Oslo. Perfekt for deg som ønsker trygge omgivelser og enkel tilgang til både natur og byliv.
Kort fortalt:
Vel møtt til visning!
Kort fortalt:
- Praktisk planløsning
- Stor, solrik balkong med flott utsyn
- Romslig stue med varmepumpe og peisovn
- To gode soverom
- Tre kjellerboder og en stor loftsbod
- Garasjeplass
- Tv/internett inkl.
- Veletablert og rolig boligområde
Vel møtt til visning!
NB: Knappen for å vise hele beskrivelsen har kun en visuell effekt.
NB: Knappen for å vise hele beskrivelsen har kun en visuell effekt.
Salgsoppgaven beskriver vesentlig og lovpålagt informasjon om eiendommen
Se komplett salgsoppgaveNyttige lenker
Nærområdet
DNB Eiendom AS
Fra hjem til hjem
Annonseinformasjon
| FINN-kode | 434589050 |
|---|---|
| Sist endret | 10. des. 2025 10:58 |
| Referanse | 303250495 |
Annonsene kan være mangelfulle i forhold til lovpålagt opplysningsplikt. Før bindende avtale inngås oppfordres interessenter til å innhente komplett informasjon fra meglerforetaket, selger eller utleier.

























