Bildegalleri

Velkommen til C. E Holters vei 8, presentert av Eiendomsmegler 1 v/Maximilian Englund Aslaksen.
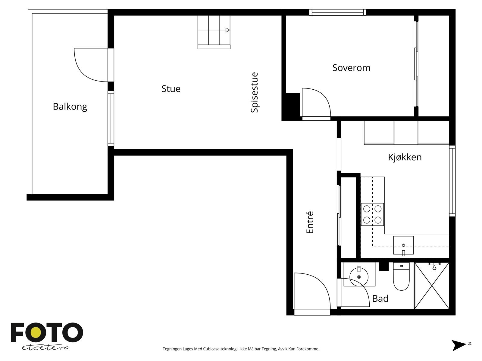
Pen andelsleilighet i 2.etg med balkong |2 soverom |God lagringsplass | Kjøkken fra 2024
Prisantydning2 100 000 kr
Nøkkelinfo
- Boligtype
- Leilighet
- Eieform
- Andel
- Soverom
- 2
- Internt bruksareal
- 61 m² (BRA-i)
- Bruksareal
- 79 m²
- Eksternt bruksareal
- 18 m² (BRA-e)
- Balkong/Terrasse
- 10 m² (TBA)
- Etasje
- 2
- Byggeår
- 1957
- Energimerking
- E - Rød
- Rom
- 3
- Tomteareal
- 4 638 m² (festet)
- Festeavgift
- 4 214 kr
Fasiliteter
Balkong/Terrasse
Barnevennlig
Fellesvaskeri
Garasje/P-plass
Kjæledyr tillatt
Sentralt
Lademulighet
Visning
torsdag, 19. februar
17:00 – 18:00
Ønsker du å delta på visningen ber vi om at du melder deg på slik at vi vet at du kommer. På den måten kan vi bistå alle best mulig, og gi deg tid på visningen. Visningen avholdes bare dersom det er påmeldte 2 timer innen oppsatt visningstidspunkt. Ta gjerne kontakt med megler på telefon 478 48 713 før visningen, hvis du har noen spørsmål. Velkommen!
VisningspåmeldingOm boligen
Velkommen til C. E. Holters vei 8 - presentert av Maximilian Aslaksen i Eiendomsmegler 1.
Dette er en hyggelig 3-roms andelsleilighet i 2 etasje. Leiligheten har en praktisk planløsning og har over de siste årene blitt modernisert. Her er det gang, to soverom, bad, romslig IKEA-kjøkken fra 2024 og stue med utgang til balkong. Det er godt med lagringsplass i boder. Parkeringsplass for en bil, følger leiligheten og borettslaget har tilrettelagt for installasjon av elbillader.
Leiligheten har en sentral beliggenhet med nærhet til både skoler og barnehager samt matbutikker, serveringssteder, Amfi borg og sentrum med dets fasiliteter. Det er også nærhet til bussforbindelser samt enkel av- og påkjøring til E6!
Velkommen til en hyggelig visning!
Dette er en hyggelig 3-roms andelsleilighet i 2 etasje. Leiligheten har en praktisk planløsning og har over de siste årene blitt modernisert. Her er det gang, to soverom, bad, romslig IKEA-kjøkken fra 2024 og stue med utgang til balkong. Det er godt med lagringsplass i boder. Parkeringsplass for en bil, følger leiligheten og borettslaget har tilrettelagt for installasjon av elbillader.
Leiligheten har en sentral beliggenhet med nærhet til både skoler og barnehager samt matbutikker, serveringssteder, Amfi borg og sentrum med dets fasiliteter. Det er også nærhet til bussforbindelser samt enkel av- og påkjøring til E6!
Velkommen til en hyggelig visning!
NB: Knappen for å vise hele beskrivelsen har kun en visuell effekt.
NB: Knappen for å vise hele beskrivelsen har kun en visuell effekt.
Salgsoppgaven beskriver vesentlig og lovpålagt informasjon om eiendommen
Se komplett salgsoppgaveNyttige lenker
Nærområdet
EiendomsMegler 1 Sarpsborg
Annonseinformasjon
| FINN-kode | 434571638 |
|---|---|
| Sist endret | 04. feb. 2026 14:28 |
| Referanse | 5370250402 |
Annonsene kan være mangelfulle i forhold til lovpålagt opplysningsplikt. Før bindende avtale inngås oppfordres interessenter til å innhente komplett informasjon fra meglerforetaket, selger eller utleier.
























