Bildegalleri

NBBO Eiendomsmegling v./ Tomas Urbanik ønsker velkommen til visning i Svelvikveien 61B!Digital styling.
Nøste
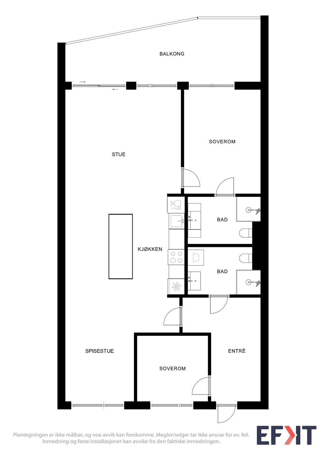
Nøsted brygge Moderne ny 3-roms leilighet med to bad-IN-ordning-Fast garasjeplass-Romslig balkong-Flott fjordutsikt
Prisantydning2 790 000 kr
Nøkkelinfo
- Boligtype
- Leilighet
- Eieform
- Andel
- Soverom
- 2
- Internt bruksareal
- 89 m² (BRA-i)
- Bruksareal
- 94 m²
- Eksternt bruksareal
- 5 m² (BRA-e)
- Balkong/Terrasse
- 14 m² (TBA)
- Etasje
- 6
- Byggeår
- 2025
- Rom
- 3
- Tomteareal
- 8 032 m² (eiet)
Fasiliteter
Balkong/Terrasse
Barnevennlig
Bredbåndstilknytning
Garasje/P-plass
Heis
Kabel-TV
Rolig
Sentralt
Utsikt
Strandlinje
Turterreng
Visning
Alle våre visninger har påmelding. På denne måten sikrer vi at megler har god oversikt og tid til å imøtekomme alle interessenter på beste måte. Skulle ingen være påmeldt til visningen innen kl. 12.00 på visningsdagen vil visningen ikke bli gjennomført. Passer ikke annonsert tidspunkt, ta kontakt så finner vi et tidspunkt som passer.
VisningspåmeldingOm boligen
Velkommen til en sjelden mulighet i det nye og ettertraktede borettslaget Nøsted Brygge. Denne helt nye og ubebodde leiligheten på 89 kvm ligger i 6. etasje og byr på moderne kvaliteter, gjennomtenkt planløsning og en spektakulær utsikt over Drammensfjorden. Leiligheten har en luftig og lys atmosfære med delikate fargevalg og store vindusflater som slipper inn rikelig med dagslys. Den åpne stue- og kjøkkenløsningen er utstyrt med stilrent HTH-kjøkken i moderne utførelse. Leiligheten har to flotte flislagte bad av høy standard. Den solrike balkongen på hele 14 kvm. blir et naturlig samlingspunkt gjennom store deler av sommerhalvåret. Her kan du nyte morgenkaffen eller ettermiddagssolen med fjorden som nærmeste nabo. Velkommen til visning!
NB: Knappen for å vise hele beskrivelsen har kun en visuell effekt.
NB: Knappen for å vise hele beskrivelsen har kun en visuell effekt.
Salgsoppgaven beskriver vesentlig og lovpålagt informasjon om eiendommen
Se komplett salgsoppgaveNyttige lenker
Nærområdet
Nbbo Eiendomsmegling
Annonseinformasjon
| FINN-kode | 434493266 |
|---|---|
| Sist endret | 23. jan. 2026 11:23 |
| Referanse | GAR20.25163 |
Annonsene kan være mangelfulle i forhold til lovpålagt opplysningsplikt. Før bindende avtale inngås oppfordres interessenter til å innhente komplett informasjon fra meglerforetaket, selger eller utleier.


























