Bildegalleri

Velkommen til Mina Beiteplukksvei 153B! Presenteres av lokalmegler Arsalan Syed v/ Eiendomsmegler 1.
Inaktiv
Bjørndal
Stilren 3-roms med god planløsning | Lekkert bad fra 2021 | Vestvendt balkong på 7 m² | Fjernvarme og VV inkl.
Prisantydning4 000 000 kr
Nøkkelinfo
- Boligtype
- Leilighet
- Eieform
- Eier (Selveier)
- Soverom
- 2
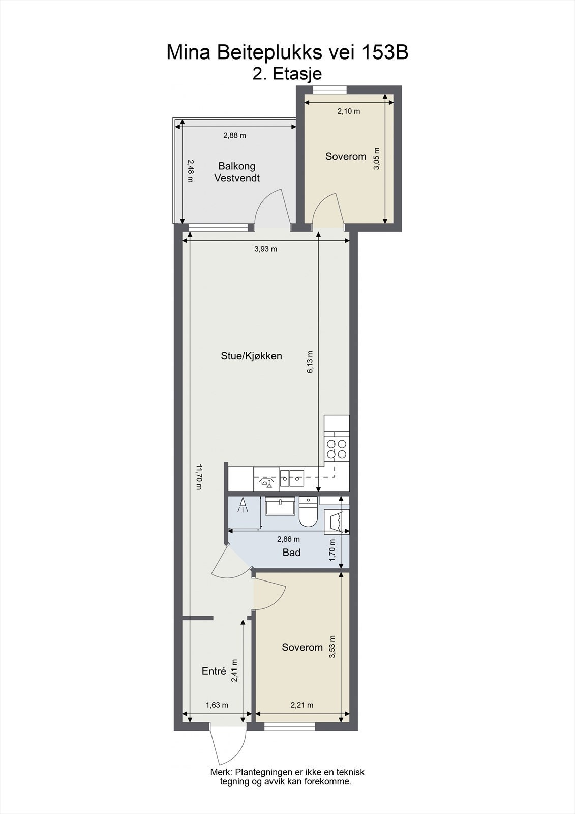
- Internt bruksareal
- 53 m² (BRA-i)
- Bruksareal
- 58 m²
- Eksternt bruksareal
- 5 m² (BRA-e)
- Balkong/Terrasse
- 7 m² (TBA)
- Etasje
- 2
- Byggeår
- 2004
- Rom
- 3
- Tomteareal
- 2 509 m² (eiet)
Fasiliteter
Balkong/Terrasse
Barnevennlig
Bredbåndstilknytning
Golfbane
Kjæledyr tillatt
Ingen gjenboere
Kabel-TV
Offentlig vann/kloakk
Rolig
Sentralt
Utsikt
Vaktmester-/vektertjeneste
Bademulighet
Fiskemulighet
Turterreng
Om boligen
Velkommen til mina beiteplukksvei 153b! Dette er en attraktiv og arealeffektiv 3-roms eierleilighet med en tilbaketrukket og familievennlig beliggenhet på Bjørnåsen. Her bor du i et rolig og etablert nabolag med umiddelbar nærhet til skog og mark, samtidig som du har kort vei til skoler, barnehager og daglige servicetilbud ved Bjørndal senter.
Leiligheten har en god planløsning med en åpen stue- og kjøkkenløsning med integrerte hvitevarer, to soverom og et delikat, flislagt bad renovert i 2021. Fra stuen er det utgang til en vestvendt balkong på 7 m², perfekt for ettermiddagskosen. Oppvarming via fjernvarme og varmekabler på badet gir en behagelig innetemperatur. Lagringsplass er godt ivaretatt med en ekstern bod på 5 m².
Velkommen til visning!
Leiligheten har en god planløsning med en åpen stue- og kjøkkenløsning med integrerte hvitevarer, to soverom og et delikat, flislagt bad renovert i 2021. Fra stuen er det utgang til en vestvendt balkong på 7 m², perfekt for ettermiddagskosen. Oppvarming via fjernvarme og varmekabler på badet gir en behagelig innetemperatur. Lagringsplass er godt ivaretatt med en ekstern bod på 5 m².
Velkommen til visning!
NB: Knappen for å vise hele beskrivelsen har kun en visuell effekt.
NB: Knappen for å vise hele beskrivelsen har kun en visuell effekt.
Salgsoppgaven beskriver vesentlig og lovpålagt informasjon om eiendommen
Se komplett salgsoppgaveNyttige lenker
Nærområdet
Eiendomsmegler 1 Søndre Nordstrand
Vi loser deg trygt gjennom hele boligsalget
Annonseinformasjon
| FINN-kode | 434294436 |
|---|---|
| Sist endret | 23. jan. 2026 14:44 |
| Referanse | 6042260017 |
Annonsene kan være mangelfulle i forhold til lovpålagt opplysningsplikt. Før bindende avtale inngås oppfordres interessenter til å innhente komplett informasjon fra meglerforetaket, selger eller utleier.




































