Bildegalleri

Bildet er kun ment å være av illustrativ karakter og avvik kan forekomme. Illustrasjoner kan vise elementer og tilvalg som ikke er en del av standard leveransen.
Unik 2-roms toppleilighet | Store takvinduer | Felles solrik takterrasse | Heis|
Nøkkelinfo
- Boligtype
- Leilighet
- Eieform
- Andel
- Soverom
- 1
- Internt bruksareal
- 42 m² (BRA-i)
- Bruksareal
- 44 m²
- Eksternt bruksareal
- 2 m² (BRA-e)
- Etasje
- 5
- Rom
- 2
- Tomteareal
- 1 283 m²
Fasiliteter
Visning
Om boligen
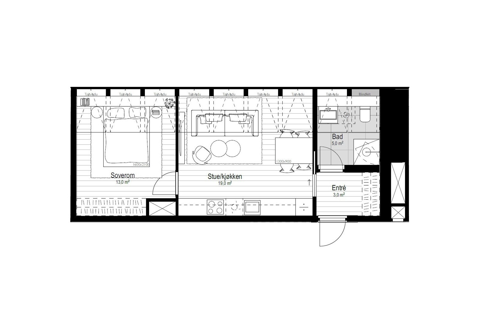
Nå har du mulighten til å sikre deg en unik 2-roms toppleilighet. Leiligheten ligger i femte etasje, med heis direkte opp. Her får du et hjem med unik karakter, blant annet takket være de store og sammenhengende takvinduene som slipper inn masse naturlig lys i alle rom.
I tillegg til å bo på toppen, får du i samme etasje tilgang til en vestvendt og solrik felles takterrasse - et ideelt sted å nyte rolige ettermiddager.
- Store takvinduer som skaper en lys og luftig atmosfære
- Kjøkken fra Drømmekjøkkenet med integrerte hvitevarer
- Delikat flislagt bad
- Romslig soverom med god plass til garderobe
- Direkte adkomst til den herlige felles takterrassen i samme etasje
- Svært god planløsning
Fagerborg Sentral ligger midt mellom Fagerborg og Majorstuen. Åsaveien fremstår som trafikkstille og rolig.
Salgsoppgaven beskriver vesentlig og lovpålagt informasjon om eiendommen
Se komplett salgsoppgaveNyttige lenker
Nærområdet

PrivatMegleren Allé
Annonseinformasjon
| FINN-kode | 434107251 |
|---|---|
| Sist endret | 12. des. 2025 03:03 |
| Referanse | 186250310 |
Annonsene kan være mangelfulle i forhold til lovpålagt opplysningsplikt. Før bindende avtale inngås oppfordres interessenter til å innhente komplett informasjon fra meglerforetaket, selger eller utleier.














