Bildegalleri

PrivatMegleren Tønsberg v/ Herman Homelien har gleden av å presentere Grevinneveien 12E
Solgt
Fint førstegangskjøp; romslig 2-roms med terrasse, sjøgløtt og separat kjøkken. Sentral beliggenhet utenfor sentrum.
Prisantydning1 650 000 kr
Nøkkelinfo
- Boligtype
- Leilighet
- Eieform
- Andel
- Soverom
- 1
- Internt bruksareal
- 50 m² (BRA-i)
- Bruksareal
- 73 m²
- Eksternt bruksareal
- 23 m² (BRA-e)
- Balkong/Terrasse
- 9 m² (TBA)
- Etasje
- 2
- Byggeår
- 1969
- Energimerking
- D - Oransje
- Rom
- 2
- Tomteareal
- 9 074 m² (eiet)
Fasiliteter
Barnevennlig
Balkong/Terrasse
Kabel-TV
Offentlig vann/kloakk
Parkett
Utsikt
Bredbåndstilknytning
Rolig
Om boligen
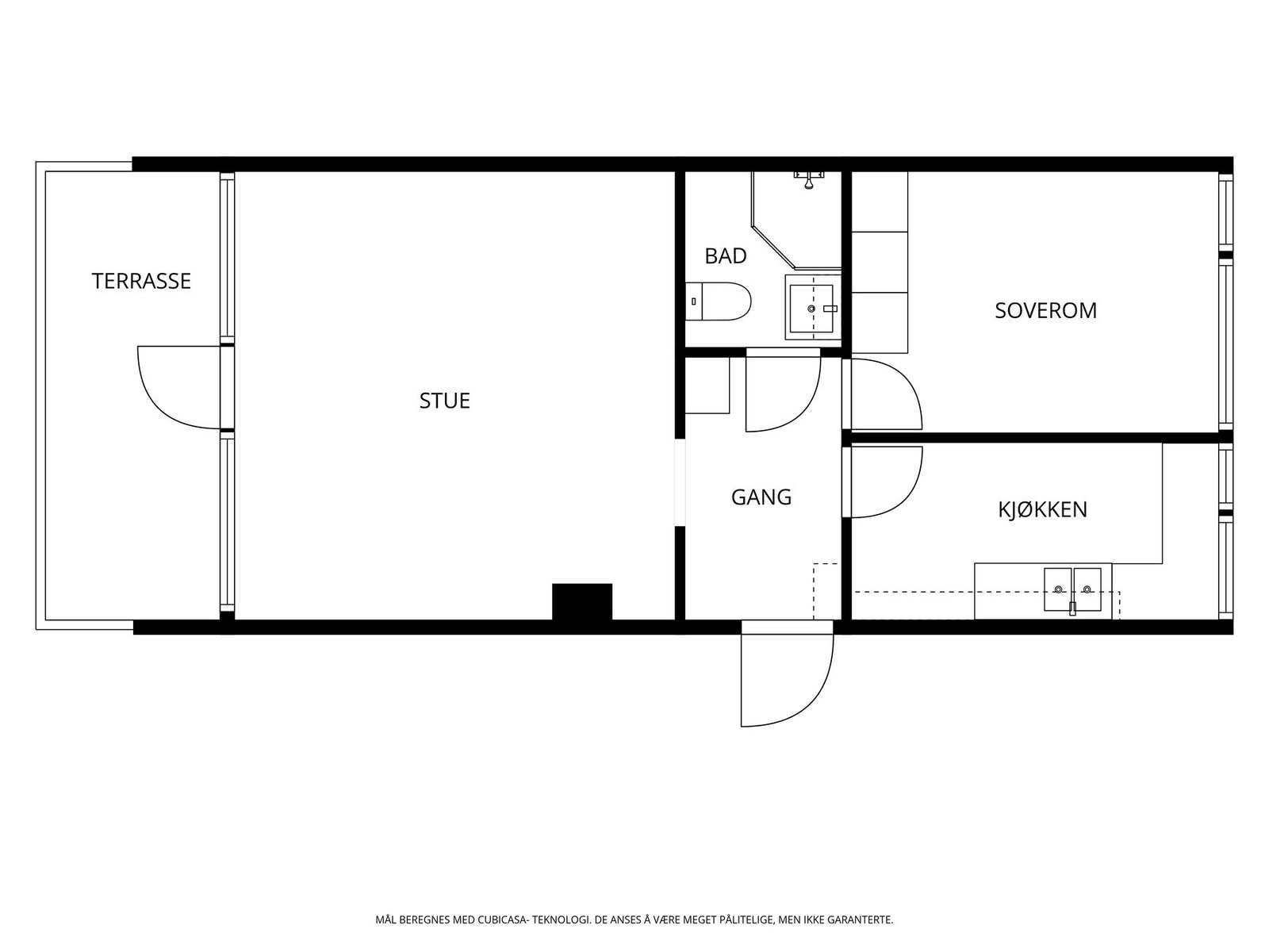
Grevinneveien 12 E er en romslig 2-roms andelsleilighet i 2. etasje; et prisgunstig oppussingsobjekt med stort potensial. Planløsningen er gjennomgående, og leiligheten kan være en fin inngang til boligmarkedet. Her bor man sentralt, samtidig som beliggenheten oppleves skjermet og tilbaketrukket. Du kan rusle ned til sentrum, og området tilbyr fine idrettsanlegg og flotte turmuligheter.
Stuen får mye lys fra store vinduer, og forlenges fint av en terrasse med sjøgløtt og levegger. Leiligheten har et separat kjøkken og et eldre bad med dusjkabinett. Soverommet er innredet med et plassbygd garderobeskap. I kjelleren disponerer leiligheten en vaskekjeller og to lagringsrom for praktisk oppbevaring. Velkommen til en hyggelig visning!
Stuen får mye lys fra store vinduer, og forlenges fint av en terrasse med sjøgløtt og levegger. Leiligheten har et separat kjøkken og et eldre bad med dusjkabinett. Soverommet er innredet med et plassbygd garderobeskap. I kjelleren disponerer leiligheten en vaskekjeller og to lagringsrom for praktisk oppbevaring. Velkommen til en hyggelig visning!
NB: Knappen for å vise hele beskrivelsen har kun en visuell effekt.
NB: Knappen for å vise hele beskrivelsen har kun en visuell effekt.
Salgsoppgaven beskriver vesentlig og lovpålagt informasjon om eiendommen
Se komplett salgsoppgaveNyttige lenker
Nærområdet

PrivatMegleren Tønsberg
Kun det beste på dine vegne
Annonseinformasjon
| FINN-kode | 433816769 |
|---|---|
| Sist endret | 06. nov. 2025 12:24 |
| Referanse | 13250187 |
Annonsene kan være mangelfulle i forhold til lovpålagt opplysningsplikt. Før bindende avtale inngås oppfordres interessenter til å innhente komplett informasjon fra meglerforetaket, selger eller utleier.


























