Bildegalleri

DNB Eiendom v/ Ardiana Gashi (900 48 355) ønsker velkommen til Snørn 5!
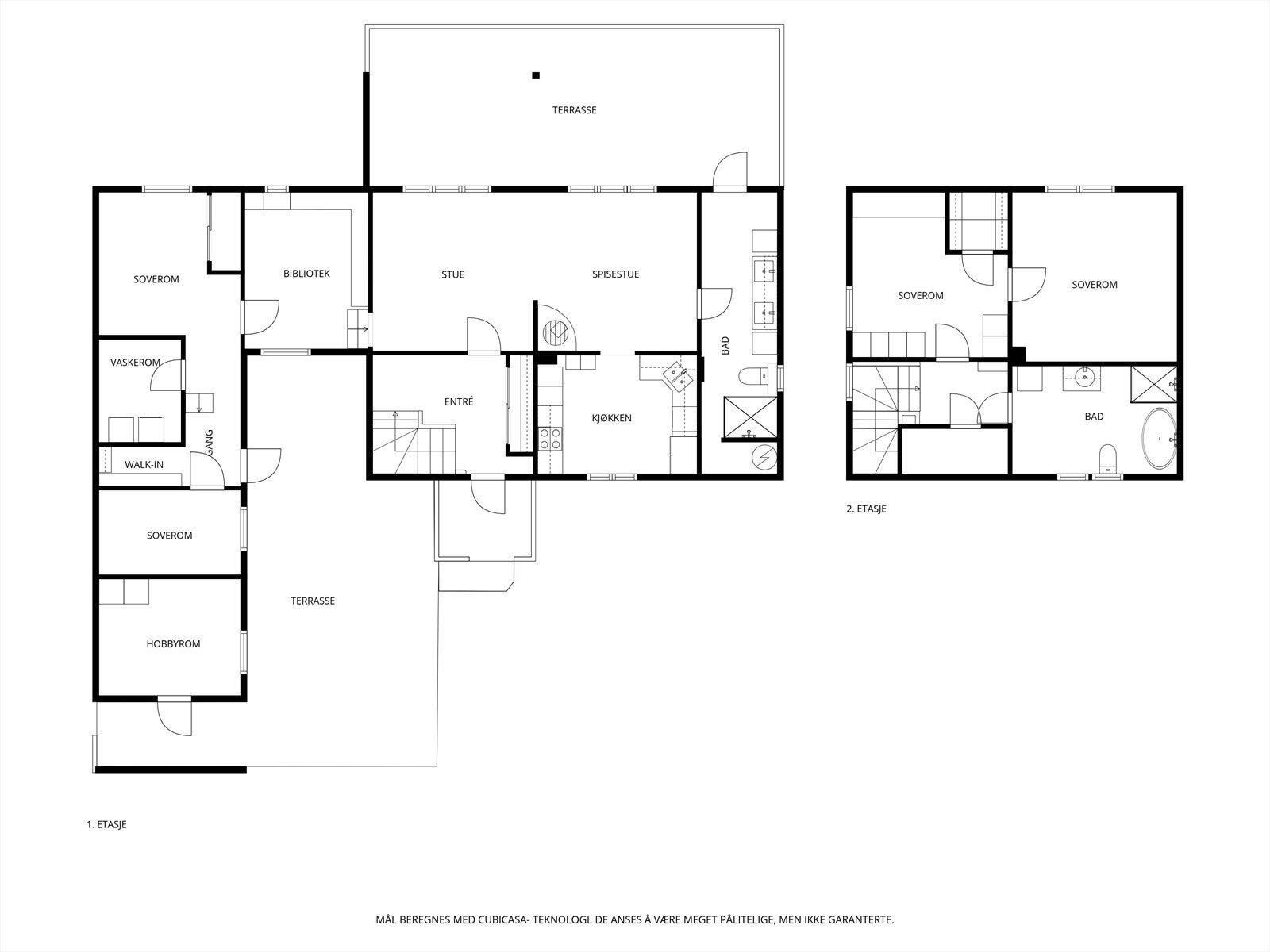
Sveitservilla med sjel-4 soverom-2 bad-stor, solrik hage-privat bakgård-steinlagt gårdsplass-elbillader
Prisantydning5 300 000 kr
Nøkkelinfo
- Boligtype
- Enebolig
- Eieform
- Eier (Selveier)
- Soverom
- 4
- Internt bruksareal
- 146 m² (BRA-i)
- Bruksareal
- 170 m²
- Eksternt bruksareal
- 24 m² (BRA-e)
- Balkong/Terrasse
- 38 m² (TBA)
- Byggeår
- 1923
- Energimerking
- G - Gul
- Rom
- 5
- Tomteareal
- 722 m² (festet)
- Festeavgift
- 1 221 kr
Fasiliteter
Aircondition
Balkong/Terrasse
Barnevennlig
Bredbåndstilknytning
Garasje/P-plass
Hage
Kjæledyr tillatt
Ingen gjenboere
Kabel-TV
Offentlig vann/kloakk
Parkett
Peis/Ildsted
Rolig
Sentralt
Turterreng
Lademulighet
Visning
Vil du se boligen i ditt eget tempo?
Jeg tilbyr gjerne privatvisning tilpasset deg og din timeplan. Meld deg på via "visningspåmelding" i annonsen, eller ta direkte kontakt med meg, så finner vi et tidspunkt som passer.
VisningspåmeldingOm boligen
Velkommen til Snørn 5, presentert av Ardiana Gashi v/DNB Eiendom!
En sjarmerende og gjennomført sveitservilla med unik atmosfære og attraktiv beliggenhet. Her bor du i et rolig og trivelig område med kort vei til skole, barnehage, butikker og flotte turområder.
Boligen kombinerer moderne komfort med klassiske detaljer. Planløsningen passer for både par og familier, med fire soverom og to bad-hvorav ett fra 2019.
Stor, solrik tomt med skjermet bakgård som innbyr til avslapping og hyggelige stunder. Pent steinbelagt gårdsplass med elbillader og plass til flere biler.
Snørn 5 byr på særpreg, ro og trivsel-et sted å glede seg til å komme hjem til.
Vi ønsker velkommen til visning og minner om påmelding!
En sjarmerende og gjennomført sveitservilla med unik atmosfære og attraktiv beliggenhet. Her bor du i et rolig og trivelig område med kort vei til skole, barnehage, butikker og flotte turområder.
Boligen kombinerer moderne komfort med klassiske detaljer. Planløsningen passer for både par og familier, med fire soverom og to bad-hvorav ett fra 2019.
Stor, solrik tomt med skjermet bakgård som innbyr til avslapping og hyggelige stunder. Pent steinbelagt gårdsplass med elbillader og plass til flere biler.
Snørn 5 byr på særpreg, ro og trivsel-et sted å glede seg til å komme hjem til.
Vi ønsker velkommen til visning og minner om påmelding!
NB: Knappen for å vise hele beskrivelsen har kun en visuell effekt.
NB: Knappen for å vise hele beskrivelsen har kun en visuell effekt.
Salgsoppgaven beskriver vesentlig og lovpålagt informasjon om eiendommen
Se komplett salgsoppgaveNyttige lenker
Nærområdet
DNB Eiendom AS
Fra hjem til hjem
Annonseinformasjon
| FINN-kode | 433731110 |
|---|---|
| Sist endret | 16. nov. 2025 11:34 |
| Referanse | 217250331 |
Annonsene kan være mangelfulle i forhold til lovpålagt opplysningsplikt. Før bindende avtale inngås oppfordres interessenter til å innhente komplett informasjon fra meglerforetaket, selger eller utleier.
















































