Bildegalleri

Velkommen til Frøyas veg 6C!
Lekker andelsleilighet 2.etasje med 2 soverom - Vestvendt innglasset balkong og nydelig utsikt - Garasje!
Prisantydning2 190 000 kr
Nøkkelinfo
- Boligtype
- Leilighet
- Eieform
- Andel
- Soverom
- 2
- Internt bruksareal
- 70 m² (BRA-i)
- Bruksareal
- 107 m²
- Eksternt bruksareal
- 22 m² (BRA-e)
- Innglasset balkong
- 15 m² (BRA-b)
- Etasje
- 2
- Byggeår
- 1962
- Rom
- 3
- Tomteareal
- 17 347 m² (eiet)
Fasiliteter
Aircondition
Balkong/Terrasse
Barnevennlig
Bredbåndstilknytning
Garasje/P-plass
Hage
Ingen gjenboere
Offentlig vann/kloakk
Rolig
Sentralt
Utsikt
Turterreng
Lademulighet
Visning
Velkommen til visning! Husk å melde deg på visningen ved å trykke på knappen visningspåmelding under, eller ta kontakt med megler for å gjøre en avtale. Visninger uten påmeldte blir avlyst.
VisningspåmeldingOm boligen
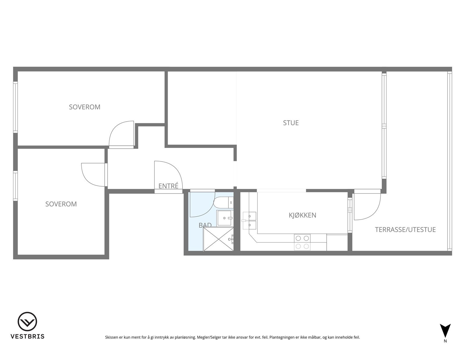
Velkommen til Frøyas veg 6c - En trivelig og innholdsrik leilighet i 2. etasje!
Leiligheten har en svært god planløsning og inneholder et lyst og pent kjøkken, i åpen løsning til stue. Fra stue er det adkomst til stor innglasset balkong man kan nyte hele året. Helt ny varmepumpe i stue. Delikat bad som er godt utnyttet og to soverom av god størrelse. To boder i kjelleren med god plass til oppbevaring. Parkeringsplass i garasje med ny elektrisk port og mulighet for lading av elbil i borettslaget.
Borettslaget har gjennomgått omfattende oppgarderinger på fasade, samt nedgravd avfallsanlegg! Sentral beliggenhet i søre bydel med gang avstand til sentrum med alle fasiliteter, samt kort avstand til Raglamyr og Norheim.
Velkommen på visning!
Leiligheten har en svært god planløsning og inneholder et lyst og pent kjøkken, i åpen løsning til stue. Fra stue er det adkomst til stor innglasset balkong man kan nyte hele året. Helt ny varmepumpe i stue. Delikat bad som er godt utnyttet og to soverom av god størrelse. To boder i kjelleren med god plass til oppbevaring. Parkeringsplass i garasje med ny elektrisk port og mulighet for lading av elbil i borettslaget.
Borettslaget har gjennomgått omfattende oppgarderinger på fasade, samt nedgravd avfallsanlegg! Sentral beliggenhet i søre bydel med gang avstand til sentrum med alle fasiliteter, samt kort avstand til Raglamyr og Norheim.
Velkommen på visning!
NB: Knappen for å vise hele beskrivelsen har kun en visuell effekt.
NB: Knappen for å vise hele beskrivelsen har kun en visuell effekt.
Salgsoppgaven beskriver vesentlig og lovpålagt informasjon om eiendommen
Se komplett salgsoppgaveNyttige lenker
Nærområdet
Eiendomsmegler Norge Haugesund
Det viktigste stedet i Norge er der du bor
Annonseinformasjon
| FINN-kode | 433692888 |
|---|---|
| Sist endret | 26. nov. 2025 08:54 |
| Referanse | 19250275 |
Annonsene kan være mangelfulle i forhold til lovpålagt opplysningsplikt. Før bindende avtale inngås oppfordres interessenter til å innhente komplett informasjon fra meglerforetaket, selger eller utleier.






























