Bildegalleri

Velkommen til Dalsveien 9 B! Foto: Arne Nicolai Schram
Bekkestua
Arealeffektiv tomannsbolig over 3-plan - Solrik terrasse og hage - Garasje - Barnevennlig
Prisantydning9 500 000 kr
Nøkkelinfo
- Boligtype
- Tomannsbolig
- Eieform
- Eier (Selveier)
- Soverom
- 3
- Internt bruksareal
- 123 m² (BRA-i)
- Bruksareal
- 137 m²
- Eksternt bruksareal
- 14 m² (BRA-e)
- Balkong/Terrasse
- 64 m² (TBA)
- Etasje
- 3
- Byggeår
- 1951
- Energimerking
- G - Oransje
- Tomteareal
- 299 m² (eiet)
Fasiliteter
Balkong/Terrasse
Barnevennlig
Garasje/P-plass
Hage
Kjæledyr tillatt
Ingen gjenboere
Offentlig vann/kloakk
Peis/Ildsted
Rolig
Turterreng
Lademulighet
Visning
Eller visning etter avtale med megler Eystein Garathun Næss i Nordvik Eiendom mob: 95169623.
VisningspåmeldingOm boligen
Velkommen til en attraktiv og innbydende tomannsbolig med barnevennlig beliggenhet i veletablert boligområde på Bekkestua. Her bor du i rolige omgivelser med kort vei til skoler, barnehager, butikker og kollektivtransport, samtidig som natur og rekreasjonsområder er lett tilgjengelig.
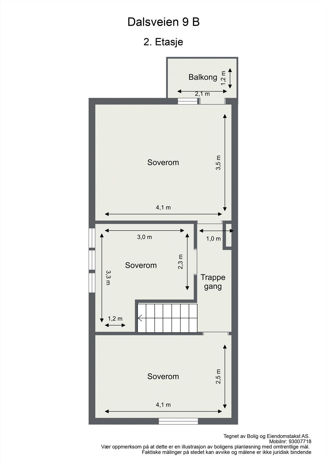
Boligen har en praktisk og familievennlig planløsning over tre plan med romslig stue med peisovn, tidløst kjøkken, tre soverom, bad, solrik terrasse på 58 kvm, balkong og egen hage. Garasje på 14 kvm følger med. Her får du et hjem som kombinerer funksjon, trivsel og flotte uteområder perfekt for barnefamilier.
- Praktisk og familievennlig planløsning
- Solrik terrasse og balkong
- Egen hage og garasje
- Barnevennlig, rolig og etablert område
- Kort vei til skole, barnehage, butikk og kollektiv
Boligen har en praktisk og familievennlig planløsning over tre plan med romslig stue med peisovn, tidløst kjøkken, tre soverom, bad, solrik terrasse på 58 kvm, balkong og egen hage. Garasje på 14 kvm følger med. Her får du et hjem som kombinerer funksjon, trivsel og flotte uteområder perfekt for barnefamilier.
- Praktisk og familievennlig planløsning
- Solrik terrasse og balkong
- Egen hage og garasje
- Barnevennlig, rolig og etablert område
- Kort vei til skole, barnehage, butikk og kollektiv
NB: Knappen for å vise hele beskrivelsen har kun en visuell effekt.
NB: Knappen for å vise hele beskrivelsen har kun en visuell effekt.
Salgsoppgaven beskriver vesentlig og lovpålagt informasjon om eiendommen
Se komplett salgsoppgaveNyttige lenker
Nærområdet
Nordvik Bærum
Annonseinformasjon
| FINN-kode | 433561567 |
|---|---|
| Sist endret | 02. des. 2025 18:30 |
| Referanse | 56-0366/25 |
Annonsene kan være mangelfulle i forhold til lovpålagt opplysningsplikt. Før bindende avtale inngås oppfordres interessenter til å innhente komplett informasjon fra meglerforetaket, selger eller utleier.












































