Bildegalleri

BUD MOTTATT - Kombinasjonsbygg med sentral beliggenhet i Volda sentrum, næringslokaler og romslig leilighet over to plan
Prisantydning2 190 000 kr
Nøkkelinfo
- Boligtype
- Andre
- Eieform
- Eier (Selveier)
- Soverom
- 5
- Internt bruksareal
- 230 m² (BRA-i)
- Bruksareal
- 398 m²
- Eksternt bruksareal
- 168 m² (BRA-e)
- Balkong/Terrasse
- 48 m² (TBA)
- Etasje
- 3
- Byggeår
- 1922
- Rom
- 7
- Tomteareal
- 857 m² (eiet)
Fasiliteter
Hage
Offentlig vann/kloakk
Sentralt
Om boligen
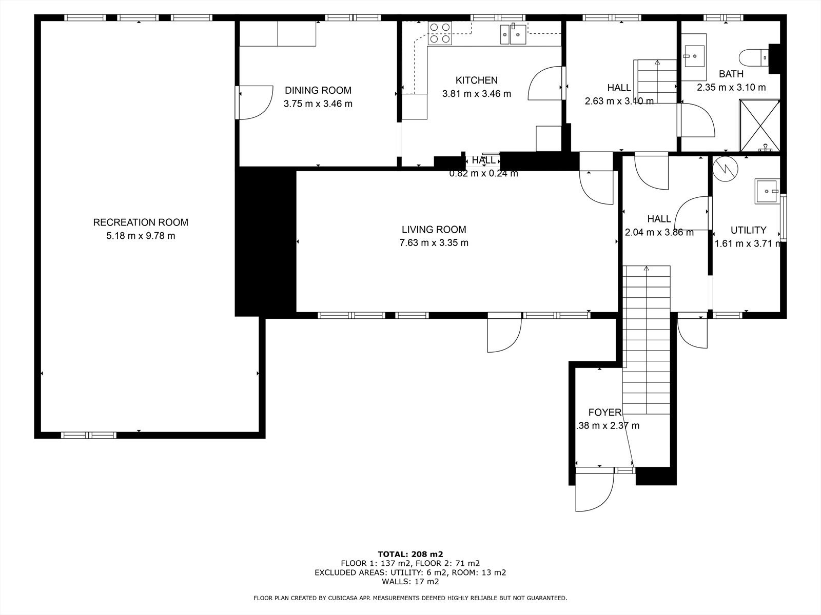
Velkommen til Storgata 2A i hjertet av Volda sentrum!
Her finner du et kombinasjonsbygg med tre næringslokaler på gateplan og en stor leilighet over to etasjer. Eiendommen har god eksponering mot hovedgata og kort avstand til butikker, servicetilbud og kollektivtransport. To av næringslokalene er utleid, mens det tredje står klart for videre utvikling.
Leiligheten strekker seg over to etasjer og inneholder blant annet romslig stue, kjøkken, bad og flere soverom, med potensial for oppgradering og fleksibel bruk. Tomten har egen bakgård med enkel adkomst og et lagerskur.
En eiendom med mange muligheter, både for utleie og egen virksomhet.
Velkommen til visning!
Her finner du et kombinasjonsbygg med tre næringslokaler på gateplan og en stor leilighet over to etasjer. Eiendommen har god eksponering mot hovedgata og kort avstand til butikker, servicetilbud og kollektivtransport. To av næringslokalene er utleid, mens det tredje står klart for videre utvikling.
Leiligheten strekker seg over to etasjer og inneholder blant annet romslig stue, kjøkken, bad og flere soverom, med potensial for oppgradering og fleksibel bruk. Tomten har egen bakgård med enkel adkomst og et lagerskur.
En eiendom med mange muligheter, både for utleie og egen virksomhet.
Velkommen til visning!
NB: Knappen for å vise hele beskrivelsen har kun en visuell effekt.
NB: Knappen for å vise hele beskrivelsen har kun en visuell effekt.
Salgsoppgaven beskriver vesentlig og lovpålagt informasjon om eiendommen
Se komplett salgsoppgaveNyttige lenker
Nærområdet
Legal Eigedomsmekling AS
Eigedomsmekling - Slik det bør være
Annonseinformasjon
| FINN-kode | 433549663 |
|---|---|
| Sist endret | 19. nov. 2025 13:23 |
| Referanse | GAR47.2540 |
Annonsene kan være mangelfulle i forhold til lovpålagt opplysningsplikt. Før bindende avtale inngås oppfordres interessenter til å innhente komplett informasjon fra meglerforetaket, selger eller utleier.



























