Bildegalleri

Krogsveen Sunnmøre v/ Eiendomsmegler Nina Ormseth Pettersen har gleden av å presentere Skarpetegvegen 1.
Blindheim
Velholdt 4-roms leilighet i attraktivt område | Garasje og heis i bygget| Balkong med gode sol- og utsiktsforhold
Prisantydning4 890 000 kr
Nøkkelinfo
- Boligtype
- Leilighet
- Eieform
- Eier (Selveier)
- Soverom
- 3
- Internt bruksareal
- 109 m² (BRA-i)
- Bruksareal
- 116 m²
- Eksternt bruksareal
- 7 m² (BRA-e)
- Balkong/Terrasse
- 13 m² (TBA)
- Etasje
- 2
- Byggeår
- 2002
- Energimerking
- D - Rød
- Rom
- 4
- Tomteareal
- 4 031 m² (eiet)
Fasiliteter
Balkong/Terrasse
Garasje/P-plass
Heis
Kjæledyr tillatt
Rolig
Utsikt
Vaktmester-/vektertjeneste
Turterreng
Lademulighet
Visning
tirsdag, 06. januar
17:00 – 18:00
For å delta på visning, ber vi om at du melder deg på. Da sikrer vi at du får nødvendig informasjon og at det er satt av tilstrekkelig med tid. Kontakt megler dersom annet tidspunkt ønskes. Husk å lese salgsoppgaven før visningen, så du stiller forberedt. NB. Visning utgår dersom det ikke er noen påmeldte.
Ønsker du kun å bli holdt orientert, kan du fra eiendommens hjemmeside få varsel om solgtpris, eller kontakte megler.
VisningspåmeldingOm boligen
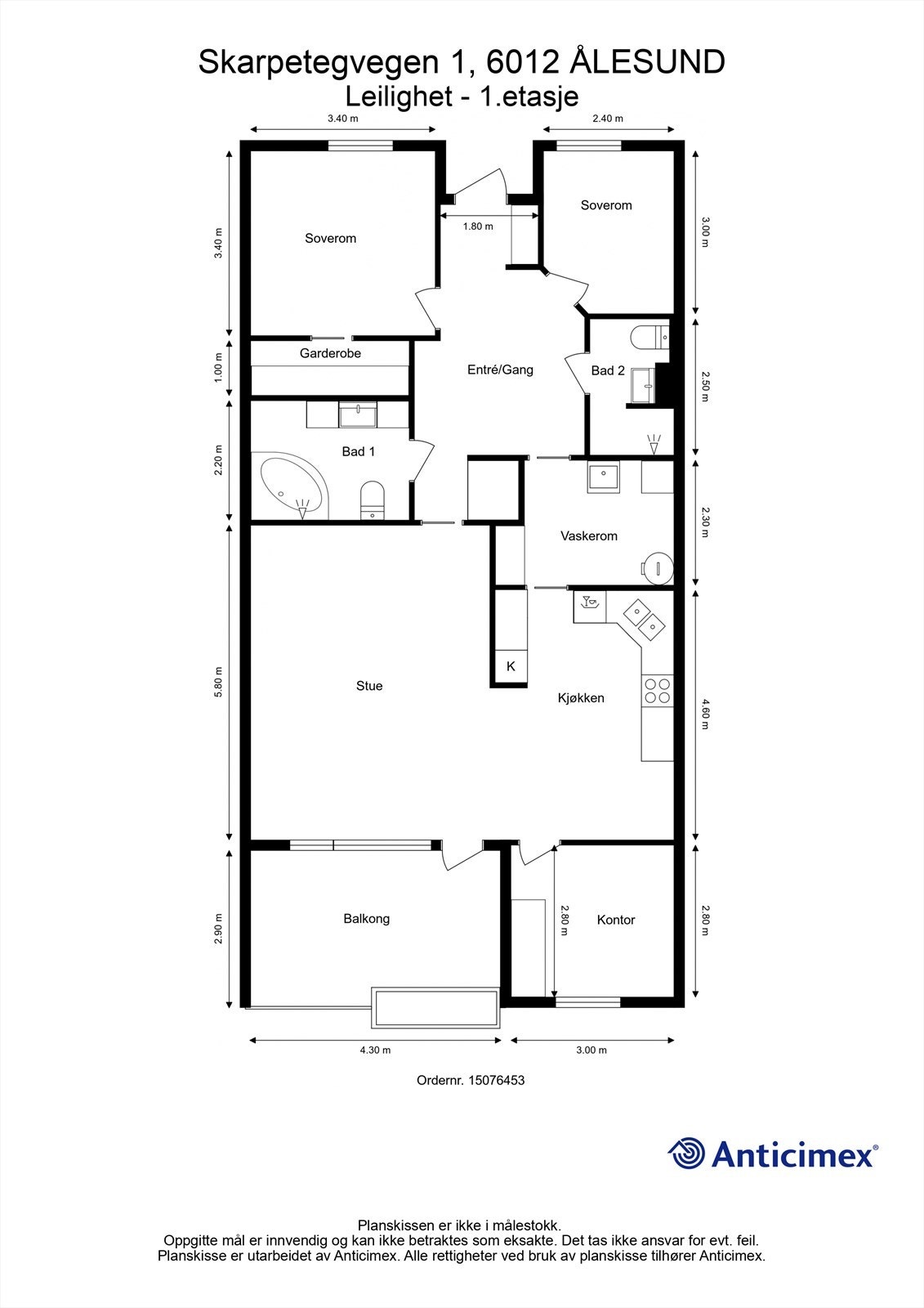
Velkommen til Skarpetegvegen 1 - en romslig og velholdt 4-roms eierleilighet beliggende i en høy førsteetasje i et populært og sentralt område.
Leiligheten har en gjennomtenkt planløsning med entré med skyvedørsgarderobe, to flislagte bad, vaskerom, åpen stue/kjøkkenløsning med naturlig soneinndeling og tre soverom. Fra stuen er det utgang til en solrik balkong på 13 kvm med fin utsikt. Garasjeplass med elbillader og bod følger med.
Her bor du i gangavstand til Blindheim Butikksenter med dagligvarebutikk, apotek, legekontor og tannlege. I nærområdet finner du også Rema 1000, spisesteder, treningssenter, barnehager og både barne- og ungdomsskole. Moa ligger kun ca. 7 minutter unna med bil. Fine turmuligheter rett utenfor døren med sti til Emblemsfjellet.
Velkommen til visning!
Leiligheten har en gjennomtenkt planløsning med entré med skyvedørsgarderobe, to flislagte bad, vaskerom, åpen stue/kjøkkenløsning med naturlig soneinndeling og tre soverom. Fra stuen er det utgang til en solrik balkong på 13 kvm med fin utsikt. Garasjeplass med elbillader og bod følger med.
Her bor du i gangavstand til Blindheim Butikksenter med dagligvarebutikk, apotek, legekontor og tannlege. I nærområdet finner du også Rema 1000, spisesteder, treningssenter, barnehager og både barne- og ungdomsskole. Moa ligger kun ca. 7 minutter unna med bil. Fine turmuligheter rett utenfor døren med sti til Emblemsfjellet.
Velkommen til visning!
NB: Knappen for å vise hele beskrivelsen har kun en visuell effekt.
NB: Knappen for å vise hele beskrivelsen har kun en visuell effekt.
Salgsoppgaven beskriver vesentlig og lovpålagt informasjon om eiendommen
Se komplett salgsoppgaveNyttige lenker
Nærområdet
Krogsveen Ålesund
Velkommen til en enklere boligreise.
Annonseinformasjon
| FINN-kode | 433546971 |
|---|---|
| Sist endret | 26. des. 2025 15:32 |
| Referanse | KR76.25271 |
Annonsene kan være mangelfulle i forhold til lovpålagt opplysningsplikt. Før bindende avtale inngås oppfordres interessenter til å innhente komplett informasjon fra meglerforetaket, selger eller utleier.




























