Bildegalleri

Velkommen til Ragnhilds vei 1F. En lys og innbydende 4-roms leilighet med sentral beliggenhet.
Lørenskog sentrum
Lys og moderne 4-roms i Lørenskog sentrum | 2 Garasjeplasser! Nærhet til "alt" | Gangavstand til buss | SV-vendt balkong
Prisantydning5 980 000 kr
Nøkkelinfo
- Boligtype
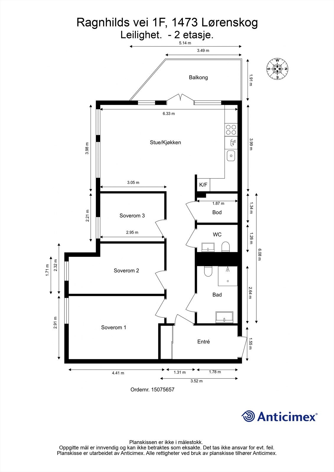
- Leilighet
- Eieform
- Andel
- Soverom
- 3
- Internt bruksareal
- 77 m² (BRA-i)
- Bruksareal
- 82 m²
- Eksternt bruksareal
- 5 m² (BRA-e)
- Balkong/Terrasse
- 8 m² (TBA)
- Etasje
- 2
- Byggeår
- 2021
- Energimerking
- B - Mørkegrønn
- Rom
- 4
- Tomteareal
- 2 374 m² (eiet)
Fasiliteter
Takterrasse
Balkong/Terrasse
Garasje/P-plass
Golfbane
Heis
Kjæledyr tillatt
Kabel-TV
Parkett
Sentralt
Lademulighet
Visning
Ta kontakt med megler for avtale om privatvisning.
Ønsker du kun å bli holdt orientert, kan du fra eiendommens hjemmeside få varsel om solgtpris, eller kontakte megler.
VisningspåmeldingOm boligen
Leiligheten ligger svært sentralt til midt i Lørenskog. Fra leiligheten er det gangavstand til Metro senter, med et bredt utvalg av butikker og dagligvarehandel. I tillegg er det kort vei til andre sentre og de fritidstilbud som Lørenskog har å by på. Busstoppet Lørenskog Sentrum ligger like i nærheten, med hyppige avganger til og fra både Oslo og Lillestrøm.
Leiligheten oppleves som lys, med smart planløsning. Du får et godt førsteinntrykk allerede i gangen, med parkett med gulvvarme som følger deg gjennom hele leiligheten. Fra stuen har du utgang til en delvi overbygget balkong på ca. 8kvm. Leiligheten disponerer en bod, og to p-plasser i garasjekjeller.
Verdt å merke seg:
- Ingen TG3
- Bussforbindelse
- Varmekabler i alle rom
- Energieffektiv
- Sigdal kjøkken
- Tilvalg bad
Velkommen
Leiligheten oppleves som lys, med smart planløsning. Du får et godt førsteinntrykk allerede i gangen, med parkett med gulvvarme som følger deg gjennom hele leiligheten. Fra stuen har du utgang til en delvi overbygget balkong på ca. 8kvm. Leiligheten disponerer en bod, og to p-plasser i garasjekjeller.
Verdt å merke seg:
- Ingen TG3
- Bussforbindelse
- Varmekabler i alle rom
- Energieffektiv
- Sigdal kjøkken
- Tilvalg bad
Velkommen
NB: Knappen for å vise hele beskrivelsen har kun en visuell effekt.
NB: Knappen for å vise hele beskrivelsen har kun en visuell effekt.
Salgsoppgaven beskriver vesentlig og lovpålagt informasjon om eiendommen
Se komplett salgsoppgaveNyttige lenker
Nærområdet
Krogsveen Lørenskog
Verdien av en god megler.
Annonseinformasjon
| FINN-kode | 433540101 |
|---|---|
| Sist endret | 26. jan. 2026 07:33 |
| Referanse | KR61.2528 |
Annonsene kan være mangelfulle i forhold til lovpålagt opplysningsplikt. Før bindende avtale inngås oppfordres interessenter til å innhente komplett informasjon fra meglerforetaket, selger eller utleier.































