Bildegalleri

Velkommen til Elvevegen 5!
Sentrum
Sentrumsnær enebolig med flott beliggenhet i Åmillom og gangavstand til sentrum. Vannbåren varme og stor garasje!
Prisantydning1 700 000 kr
Nøkkelinfo
- Boligtype
- Enebolig
- Eieform
- Eier (Selveier)
- Soverom
- 3
- Internt bruksareal
- 187 m² (BRA-i)
- Bruksareal
- 263 m²
- Eksternt bruksareal
- 76 m² (BRA-e)
- Balkong/Terrasse
- 29 m² (TBA)
- Etasje
- 3
- Byggeår
- 1956
- Energimerking
- G - Gul
- Rom
- 5
- Tomteareal
- 1 062 m² (eiet)
Fasiliteter
Balkong/Terrasse
Garasje/P-plass
Hage
Offentlig vann/kloakk
Peis/Ildsted
Rolig
Sentralt
Utsikt
Turterreng
Visning
Vi ber om at interessenter melder seg på våre visninger på forhånd. Det vil ikke bli avholdt visning uten påmelding. Vi anbefaler at du laster ned og leser igjennom salgsoppgaven før visning, og ring oss gjerne på forhånd for spørsmål om boligen. Velkommen.
VisningspåmeldingOm boligen
EiendomsMegler1 Lillehammer og Gudbrandsdal presenterer Elvevegen 5 - Enebolig med barnevennlig beliggenhet i enden av blindveg!
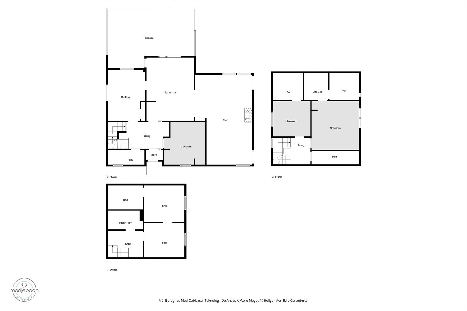
Eneboligen går over tre plan og inneholder:
1. etasje finnes blant annet romslig stue, spisestue og kjøkken. Ett soverom og bad ligger også på hovedplan.
2.etasje er det to soverom, toalettrom, bodrom og kott.
I kjeller er det boder, vaskerom og teknisk rom.
I tillegg er det en romslig garasje fra 2005, som er klargjort for vann/avløp og med masse potensiale!
Eiendommen ligger fint og sentralt til i rolige omgivelser i Åmillom, ca 900 m fra Ringebu sentrum. Her bor du tilbaketrukket, men samtidig med gangavstand til både barnehage, barne- og ungdomsskole og butikker. Ca 15 min. kjøretur til Kvitfjell alpinanlegg.
Velkommen til visning!
Eneboligen går over tre plan og inneholder:
1. etasje finnes blant annet romslig stue, spisestue og kjøkken. Ett soverom og bad ligger også på hovedplan.
2.etasje er det to soverom, toalettrom, bodrom og kott.
I kjeller er det boder, vaskerom og teknisk rom.
I tillegg er det en romslig garasje fra 2005, som er klargjort for vann/avløp og med masse potensiale!
Eiendommen ligger fint og sentralt til i rolige omgivelser i Åmillom, ca 900 m fra Ringebu sentrum. Her bor du tilbaketrukket, men samtidig med gangavstand til både barnehage, barne- og ungdomsskole og butikker. Ca 15 min. kjøretur til Kvitfjell alpinanlegg.
Velkommen til visning!
NB: Knappen for å vise hele beskrivelsen har kun en visuell effekt.
NB: Knappen for å vise hele beskrivelsen har kun en visuell effekt.
Salgsoppgaven beskriver vesentlig og lovpålagt informasjon om eiendommen
Se komplett salgsoppgaveNyttige lenker
Nærområdet
EiendomsMegler 1 Lillehammer og Gudbrandsdal - avd Ringebu
Vi er der du er - EiendomsMegler 1
Annonseinformasjon
| FINN-kode | 433520721 |
|---|---|
| Sist endret | 20. jan. 2026 08:37 |
| Referanse | 1313250056 |
Annonsene kan være mangelfulle i forhold til lovpålagt opplysningsplikt. Før bindende avtale inngås oppfordres interessenter til å innhente komplett informasjon fra meglerforetaket, selger eller utleier.


















































