Bildegalleri

Velkommen til Høyfjellveien 1 presentert av Ardiana Gashi v/Dnb Eiendom
Høyfjell-Svært innholdsrik eiendom med god standard like ved Fredrikstadmarka. Solrik tomt på nesten 3 mål!
Prisantydning9 900 000 kr
Nøkkelinfo
- Boligtype
- Enebolig
- Eieform
- Eier (Selveier)
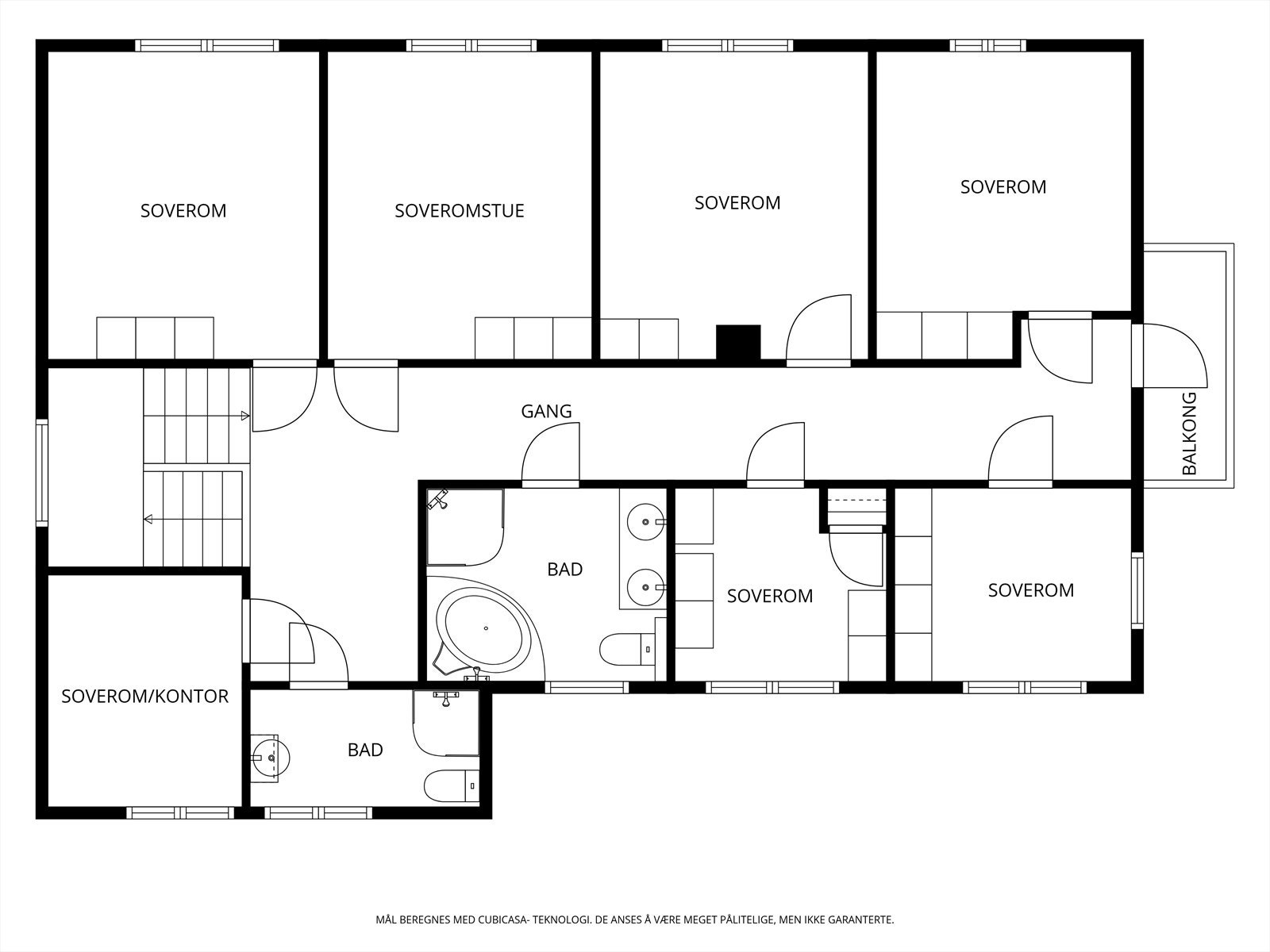
- Soverom
- 8
- Internt bruksareal
- 337 m² (BRA-i)
- Bruksareal
- 407 m²
- Eksternt bruksareal
- 70 m² (BRA-e)
- Balkong/Terrasse
- 44 m² (TBA)
- Byggeår
- 1947
- Energimerking
- G - Mørkegrønn
- Rom
- 12
- Tomteareal
- 2 724 m² (eiet)
Fasiliteter
Balkong/Terrasse
Barnevennlig
Bredbåndstilknytning
Garasje/P-plass
Hage
Kjæledyr tillatt
Ingen gjenboere
Kabel-TV
Offentlig vann/kloakk
Parkett
Peis/Ildsted
Rolig
Sentralt
Utvidelsesmuligheter
Turterreng
Visning
Velkommen til visning! Det er obligatorisk påmelding til alle våre visninger. Du melder deg enkelt på ved å klikke på visningspåmelding i boligannonsen. Dersom oppsatt tidspunkt ikke passer, anbefales det likevel å melde seg på megler vil da ta kontakt for å avtale privatvisning. Ta gjerne direkte kontakt med megler i forkant av visningen dersom du har spørsmål.
VisningspåmeldingOm boligen
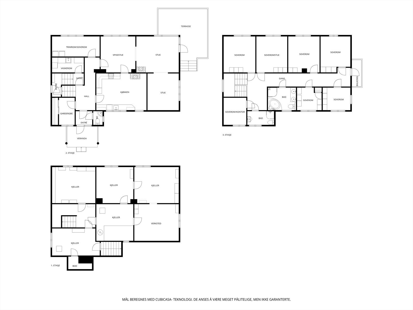
Velkommen til Høyfjellveien 1, presentert av Ardiana Gashi v/Dnb Eiendom!
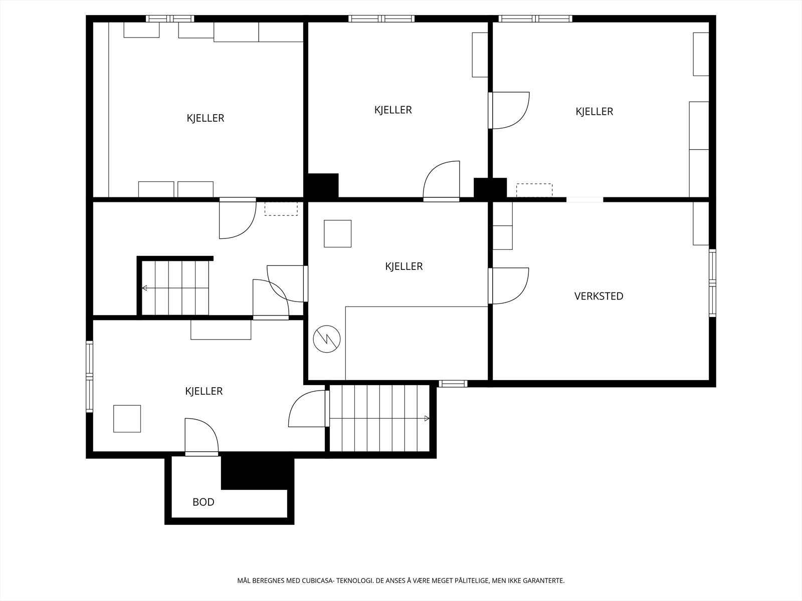
Dette er en helt spesiell eiendom på Høyfjell, med skjermet og attraktiv beliggenhet rett utenfor Fredrikstad sentrum. Eiendommen grenser til fredet friareal i Fredrikstadmarka, med lysløype kun 100 meter unna og flotte turmuligheter året rundt. Boligen er romslig og funksjonell med 8 soverom, 2 bad, store oppholdsrom, romslig kjøkken med peis, vaskerom og full kjeller med egen inngang. Jevnlig oppgradert med bl.a. nytt elektrisk anlegg, kledning, vinduer, bad og biofyringsanlegg. Stor garasje, solrike uteplasser og tomt på nærmere 3 mål gir både plass og privatliv.
Vi ønsker velkommen til visning og minner om påmelding!
Dette er en helt spesiell eiendom på Høyfjell, med skjermet og attraktiv beliggenhet rett utenfor Fredrikstad sentrum. Eiendommen grenser til fredet friareal i Fredrikstadmarka, med lysløype kun 100 meter unna og flotte turmuligheter året rundt. Boligen er romslig og funksjonell med 8 soverom, 2 bad, store oppholdsrom, romslig kjøkken med peis, vaskerom og full kjeller med egen inngang. Jevnlig oppgradert med bl.a. nytt elektrisk anlegg, kledning, vinduer, bad og biofyringsanlegg. Stor garasje, solrike uteplasser og tomt på nærmere 3 mål gir både plass og privatliv.
Vi ønsker velkommen til visning og minner om påmelding!
NB: Knappen for å vise hele beskrivelsen har kun en visuell effekt.
NB: Knappen for å vise hele beskrivelsen har kun en visuell effekt.
Salgsoppgaven beskriver vesentlig og lovpålagt informasjon om eiendommen
Se komplett salgsoppgaveNyttige lenker
Nærområdet
DNB Eiendom AS
Verdifulle salg
Annonseinformasjon
| FINN-kode | 433473224 |
|---|---|
| Sist endret | 19. jan. 2026 08:40 |
| Referanse | 217250011 |
Annonsene kan være mangelfulle i forhold til lovpålagt opplysningsplikt. Før bindende avtale inngås oppfordres interessenter til å innhente komplett informasjon fra meglerforetaket, selger eller utleier.











































