Bildegalleri

- Thea Edland ved Nordvik Bolig har gleden av å presentere Anne Grimdalens vei 8D -
Solgt
Varatun
Innbydende endeleil. Sentral beliggenhet. Stor overbygd balkong med fin utsikt og gode solforhold. Nyrenovert fasade.
Prisantydning2 990 000 kr
Nøkkelinfo
- Boligtype
- Leilighet
- Eieform
- Andel
- Soverom
- 3
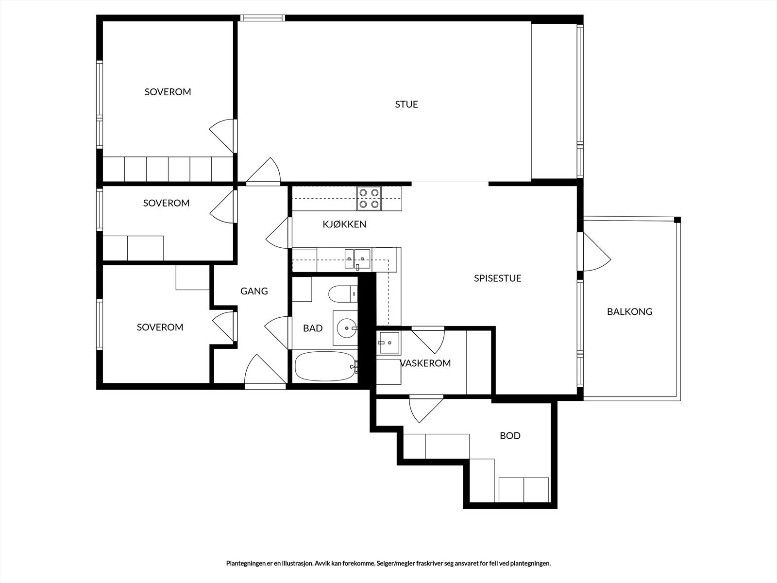
- Internt bruksareal
- 108 m² (BRA-i)
- Bruksareal
- 115 m²
- Eksternt bruksareal
- 7 m² (BRA-e)
- Balkong/Terrasse
- 1 m² (TBA)
- Etasje
- 2
- Byggeår
- 1970
- Energimerking
- C - Rød
- Rom
- 4
- Tomteareal
- 26 638 m² (eiet)
Fasiliteter
Balkong/Terrasse
Barnevennlig
Bredbåndstilknytning
Garasje/P-plass
Kjæledyr tillatt
Ingen gjenboere
Kabel-TV
Offentlig vann/kloakk
Parkett
Rolig
Sentralt
Utsikt
Vaktmester-/vektertjeneste
Turterreng
Lademulighet
Balansert ventilasjon
Om boligen
Innbydende endeleilighet med flott beliggenhet på Varatun med alt man behøver i nær omkrets. Her har man kort vei til bussholdeplass, butikk og turområder, så vel som Sandnes sentrum, Kvadrat, Forus og E39. Det er også kort vei til felles trimrom i underetasjen i oppgang 4D.
Leiligheten byr på en romslig planløsning og er nylig utvidet med større stue og balkong. Balkongen er av god størrelse og byr på flott utsikt over grøntarealer, Varatun gård og turstien like ved siden av blokken. Her kan man også nyte ettermiddagssolen.
Her har man "alt" inkludert i felleskostnadene, ingen dokumentavgift, god lagringsplass og nyere standard. Det er også parkering på felles parkeringsplass i tillegg til i fast garasje.
Velkommen til visning!
Leiligheten byr på en romslig planløsning og er nylig utvidet med større stue og balkong. Balkongen er av god størrelse og byr på flott utsikt over grøntarealer, Varatun gård og turstien like ved siden av blokken. Her kan man også nyte ettermiddagssolen.
Her har man "alt" inkludert i felleskostnadene, ingen dokumentavgift, god lagringsplass og nyere standard. Det er også parkering på felles parkeringsplass i tillegg til i fast garasje.
Velkommen til visning!
NB: Knappen for å vise hele beskrivelsen har kun en visuell effekt.
NB: Knappen for å vise hele beskrivelsen har kun en visuell effekt.
Salgsoppgaven beskriver vesentlig og lovpålagt informasjon om eiendommen
Se komplett salgsoppgaveNyttige lenker
Nærområdet
Nordvik Stavanger
Vi vet hva det er verdt
Annonseinformasjon
| FINN-kode | 433407768 |
|---|---|
| Sist endret | 18. des. 2025 12:00 |
| Referanse | 43-0252/25 |
Annonsene kan være mangelfulle i forhold til lovpålagt opplysningsplikt. Før bindende avtale inngås oppfordres interessenter til å innhente komplett informasjon fra meglerforetaket, selger eller utleier.




















































