Bildegalleri

PrivatMegleren Sarpsborg ved Odd Martin Heltorp har gleden av å presentere Skogholtet 26!
Hannestad
Romslig, pent oppusset 2-roms - Moderne, velutstyrt kjøkken - Stor terrasse - Garasjeplass m/lader - Varmtvann inkludert
Prisantydning2 890 000 kr
Nøkkelinfo
- Boligtype
- Leilighet
- Eieform
- Andel
- Soverom
- 1
- Internt bruksareal
- 71 m² (BRA-i)
- Bruksareal
- 79 m²
- Eksternt bruksareal
- 8 m² (BRA-e)
- Balkong/Terrasse
- 14 m² (TBA)
- Byggeår
- 1971
- Energimerking
- E - Rød
- Rom
- 2
- Tomteareal
- 34 275 m² (eiet)
Fasiliteter
Barnevennlig
Balkong/Terrasse
Garasje/P-plass
Kabel-TV
Utsikt
Bredbåndstilknytning
Moderne
Rolig
Visning
tirsdag, 05. mai
16:30 – 17:15
Velkommen til visning!
Alle våre visninger har påmelding. På denne måten sikrer vi at megler har god oversikt og tid til å imøtekomme alle interessenter på beste måte. Dette er veldig verdifullt for boligkjøpere og for oss. Det er enkelt å melde seg på, og du kan like enkelt melde deg av. Kontakt også gjerne megler i forkant av visning dersom du har spørsmål.
Om boligen
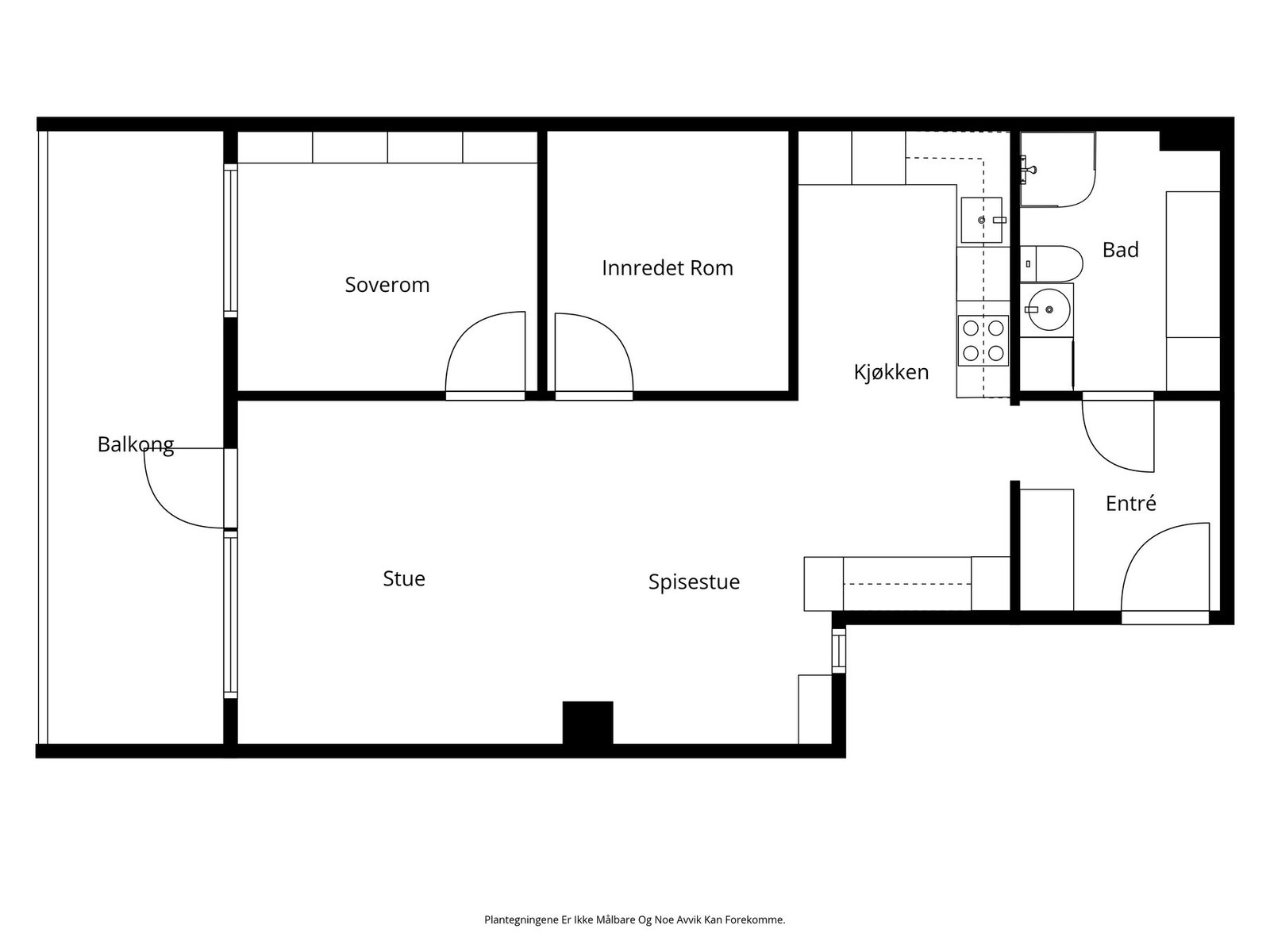
Velkommen til Skogholtet 26 - en romslig og innbydende 2-roms andelsleilighet i byggets underetasje. Beliggenheten er naturnær og rolig, med nærhet til idrettsanlegg, busstopp og turområder, samt kort vei til treningssenter, togstasjon og kjøpesenter. Videre kan eiendommen skilte med grønne, velstelte fellesområder, en vestvendt, overbygd terrasse på ca. 14 kvm og en egen garasjeplass med elbillader.
Leiligheten fremstår med tidsmessige farge- og materialvalg og praktisk planløsning. Stuen og kjøkkenet danner et luftig allrom med god møbleringsfrihet, og kjøkkenet er moderne og meget velutstyrt. Videre har leiligheten et fint bad/wc/vaskerom, en pen entré, et romslig soverom med garderobe og et innredet rom med flere muligheter. Lagringsplass finnes i en disponibel bod på ca. 8 kvm.
Leiligheten fremstår med tidsmessige farge- og materialvalg og praktisk planløsning. Stuen og kjøkkenet danner et luftig allrom med god møbleringsfrihet, og kjøkkenet er moderne og meget velutstyrt. Videre har leiligheten et fint bad/wc/vaskerom, en pen entré, et romslig soverom med garderobe og et innredet rom med flere muligheter. Lagringsplass finnes i en disponibel bod på ca. 8 kvm.
NB: Knappen for å vise hele beskrivelsen har kun en visuell effekt.
NB: Knappen for å vise hele beskrivelsen har kun en visuell effekt.
Salgsoppgaven beskriver vesentlig og lovpålagt informasjon om eiendommen
Se komplett salgsoppgaveNyttige lenker
Nærområdet

PrivatMegleren Sarpsborg
Kun det beste på dine vegne
Annonseinformasjon
| FINN-kode | 433386427 |
|---|---|
| Sist endret | 28. apr. 2026 07:46 |
| Referanse | 193250202 |
Annonsene kan være mangelfulle i forhold til lovpålagt opplysningsplikt. Før bindende avtale inngås oppfordres interessenter til å innhente komplett informasjon fra meglerforetaket, selger eller utleier.


























