Bildegalleri

Borgaråsen 25D presenteres av Krogsveen.
Solgt
Folkestadtoppen
Moderne 2-roms selveier fra 2023 med stor himlingshøyde. Gjenstående nybygg-garanti. Solfylt balkong med utsikt.
Prisantydning2 890 000 kr
Nøkkelinfo
- Boligtype
- Leilighet
- Eieform
- Eier (Selveier)
- Soverom
- 1
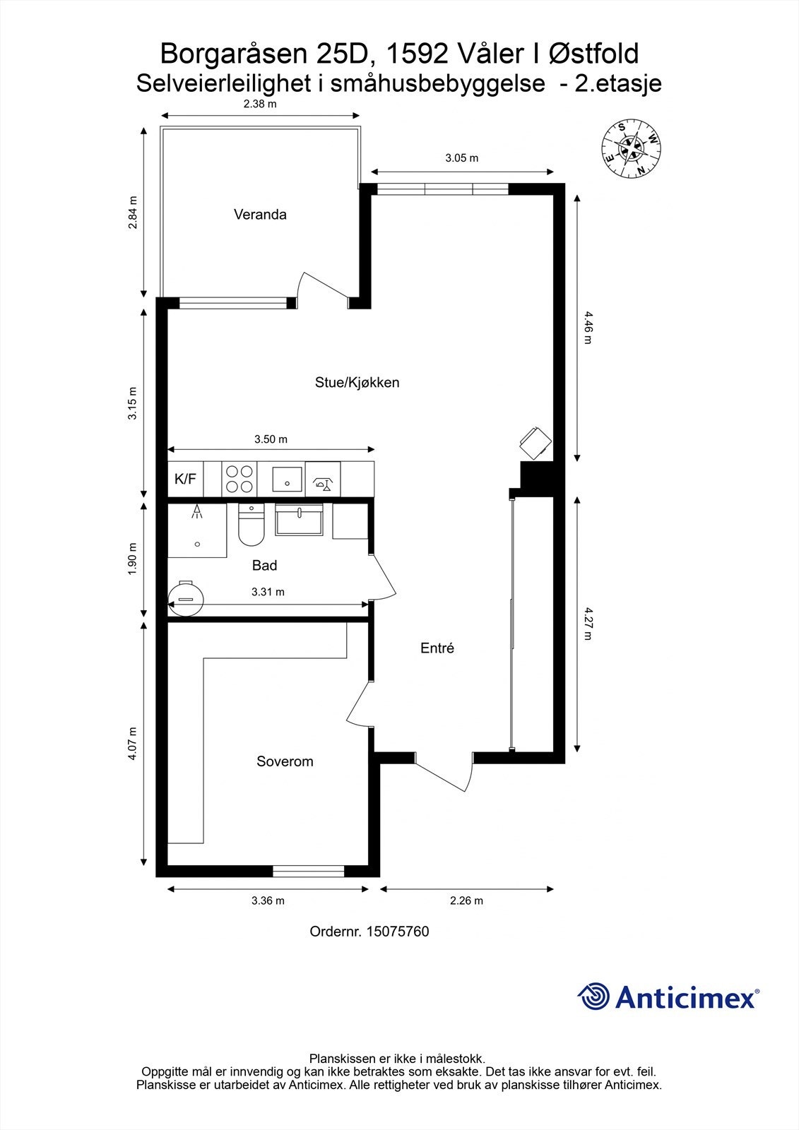
- Internt bruksareal
- 56 m² (BRA-i)
- Bruksareal
- 61 m²
- Eksternt bruksareal
- 5 m² (BRA-e)
- Balkong/Terrasse
- 7 m² (TBA)
- Etasje
- 2
- Byggeår
- 2023
- Rom
- 2
- Tomteareal
- 7 861 m² (eiet)
Fasiliteter
Balkong/Terrasse
Barnevennlig
Garasje/P-plass
Offentlig vann/kloakk
Peis/Ildsted
Rolig
Turterreng
Lademulighet
Balansert ventilasjon
Om boligen
Moderne to-roms selveier fra 2023 i rolige omgivelser på Folkestadtoppen
- Flytt rett inn og opplev gledene ved å bo i et moderne hjem som fortsatt oppleves som nytt!
- Omfattet av gjenstående nybygg-garanti på opprinnelig fem år fra ferdigstillelse
- Usjenert i andre etasje - uten direkte innsyn
- Balkong med langstrakt utsikt og sol store deler av dagen
- Meget effektiv romløsning med velholdte overflater og innredninger
- Stilfullt Sigdal-kjøkken med alle hvitevarer inkludert
- Ekstern sportsbod på ca. 5 kvm. på bakkeplan
- Fast biloppstillingsplass like utenfor, tilrettelagt for montering av billader
- Overbygget sykkelparkering internt i sameiet
- Umiddelbar tilgang til lysløype og turmuligheter i skog og mark
NB: Knappen for å vise hele beskrivelsen har kun en visuell effekt.
NB: Knappen for å vise hele beskrivelsen har kun en visuell effekt.
Salgsoppgaven beskriver vesentlig og lovpålagt informasjon om eiendommen
Se komplett salgsoppgaveNyttige lenker
Nærområdet
Krogsveen Moss
Verdien av en god megler.
Annonseinformasjon
| FINN-kode | 433375519 |
|---|---|
| Sist endret | 22. jan. 2026 12:24 |
| Referanse | KR30.25153 |
Annonsene kan være mangelfulle i forhold til lovpålagt opplysningsplikt. Før bindende avtale inngås oppfordres interessenter til å innhente komplett informasjon fra meglerforetaket, selger eller utleier.





















