Bildegalleri

Velkommen til Bjerkeveien 2!
Rød
Unik funkisvilla signert Arne Korsmo - rehabilitert med respekt for originalen. Tidløs design. En sjelden mulighet!
Prisantydning9 800 000 kr
Nøkkelinfo
- Boligtype
- Enebolig
- Eieform
- Selveier
- Soverom
- 4
- Internt bruksareal
- 233 m² (BRA-i)
- Bruksareal
- 261 m²
- Eksternt bruksareal
- 28 m² (BRA-e)
- Balkong/Terrasse
- 54 m² (TBA)
- Byggeår
- 1936
- Energimerking
- Rom
- 5
- Tomteareal
- 1 869 m² (eiet)
Visning
Ønsker du å delta på visningen ber vi om at du melder deg på slik at vi vet at du kommer. På den måten kan vi bistå alle best mulig, og gi deg tid på visningen. Visningen avholdes bare dersom det er påmeldte 2 timer innen oppsatt visningstidspunkt. Ta gjerne kontakt med megler på telefon 916 92 947 før visningen, hvis du har noen spørsmål. Velkommen!
VisningspåmeldingOm boligen
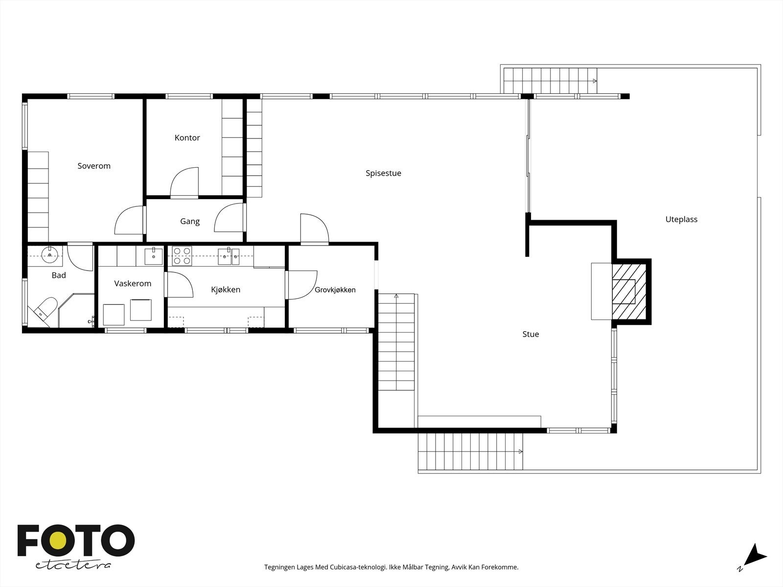
Velkommen til Bjerkeveien 2 - en enestående funkisbolig tegnet av Arne Korsmo i 1936, midt i hans mest innflytelsesrike periode som modernist. Boligen er gjennomgående rehabilitert i 2006 samarbeid med arkitekt Per Stenseth hos Stenseth Grimsrud Arkitekter AS, med stor respekt for originaluttrykket. Her er rene linjer, store vindusflater og presise proporsjoner bevart, samtidig som moderne komfort er tilført med bergvarme og oppgradert teknisk standard.
Planløsningen er funksjonell og romslig. Huset går over to etasjer og inneholder bl.a. gedigen stue, fire soverom, kontor, to bad, vaskerom, teknisk rom og grovkjeller. Dette er et hjem for den kresne - en nydelig familiebolig av de sjeldne i Halden, hvor norsk arkitekturhistorie møter moderne livskvalitet.
Eiet tomt på 1869 m².
Planløsningen er funksjonell og romslig. Huset går over to etasjer og inneholder bl.a. gedigen stue, fire soverom, kontor, to bad, vaskerom, teknisk rom og grovkjeller. Dette er et hjem for den kresne - en nydelig familiebolig av de sjeldne i Halden, hvor norsk arkitekturhistorie møter moderne livskvalitet.
Eiet tomt på 1869 m².
NB: Knappen for å vise hele beskrivelsen har kun en visuell effekt.
NB: Knappen for å vise hele beskrivelsen har kun en visuell effekt.
Salgsoppgaven beskriver vesentlig og lovpålagt informasjon om eiendommen
Se komplett salgsoppgaveNyttige lenker
Nærområdet
Eiendomsmegler 1 Halden
Vi loser deg trygt gjennom hele boligsalget
Annonseinformasjon
| FINN-kode | 433356935 |
|---|---|
| Sist endret | 23. mars 2026 13:20 |
| Referanse | 5380250274 |
Annonsene kan være mangelfulle i forhold til lovpålagt opplysningsplikt. Før bindende avtale inngås oppfordres interessenter til å innhente komplett informasjon fra meglerforetaket, selger eller utleier.










































































