Bildegalleri

Velkommen til Rosenborg Park - Stadsing Dahls gate 19, en strøken leilighet, pusset opp i 2025, med gangavstand til Solsiden og Midtbyen Foto: Oscar Stoltenberg

Solgt
Rosenborg

Nyoppusset (2025) og meget lekker eierleilighet | Gangavstand til sentrum og Solsiden | Innglasset balkong | Fjernvarme

Prisantydning3 190 000 kr
Totalpris
3 280 790 kr
Omkostninger
90 790 kr
Felleskost/mnd.
2 087 kr
Formuesverdi
677 435 kr

Nøkkelinfo

Boligtype
Leilighet
Eieform
Selveier
Soverom
1
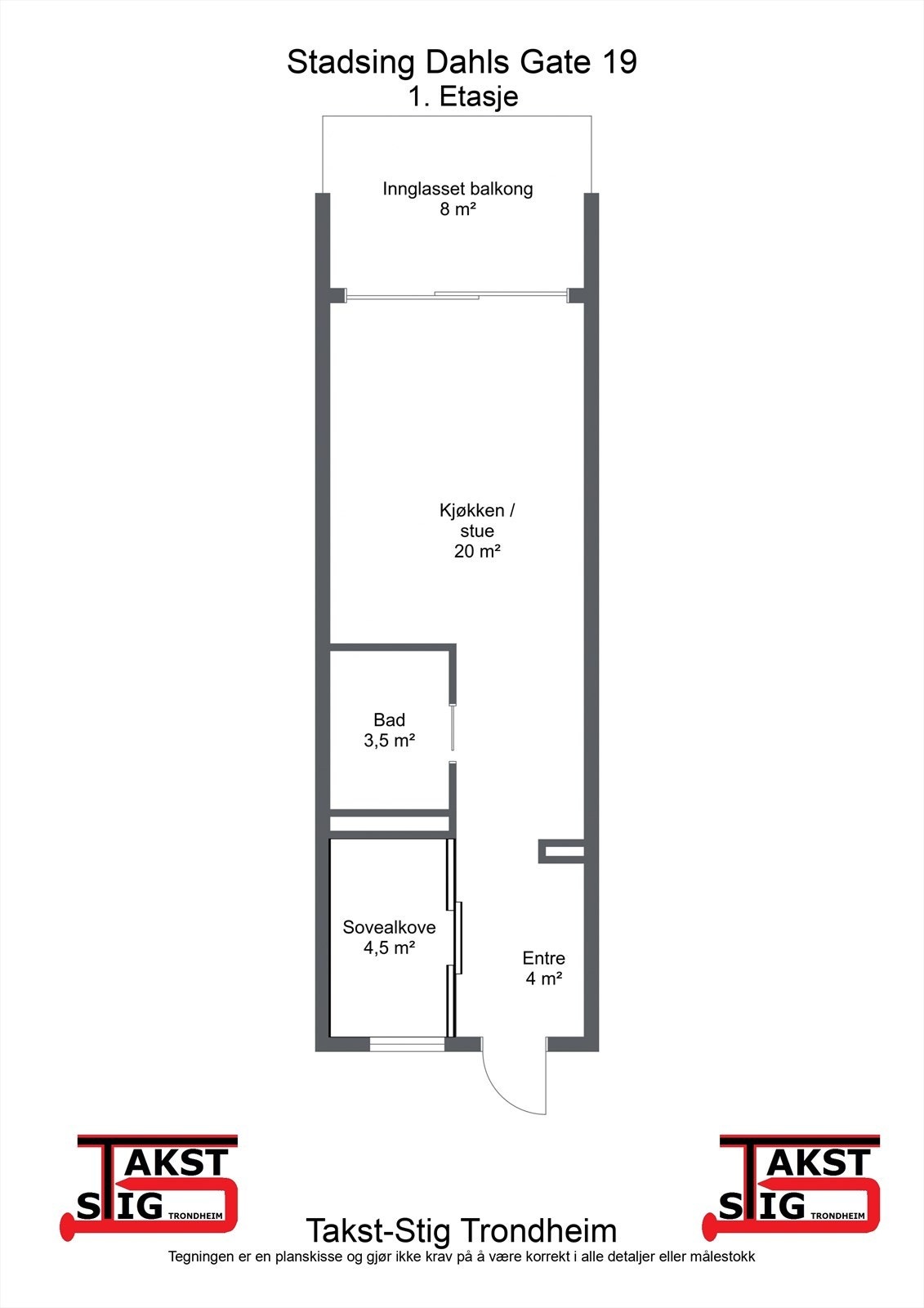
Internt bruksareal
33 m² (BRA-i)
Bruksareal
46 m²
Eksternt bruksareal
4 m² (BRA-e)
Innglasset balkong
9 m² (BRA-b)
Etasje
1
Byggeår
2005
Energimerking
D - Mørkegrønn
Rom
1
Tomteareal
4 371 m² (eiet)

Les mer om bruksareal her

Fasiliteter

Balkong/Terrasse
Barnevennlig
Bredbåndstilknytning
Heis
Kabel-TV
Offentlig vann/kloakk
Parkett
Rolig
Sentralt
Turterreng
Balansert ventilasjon

Om boligen

Velkommen til Stadsing Dahls gate 19 - en delikat og meget tiltalende leilighet på Rosenborg Park. Her bor du sentrumsnært med gangavstand til det meste av Trondheims mest attraktive fasiliteter, samtidig som du også er tilbaketrukket i et rolig og skjermet område.

Verdt å nevne:
  • Nydelig oppusset leilighet (2025) med lekker standard og gjennomtenkte løsninger
  • Balansert ventilasjon og fjernvarme
  • Innglasset balkong
  • Generøs takhøyde og god boatmosfære
  • Bod i kjeller
  • Lave fellesutgifter som inkluderer bl.a. varmtvann, fjernvarme og internett
  • Nydelige parkmessige uteområder
  • Etterspurt område med nærhet til midtbyen, uteliv, studiesteder
  • Dagligvarebutikk (Rema 1000) i nabobygget
  • Gode bussforbindelser

Salgsoppgaven beskriver vesentlig og lovpålagt informasjon om eiendommen

Se komplett salgsoppgave

Nærområdet

Annonseinformasjon

FINN-kode433237641
Sist endret06. mars 2026 17:39
ReferanseKR68.25140

Rapporter annonse

Annonsene kan være mangelfulle i forhold til lovpålagt opplysningsplikt. Før bindende avtale inngås oppfordres interessenter til å innhente komplett informasjon fra meglerforetaket, selger eller utleier.