Bildegalleri

Nordvik Avd. Frogner har gleden av å presentere Ullernveien 29D, tegnet av Skapa arkitekter. Foto: Marikafoto
På et høydedrag på Bestum
Ny, eksklusiv og arkitekttegnet enebolig med påkostede løsninger. Flat og solrik hage m/ pergola. Garasjeplass + p-plass
Prisantydning20 750 000 kr
Nøkkelinfo
- Boligtype
- Enebolig
- Eieform
- Eier (Selveier)
- Soverom
- 4
- Internt bruksareal
- 201 m² (BRA-i)
- Bruksareal
- 201 m²
- Balkong/Terrasse
- 44 m² (TBA)
- Byggeår
- 2025
- Energimerking
- A - Rød
- Rom
- 5
- Tomteareal
- 2 234 m² (eiet)
Fasiliteter
Balkong/Terrasse
Barnevennlig
Garasje/P-plass
Hage
Kjæledyr tillatt
Offentlig vann/kloakk
Parkett
Peis/Ildsted
Rolig
Turterreng
Lademulighet
Balansert ventilasjon
Visning
søndag, 08. februar
14:30 – 15:30
mandag, 09. februar
18:00 – 19:00
Alle våre visninger har påmelding. På denne måten sikrer vi at megler har god oversikt og tid til å imøtekomme alle interessenter. Meld deg på visning ved å trykke på lenken visningspåmelding. Dersom det ikke er noen påmeldt visning, kan visningen bli avlyst.
VisningspåmeldingOm boligen
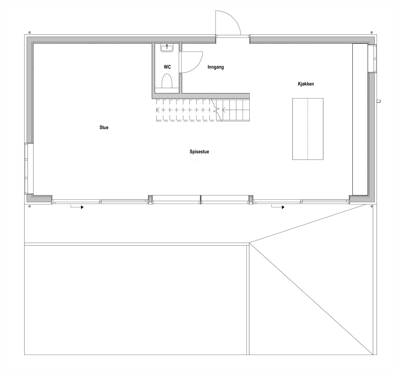
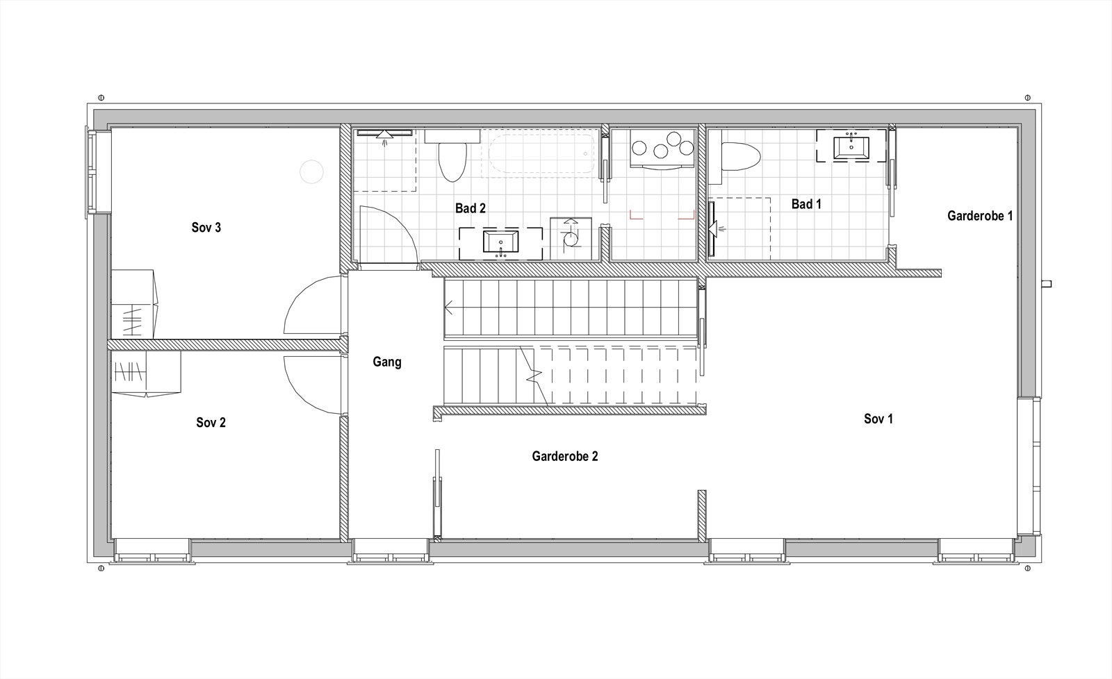
Nyoppført, arkitekttegnet enebolig med eksklusive materialvalg og flat, skjermet hage hvor barn kan ferdes fritt og trygt. Solrik beliggenhet på et høydedrag i blindvei i et barnevennlig område ved Ullern kirke og Bestum skole. Boligen har en gjennomtenkt og praktisk planløsning ideell for en barnefamilie. Store vindusflater og gunstig orientering gir rikelig med naturlig lys. Parkering i underjordisk garasjeanlegg samt én biloppstillingsplass. 2 av 5 boliger solgt!
- Hyggelig utsikt
- Nybygggaranti frem til 2030
- Store etasjer
- 4 soverom, 2 bad og separat toalettrom
- Flat, solrik hage med fine og skjermede uteplasser
- Gasspeis i stue og vannbåren gulvvarme
- Rolig, barnevennlig og attraktiv beliggenhet
- Kort vei til barnehage, skole og fritidstilbud
NB: Knappen for å vise hele beskrivelsen har kun en visuell effekt.
NB: Knappen for å vise hele beskrivelsen har kun en visuell effekt.
Salgsoppgaven beskriver vesentlig og lovpålagt informasjon om eiendommen
Se komplett salgsoppgaveNyttige lenker
Nærområdet
Nordvik Frogner
Annonseinformasjon
| FINN-kode | 433213905 |
|---|---|
| Sist endret | 01. feb. 2026 09:03 |
| Referanse | 14-0636/25 |
Annonsene kan være mangelfulle i forhold til lovpålagt opplysningsplikt. Før bindende avtale inngås oppfordres interessenter til å innhente komplett informasjon fra meglerforetaket, selger eller utleier.























































