Bildegalleri

Privatmegleren v/ Weronica Sandbæk har gleden av å presentere Høyåsveien 3! En stor klassisk enebolig med en solrik og idyllisk hage i flotte Preståsen. Dobbelgarasje med leilighet.
Solgt
Preståsen/ nær sentrum
Flott klassisk villa med stor solrik hage i et av byens mest populære boligstrøk nær sentrum. Dobbelgarasje med utleie.
Prisantydning9 450 000 kr
Nøkkelinfo
- Boligtype
- Enebolig
- Eieform
- Selveier
- Soverom
- 4
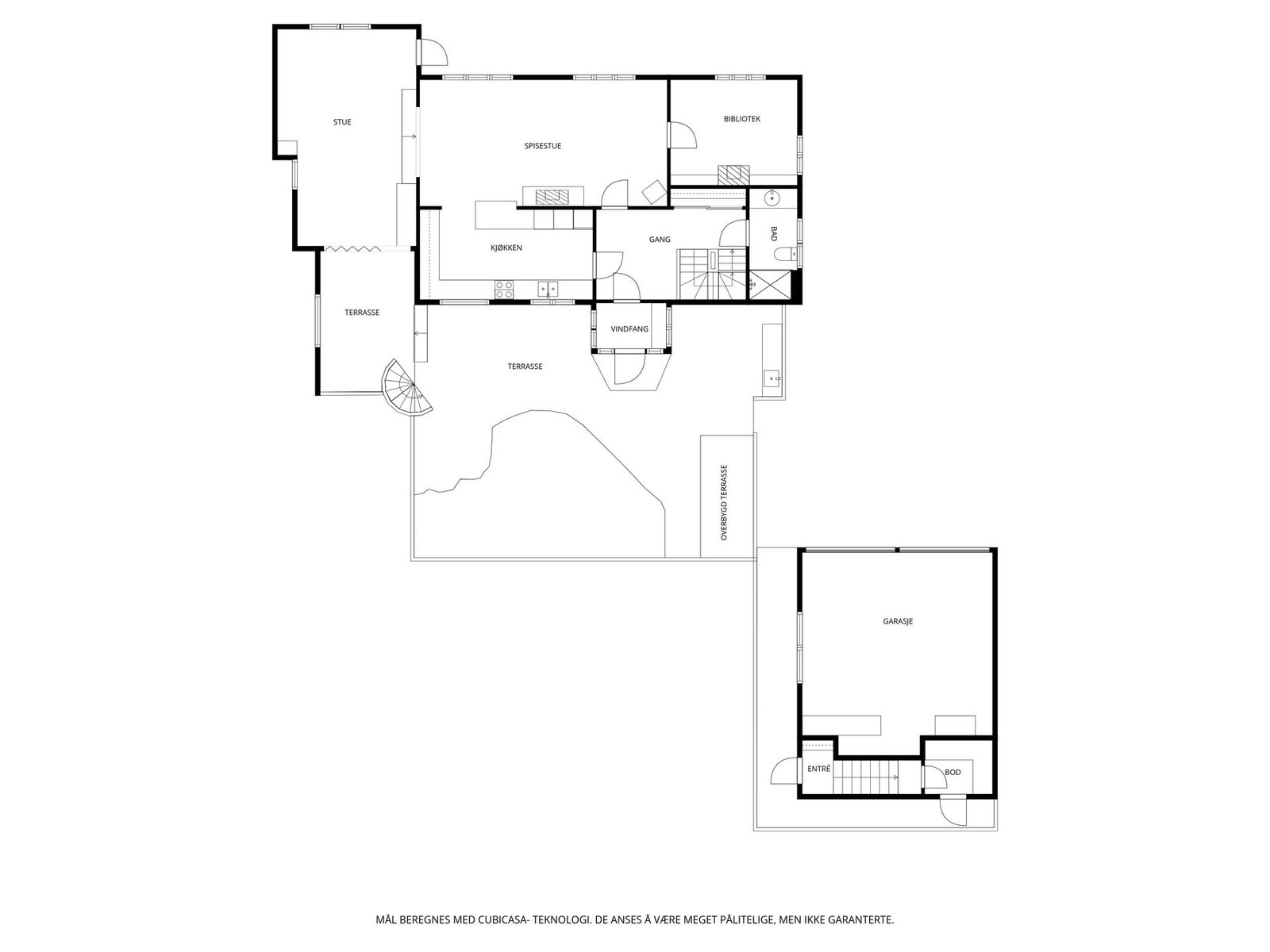
- Internt bruksareal
- 281 m² (BRA-i)
- Bruksareal
- 316 m²
- Eksternt bruksareal
- 35 m² (BRA-e)
- Balkong/Terrasse
- 103 m² (TBA)
- Byggeår
- 1920
- Tomteareal
- 1 010 m² (eiet)
Fasiliteter
Barnevennlig
Balkong/Terrasse
Garasje/P-plass
Peis/Ildsted
Sentralt
Rolig
Om boligen
Velkommen til Høyåsveien 3! En stor og klassisk enebolig fra 1920/1986/2023 i en stor grønn oase, som er smakfullt oppgradert og er gjennomgående godt vedlikeholdt. Den solrike eiendommen har en stor herlig hage og flere koselige sitteplasser, samt et drivhus som også kan brukes som en hagestue om ønskelig. Dobbelgarasjen med leilighet over gir mange muligheter, enten som gjesteavdeling, hjemmekontor eller utleiedel. Boligens interiør er stilrent og balanserer det moderne med husets historie og nostalgiske karakter. Stuer og kjøkken er nylig renovert og arkitektens løsninger skaper en elegant flyt mellom inne og uterom. Fuglesangen fra frukttrærne, klokkespillet fra Sandar kirke, vannets sildring fra fontenen er lyder det er lett å glede seg over fra Høyåsveien3! Alt er bare en kort rusletur fra sentrum. Velkommen til en hyggelig visning!
NB: Knappen for å vise hele beskrivelsen har kun en visuell effekt.
NB: Knappen for å vise hele beskrivelsen har kun en visuell effekt.
Salgsoppgaven beskriver vesentlig og lovpålagt informasjon om eiendommen
Se komplett salgsoppgaveNyttige lenker
Nærområdet
PrivatMegleren Sandefjord
Kun det beste på dine vegne
Annonseinformasjon
| FINN-kode | 432684441 |
|---|---|
| Sist endret | 17. jan. 2026 13:19 |
| Referanse | 33250082 |
Annonsene kan være mangelfulle i forhold til lovpålagt opplysningsplikt. Før bindende avtale inngås oppfordres interessenter til å innhente komplett informasjon fra meglerforetaket, selger eller utleier.






































































