Bildegalleri

Eiendommen sett fra vest slik den fremstår i dag.
Eik
SUPER MULIGHET | Komplett prosjekt m/4 enheter (rammetillatelse) på ca 1,5 mål tomt | MEGET populært & barnev. område!
Prisantydning4 990 000 kr
Nøkkelinfo
- Boligtype
- Enebolig
- Eieform
- Eier (Selveier)
- Soverom
- 5
- Internt bruksareal
- 145 m² (BRA-i)
- Bruksareal
- 164 m²
- Eksternt bruksareal
- 19 m² (BRA-e)
- Byggeår
- 1962
- Energimerking
- G - Rød
- Tomteareal
- 1 507 m² (eiet)
Fasiliteter
Balkong/Terrasse
Barnevennlig
Rolig
Garasje/P-plass
Bredbåndstilknytning
Visning
Annonsert fellesvisning avholdes kun ved forhåndspåmelding.
Visninger avholdes enten ved selvssyn eller etter direkte avtale med eiendomsmegler.
Har du spørsmål, ta gjerne kontakt med megler før visningen. NB! Fellesvisninger uten påmeldte senest kl. 12.00 samme dag i ukedager og kl. 10.00 i helgen, vil bli avlyst. Så husk å melde deg på i god tid.
VisningspåmeldingOm boligen
Velkommen til denne populært beliggende eiendommen i Snarveien på Eik. Gode solforhold og rolige forhold i en populær boliggate.
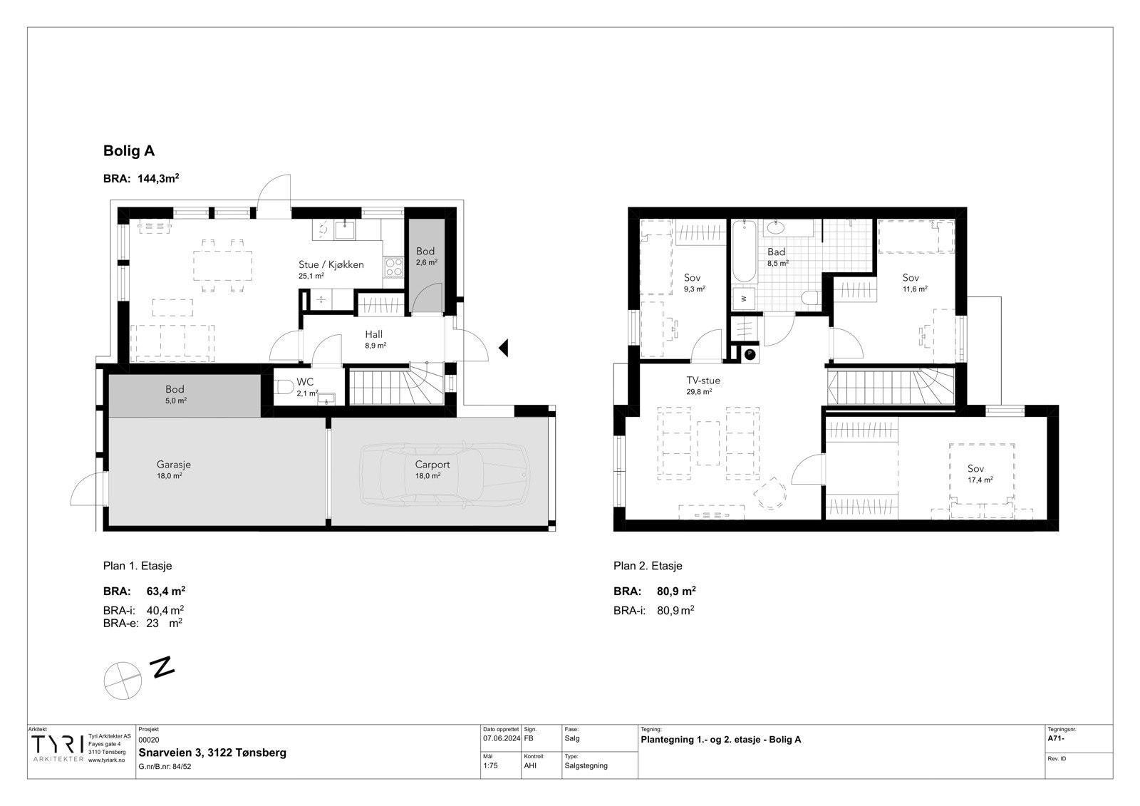
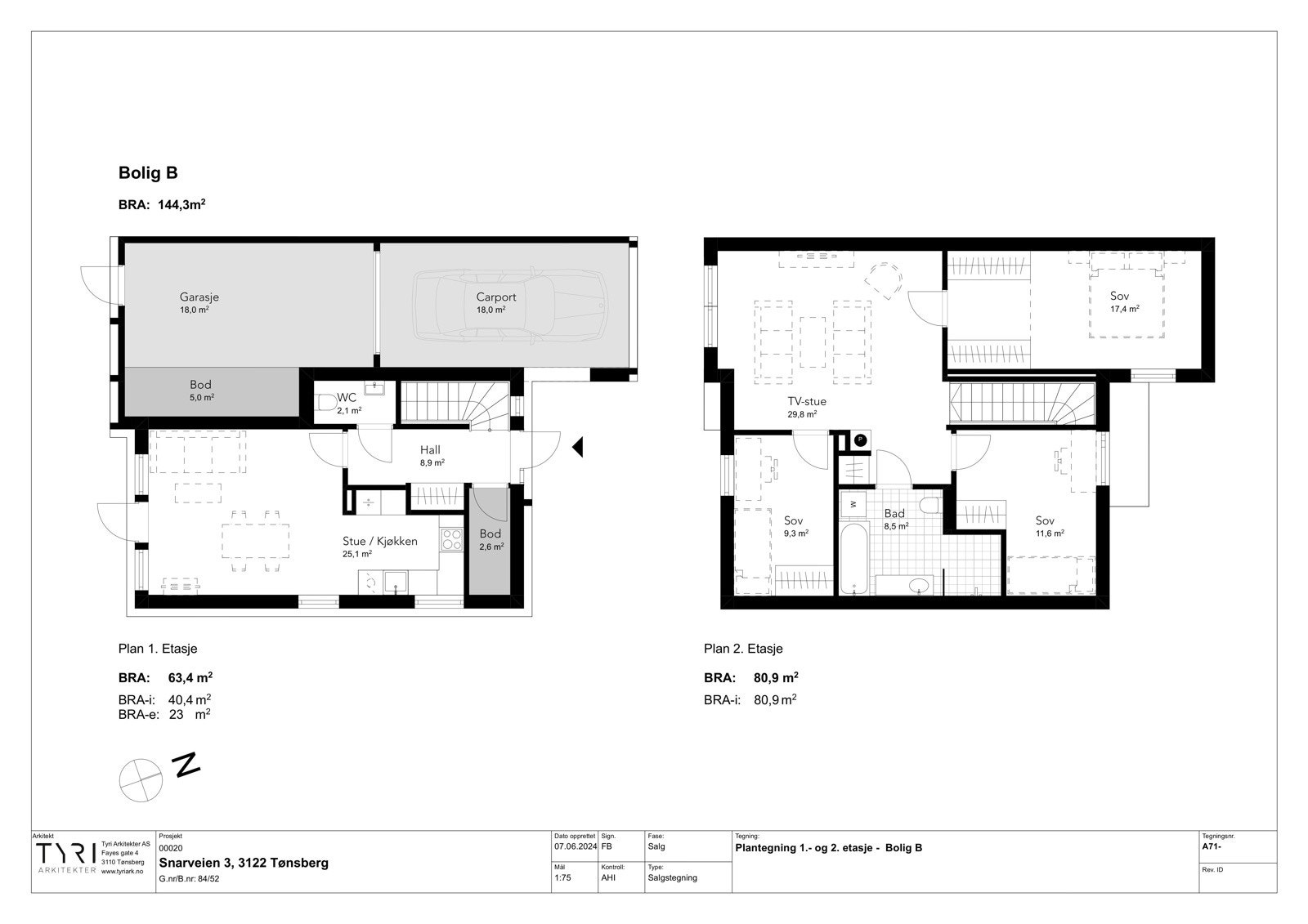
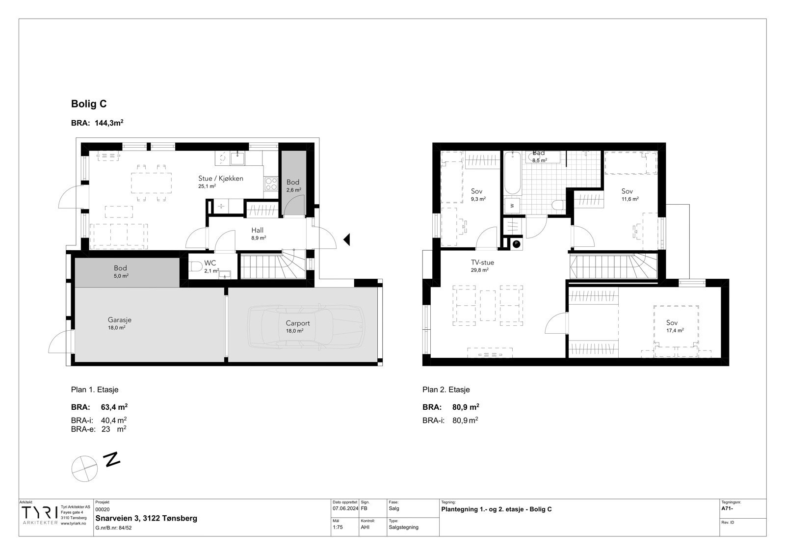
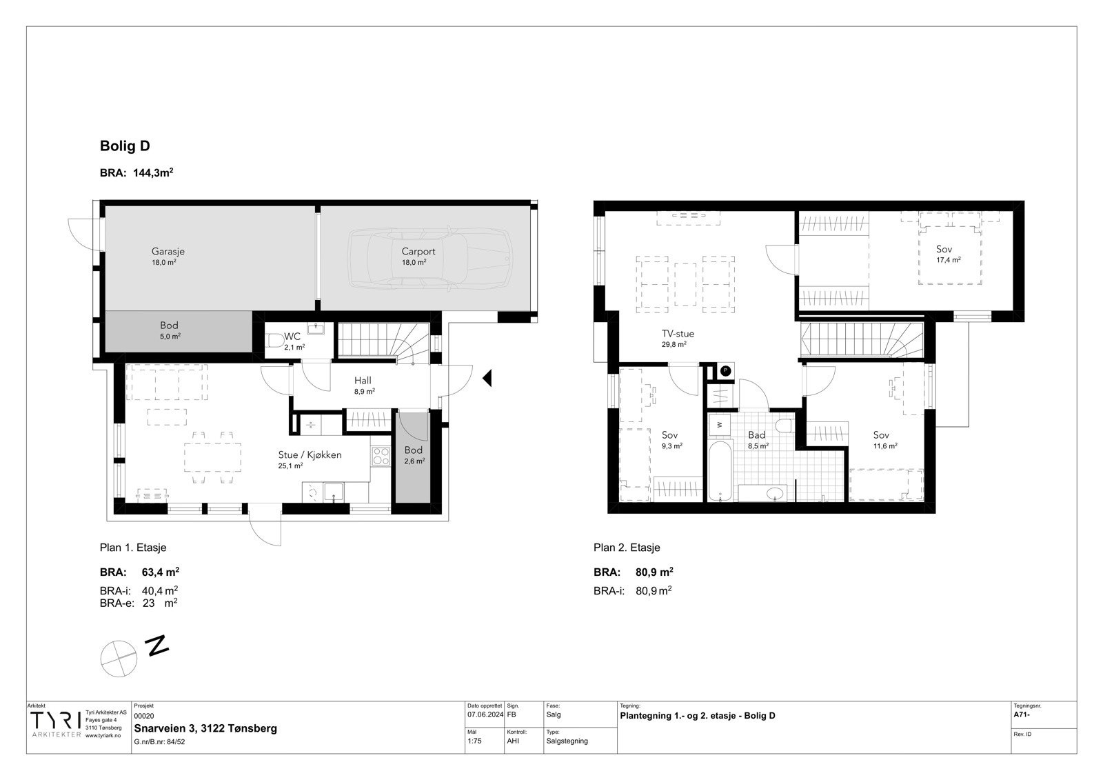
Eiendommen selges m/godkjent rammetillatelse for oppføring av 4 enheter - datert 04.04.2024. Her er det m.a.o. mulig å sette i gang med planlagt prosjekt uten ytterligere søknadsprosess (tid/kostnad).
- Superattraktivt område perfekt for barnefamilier, med trygg gangavst. til skole, bhg, butikker, buss m.m.
- Planlagte og godkjente boliger har en moderne og flott arkitelktur. Ta gjerne kontakt for ytterligere informasjon og leveransebeskrivelse av prosjektet.
- Det anbefales å besiktige eiendommen og konf. megler for ytterligere info rundt prosjektet
- Fint prosjekt med familievennlige boliger, tegnet av Tyri
- Eneboligen som står på tomten i dag er å anse som et rivningsobjekt
NB: Knappen for å vise hele beskrivelsen har kun en visuell effekt.
NB: Knappen for å vise hele beskrivelsen har kun en visuell effekt.
Salgsoppgaven beskriver vesentlig og lovpålagt informasjon om eiendommen
Se komplett salgsoppgaveNyttige lenker
Nærområdet
Bakke Sørvik & Partners
Verdien av lokalkunnskap
Annonseinformasjon
| FINN-kode | 432540905 |
|---|---|
| Sist endret | 23. jan. 2026 03:21 |
| Referanse | 28250384 |
Annonsene kan være mangelfulle i forhold til lovpålagt opplysningsplikt. Før bindende avtale inngås oppfordres interessenter til å innhente komplett informasjon fra meglerforetaket, selger eller utleier.














