Bildegalleri

Eiendomsmegler1 Vestby/Son v/ Elise Habberstad har den glede av å presentere Tønnesveien 13 i Son.

Nyere, lekker enebolig med sjøutsikt | Flotte uteplasser med gode solforhold | Fint opparbeidet tomt med dobbel-garasje.

Prisantydning12 900 000 kr
Totalpris
13 222 500 kr
Omkostninger
322 500 kr
Kommunale avg.
23 503 kr per år
Formuesverdi
1 988 684 kr

Nøkkelinfo

Boligtype
Enebolig
Eieform
Eier (Selveier)
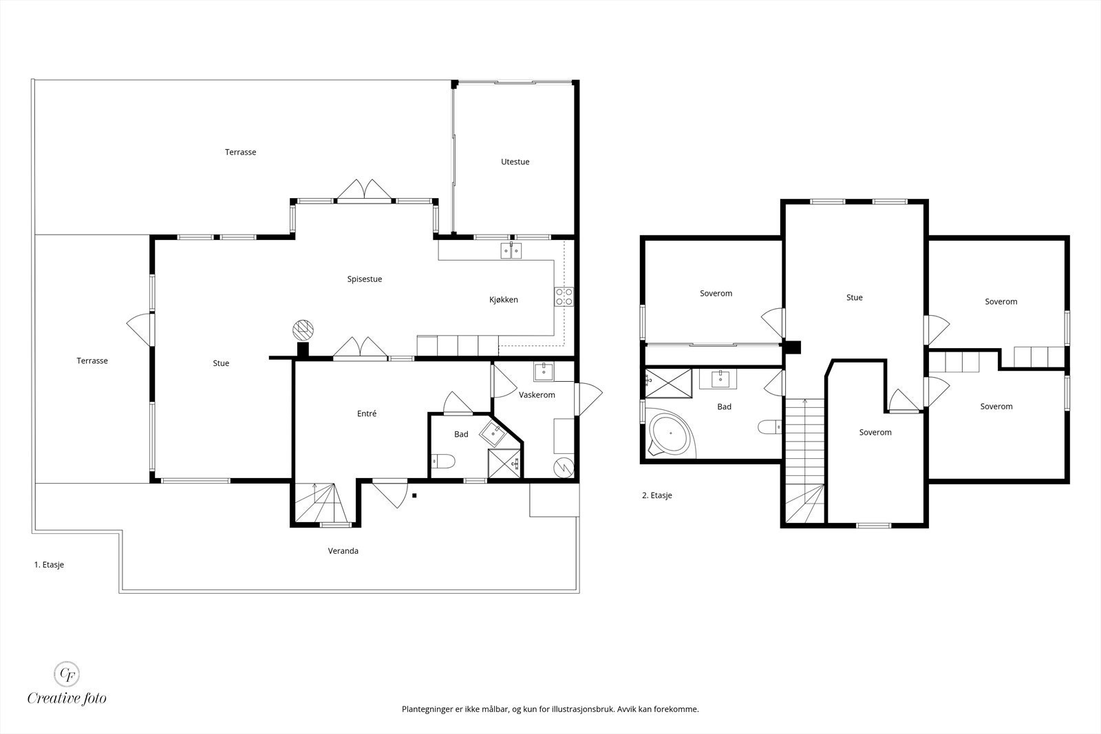
Soverom
3
Internt bruksareal
167 m² (BRA-i)
Bruksareal
217 m²
Eksternt bruksareal
34 m² (BRA-e)
Innglasset balkong
16 m² (BRA-b)
Balkong/Terrasse
120 m² (TBA)
Etasje
2
Byggeår
2013
Energimerking
B - Oransje
Rom
4
Tomteareal
988 m² (eiet)

Les mer om bruksareal her

Fasiliteter

Balkong/Terrasse
Barnevennlig
Garasje/P-plass
Hage
Peis/Ildsted
Rolig
Sentralt
Utsikt

Visning

torsdag, 12. februar
16:30 – 17:30
Visningspåmelding

Om boligen

Velkommen til Tønnesveien 13 - nyere enebolig med sjøutsikt!
Denne flotte eneboligen kombinerer tidløs sjarm med moderne komfort og en flott beliggenhet. Her får du et hjem som byr på både utsikt mot sjøen og et nydelig uteområde - perfekt for rolige dager eller hyggelige sammenkomster.
Innvendig holder boligen en gjennomgående god standard med lyse, åpne rom og store vindusflater som slipper inn rikelig med naturlig lys. Planløsningen er gjennomtenkt og gir en behagelig flyt mellom oppholdsrommene.
Utendørs finner du en solrik og pent opparbeidet hage, terrasser med gode solforhold og en innbydende utestue. Her kan du nyte gode dager utendørs gjennom store deler av året.

Med romslig tomt, dobbeltgarasje og nærhet til både sjøen og Son sentrum, fremstår eiendommen attraktiv!

Salgsoppgaven beskriver vesentlig og lovpålagt informasjon om eiendommen

Se komplett salgsoppgave

Nærområdet

Annonseinformasjon

FINN-kode432517927
Sist endret04. feb. 2026 15:31
Referanse5120250144

Rapporter annonse

Annonsene kan være mangelfulle i forhold til lovpålagt opplysningsplikt. Før bindende avtale inngås oppfordres interessenter til å innhente komplett informasjon fra meglerforetaket, selger eller utleier.