Bildegalleri

Henrik Wang ved din lokalmegler EIE Stovner har gleden av å presentere Garver Ytteborgs vei 109!
Solgt
Haugenstua
Luftig, gjennomgående og familievennlig 3-roms i 6 etg. - Solrik sydvendt balkong - Bad fra '17 - Heis - Sentralt
Prisantydning3 450 000 kr
Nøkkelinfo
- Boligtype
- Leilighet
- Eieform
- Andel
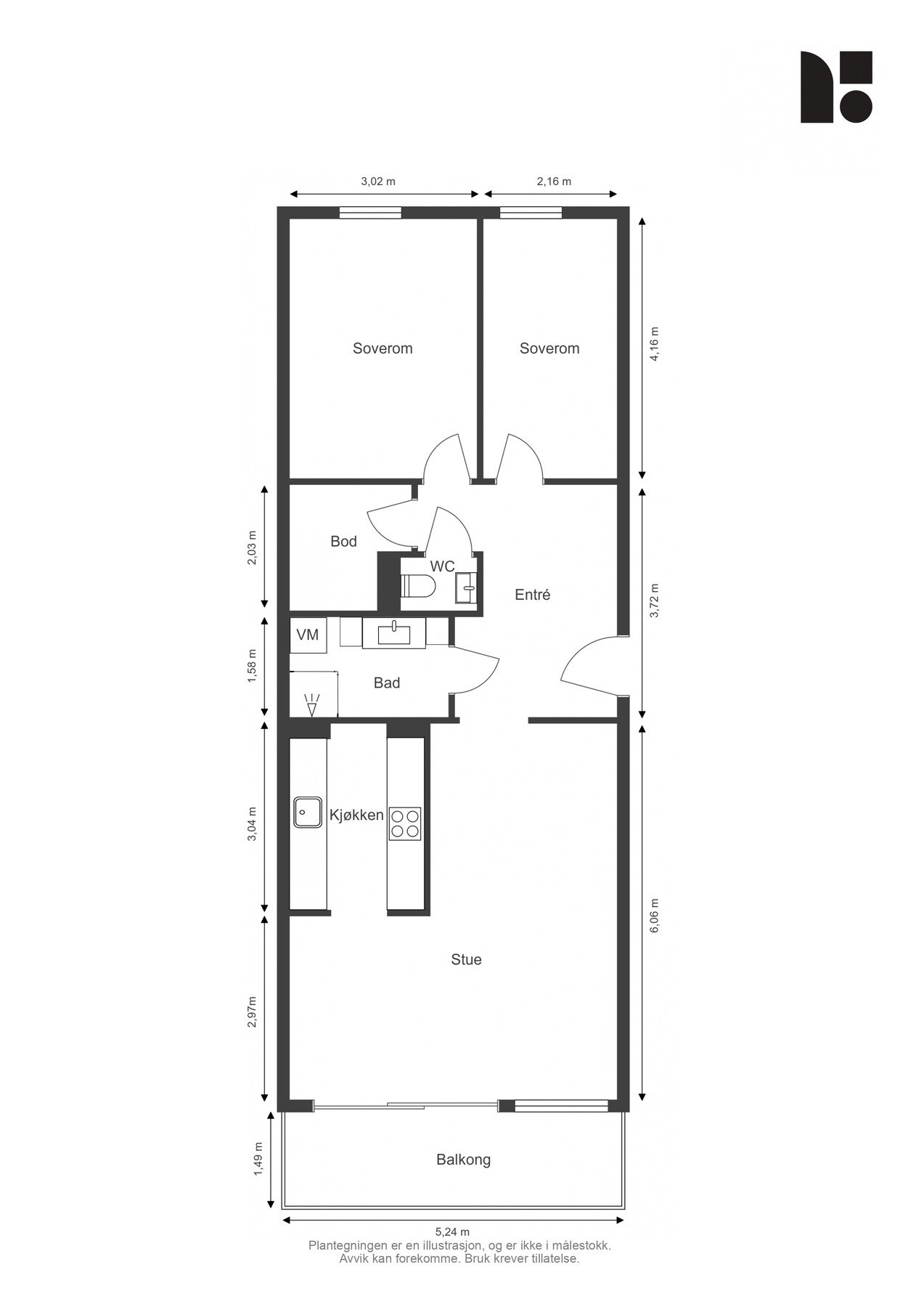
- Soverom
- 2
- Internt bruksareal
- 74 m² (BRA-i)
- Bruksareal
- 76 m²
- Eksternt bruksareal
- 2 m² (BRA-e)
- Balkong/Terrasse
- 8 m² (TBA)
- Etasje
- 6
- Byggeår
- 1969
- Energimerking
- F - Mørkegrønn
- Rom
- 3
- Tomteareal
- 53 031 m² (eiet)
Fasiliteter
Barnevennlig
Balkong/Terrasse
Kabel-TV
Heis
Offentlig vann/kloakk
Ingen gjenboere
Utsikt
Vaktmester-/vektertjeneste
Fellesvaskeri
Sentralt
Bredbåndstilknytning
Rolig
Om boligen
Henrik Wang ved din lokale eiendomsmegler EIE Stovner har gleden av å presentere Garver Ytteborgs vei 109!
Fra boligen har du nærhet til alt du trenger i en travel hverdag, med matbutikk, treningssenter, kollektivtransport og skole/barnehage.
Kvaliteter:
. Ingen TG3.
. Praktisk planløsning med separat WC og innvendig bod.
. Bad + WC pusset opp av borettslag i 2017.
. Varmtvann og fyring inkludert.
. Sydvendt balkong på 8 kvm med gode solforhold store deler av dagen.
. Bod innvendig og i kjeller.
. Heis og fellesvaskeri i bygget.
. Mulig å leie flere parkeringsplasser inne og ute. Kostnadsfritt gjesteparkering rett utenfor
. 3 min til buss og 6 min til togstasjon. 14 min med tog til Oslo S.
. Familievennlig borettslag med parkområder, parsellhager, sykkelveier, sykkelrom og lekerom.
Fra boligen har du nærhet til alt du trenger i en travel hverdag, med matbutikk, treningssenter, kollektivtransport og skole/barnehage.
Kvaliteter:
. Ingen TG3.
. Praktisk planløsning med separat WC og innvendig bod.
. Bad + WC pusset opp av borettslag i 2017.
. Varmtvann og fyring inkludert.
. Sydvendt balkong på 8 kvm med gode solforhold store deler av dagen.
. Bod innvendig og i kjeller.
. Heis og fellesvaskeri i bygget.
. Mulig å leie flere parkeringsplasser inne og ute. Kostnadsfritt gjesteparkering rett utenfor
. 3 min til buss og 6 min til togstasjon. 14 min med tog til Oslo S.
. Familievennlig borettslag med parkområder, parsellhager, sykkelveier, sykkelrom og lekerom.
NB: Knappen for å vise hele beskrivelsen har kun en visuell effekt.
NB: Knappen for å vise hele beskrivelsen har kun en visuell effekt.
Salgsoppgaven beskriver vesentlig og lovpålagt informasjon om eiendommen
Se komplett salgsoppgaveNyttige lenker
Nærområdet
EIE eiendomsmegling Stovner
Annonseinformasjon
| FINN-kode | 432366657 |
|---|---|
| Sist endret | 08. jan. 2026 11:24 |
| Referanse | 75250286 |
Annonsene kan være mangelfulle i forhold til lovpålagt opplysningsplikt. Før bindende avtale inngås oppfordres interessenter til å innhente komplett informasjon fra meglerforetaket, selger eller utleier.































