Bildegalleri

- Thea Edland ved Nordvik Bolig har gleden av å presentere Bruveien 295 -
Solgt
Bru
Innholdsrik bolig med tomt på over 1 mål. Solrik beliggenhet med vakker sjøutsikt. Landlig og fredelig. To garasjer.
Prisantydning6 500 000 kr
Nøkkelinfo
- Boligtype
- Enebolig
- Eieform
- Eier (Selveier)
- Soverom
- 2
- Internt bruksareal
- 239 m² (BRA-i)
- Bruksareal
- 294 m²
- Eksternt bruksareal
- 55 m² (BRA-e)
- Balkong/Terrasse
- 2 m² (TBA)
- Etasje
- 3
- Byggeår
- 1982
- Energimerking
- F - Gul
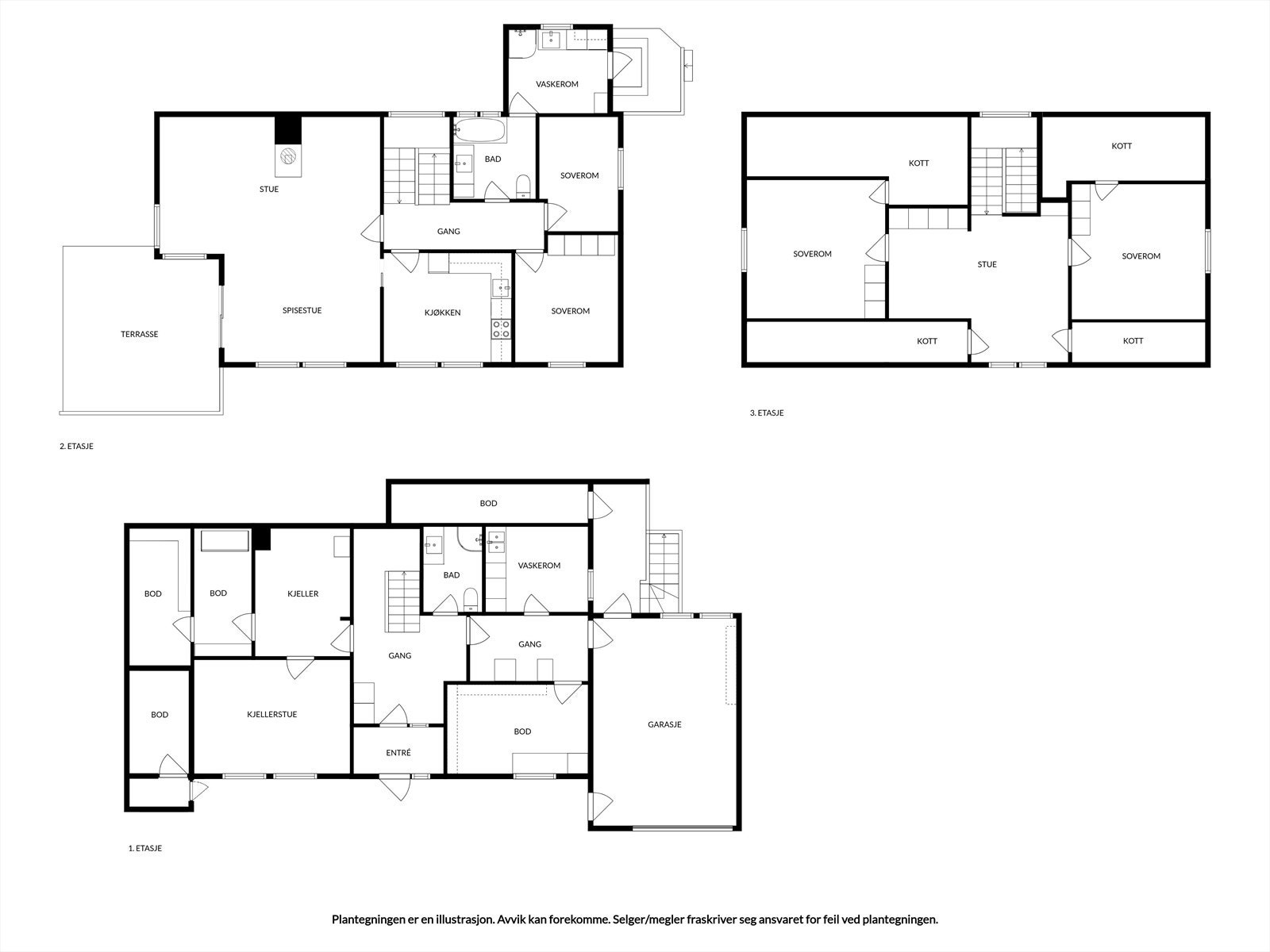
- Rom
- 7
- Tomteareal
- 1 158 m² (eiet)
Fasiliteter
Balkong/Terrasse
Barnevennlig
Bredbåndstilknytning
Garasje/P-plass
Hage
Kjæledyr tillatt
Ingen gjenboere
Kabel-TV
Offentlig vann/kloakk
Parkett
Peis/Ildsted
Rolig
Utsikt
Bademulighet
Fiskemulighet
Turterreng
Lademulighet
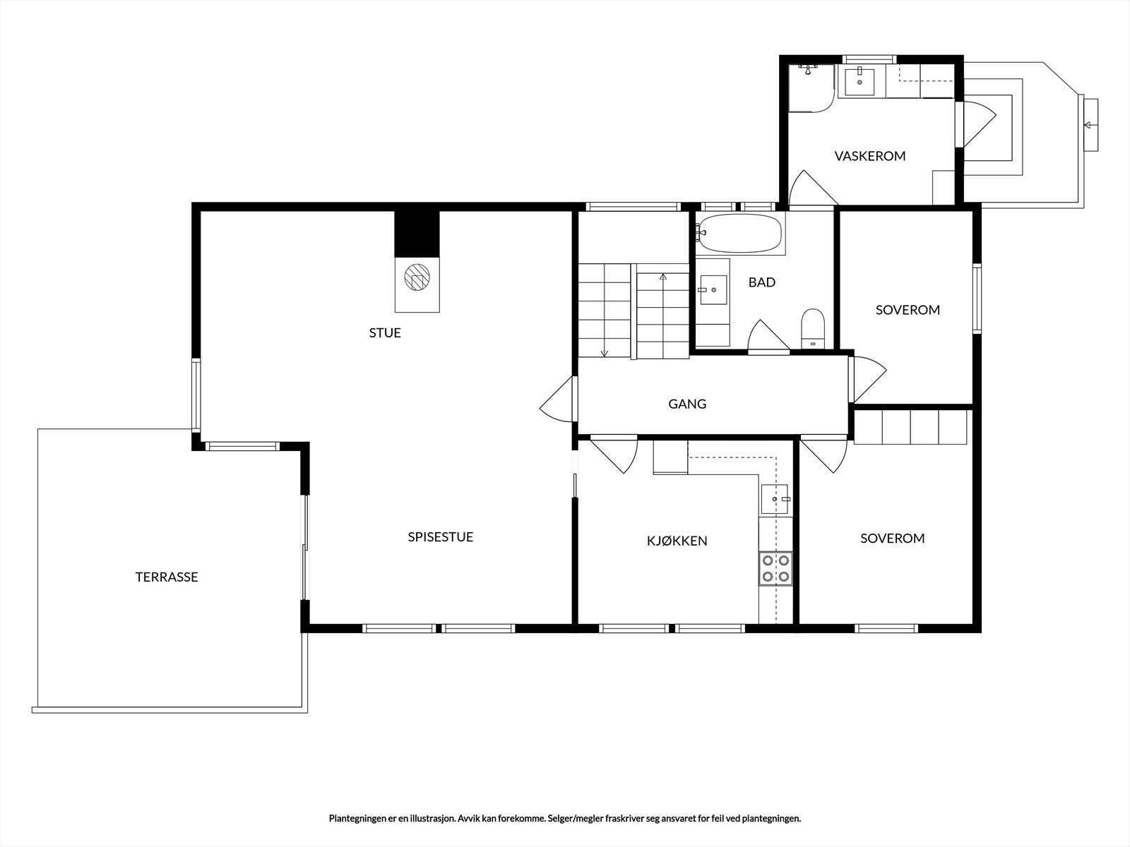
Om boligen
Velholdt bolig over tre plan med moderne standard og gjennomtenkte løsninger. Boligen fremstår lys og romslig med flere oppholdsrom, to bad, praktisk vaskerom og rikelig med lagringsplass. Her får du en god kombinasjon av funksjonalitet og komfort, med blant annet peisovn, solrik terrasse og direkte adkomst til garasje.
- Gjennomført og velholdt bolig over tre plan
- Flott standard og tidsriktige materialvalg
- God planløsning med luftige rom
- Innredet loftsrom med to soverom og stue (ikke omsøkt)
- Lyse og delikate overflater
- Peisovn som gir varme og hyggelig atmosfære
- Vaskerom, fire boder og direkte adkomst til garasje
- God lagringsplass
- Solrik terrasse og pent opparbeidet hage
- Fantastisk sjøutsikt og flotte turmuligheter
- Kort vei til sjø og gode båt- og bademuligheter
- Gjennomført og velholdt bolig over tre plan
- Flott standard og tidsriktige materialvalg
- God planløsning med luftige rom
- Innredet loftsrom med to soverom og stue (ikke omsøkt)
- Lyse og delikate overflater
- Peisovn som gir varme og hyggelig atmosfære
- Vaskerom, fire boder og direkte adkomst til garasje
- God lagringsplass
- Solrik terrasse og pent opparbeidet hage
- Fantastisk sjøutsikt og flotte turmuligheter
- Kort vei til sjø og gode båt- og bademuligheter
NB: Knappen for å vise hele beskrivelsen har kun en visuell effekt.
NB: Knappen for å vise hele beskrivelsen har kun en visuell effekt.
Salgsoppgaven beskriver vesentlig og lovpålagt informasjon om eiendommen
Se komplett salgsoppgaveNyttige lenker
Nærområdet
Nordvik Stavanger
Vi vet hva det er verdt
Annonseinformasjon
| FINN-kode | 432128288 |
|---|---|
| Sist endret | 30. des. 2025 11:17 |
| Referanse | 43-0248/25 |
Annonsene kan være mangelfulle i forhold til lovpålagt opplysningsplikt. Før bindende avtale inngås oppfordres interessenter til å innhente komplett informasjon fra meglerforetaket, selger eller utleier.





























































