Bildegalleri

Store dører åpner opp til og terrasse på solfylte dager. I Hyllveien kan du nyte stillheten og roen og høre fuglene kvitre, på en stor og flott balkong. Du bor både skjermet og sentralt rett ved eiendommen ligger Oslo Tennisklubb.
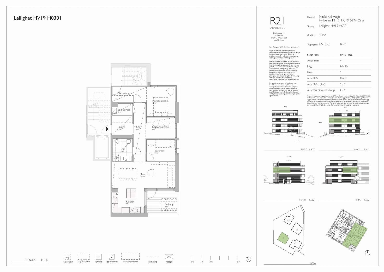
Hyllveien Madserud - Ny, utsøkt leilighet med høy standard i eksklusivt & rolig område. Heis og *garasjeplass.
Nøkkelinfo
- Boligtype
- Leilighet
- Eieform
- Selveier
- Soverom
- 2
- Internt bruksareal
- 85 m² (BRA-i)
- Bruksareal
- 90 m²
- Eksternt bruksareal
- 5 m² (BRA-e)
- Balkong/Terrasse
- 8 m² (TBA)
- Etasje
- 3
- Byggeår
- 2025
- Rom
- 4
- Tomt
- Eiet
Om boligen
Vi har gleden av å presentere en praktfull leilighet med utsøkte kvaliteter og detaljer, beliggende i et ettertraktet og tilbaketrukket område. Leiligheten er del av det flotte prosjektet Hyllveien og er nå ferdigstilt og innflyttingsklar!
Høydepunkter:
- Solrik balkong
- Kjøkken fra Poliform med integrerte hvitevarer fra Gaggenau og Siemens
- Delikat bad med innredning fra Haven og Tapwell armatur
- 2 gode soverom
- Vannbåren gulvvarme
- Generøse vindusflater
- Garasjeplass kan kjøpes
- Eksklusivt sameie med kun 20 leiligheter
Salgsoppgaven beskriver vesentlig og lovpålagt informasjon om eiendommen
Se komplett salgsoppgaveNyttige lenker
Nærområdet

PrivatMegleren Nyeboliger Oslo
Annonseinformasjon
| FINN-kode | 432123319 |
|---|---|
| Sist endret | 16. feb. 2026 11:27 |
| Referanse | 304259035 |
Annonsene kan være mangelfulle i forhold til lovpålagt opplysningsplikt. Før bindende avtale inngås oppfordres interessenter til å innhente komplett informasjon fra meglerforetaket, selger eller utleier.
































