Bildegalleri

Velkommen til Odelsvegen 28, presentert av Even Østmo Rabo v/EIE Jessheim.

Moderne 1-roms selveier m/​alkove, balkong og garasje. Gangavstand til tog, 13 min kjøring fra OSL. Felles v.v. og fyring

Prisantydning2 800 000 kr
Totalpris
2 889 410 kr
Omkostninger
81 470 kr
Fellesgjeld
7 940 kr
Felleskost/mnd.
2 581 kr
Fellesformue
9 601 kr
Kommunale avg.
8 155 kr per år
Formuesverdi
665 148 kr

Nøkkelinfo

Boligtype
Leilighet
Eieform
Eier (Selveier)
Soverom
0
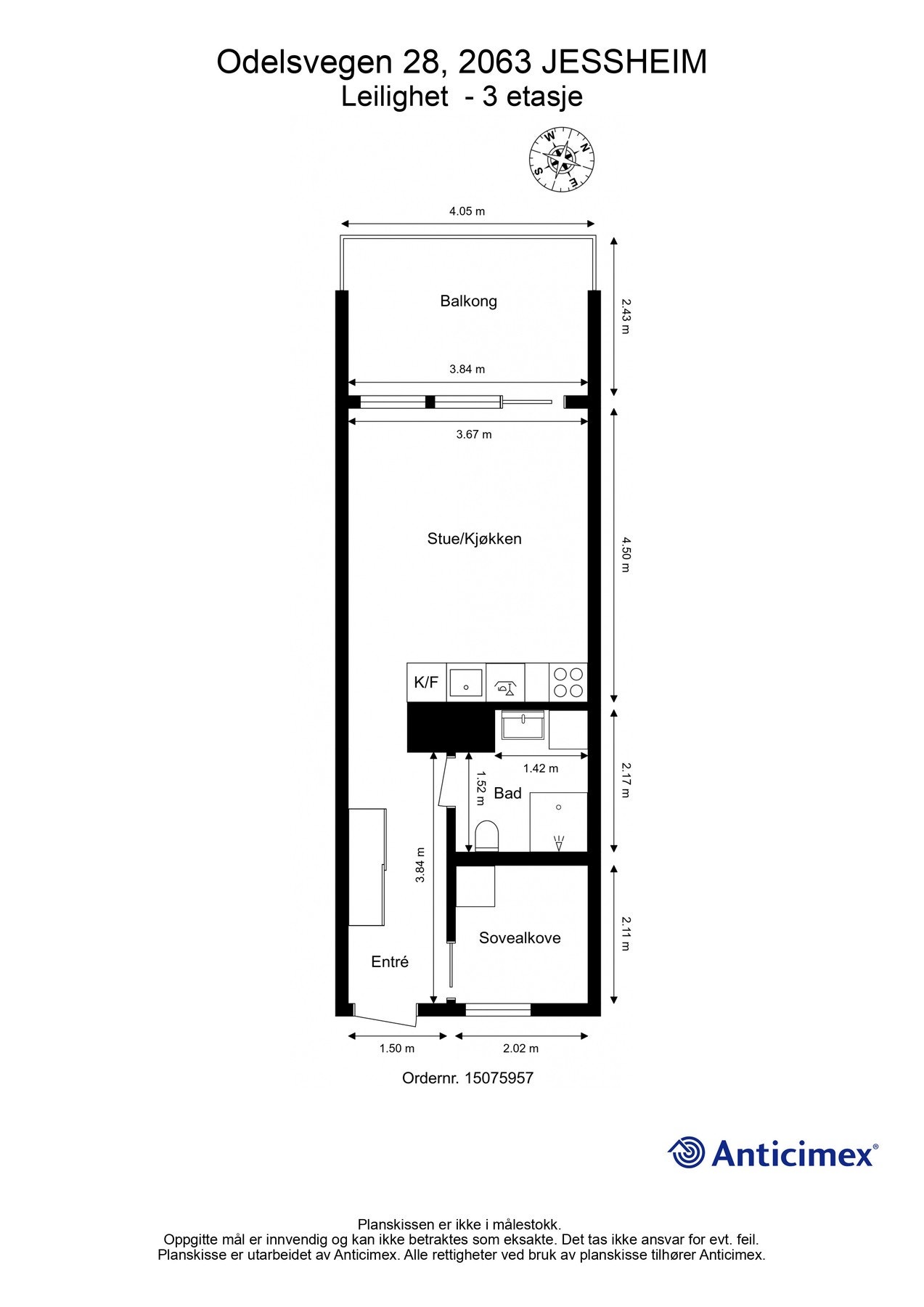
Internt bruksareal
34 m² (BRA-i)
Bruksareal
38 m²
Eksternt bruksareal
4 m² (BRA-e)
Balkong/Terrasse
9 m² (TBA)
Etasje
3
Byggeår
2016
Energimerking
C - Mørkegrønn
Tomteareal
5 259 m² (eiet)

Les mer om bruksareal her

Fasiliteter

Balkong/Terrasse
Garasje/P-plass
Heis
Sentralt
Moderne
Lademulighet
Balansert ventilasjon

Visning

Ta kontakt for å avtale visning.Visningspåmelding

Om boligen

Velkommen til Odelsvegen 28, presentert av Even Østmo Rabo v/EIE Jessheim. Odelsvegen 28 er en pen, moderne 1-roms selveierleilighet i tredje etasje, i bygg fra 2016. Leiligheten har utgang til en dels overbygd, vestvendt balkong på ca. 9 kvm, som vender ut mot grønne fellesarealer med plen og uteplass. Beliggenheten er svært sentral, like ved Coop Obs og i gangavstand til alle fasiliteter som tog og kjøpesenter.

Nærheten til tog og Oslo Lufthavn, gjør dette til en utmerket pendlerleilighet. Til leiligheten følger også en garasjeplass i felles anlegg. Leiligheten har en luftig stue med høye vinduer og åpen kjøkkenløsning. Kjøkkenet har dels integrerte hvitevarer. Videre er det et flislagt bad med opplegg for vaskemaskin, samt garderobeløsning i gang og en smart alkove. Varmtvann og sentralfyring er felles og leiligheten har balansert ventilasjon.

Mangler du egenkapital? Boligen kan kjøpes med Finit Deleie.

Velkommen til visning!

Salgsoppgaven beskriver vesentlig og lovpålagt informasjon om eiendommen

Se komplett salgsoppgave

Nærområdet

Annonseinformasjon

FINN-kode432048909
Sist endret24. okt. 2025 04:07
Referanse20251360

Rapporter annonse

Annonsene kan være mangelfulle i forhold til lovpålagt opplysningsplikt. Før bindende avtale inngås oppfordres interessenter til å innhente komplett informasjon fra meglerforetaket, selger eller utleier.