Bildegalleri

Velkommen til Haugenesveien 3!
FEVIK
Innholdsrik familiebolig med garasje. Inngjerdet og hyggelig hage. Sommerstue.
Prisantydning3 390 000 kr
Nøkkelinfo
- Boligtype
- Tomannsbolig
- Eieform
- Eier (Selveier)
- Soverom
- 3
- Internt bruksareal
- 118 m² (BRA-i)
- Bruksareal
- 132 m²
- Innglasset balkong
- 14 m² (BRA-b)
- Balkong/Terrasse
- 42 m² (TBA)
- Byggeår
- 1979
- Energimerking
- F - Oransje
- Renovert år
- 2017
- Tomteareal
- 278 m² (eiet)
Visning
Eiendomsmegler Norge sine visninger har påmelding. Påmelding gjøres enkelt ved å benytte knappen under. Ta kontakt med megler dersom oppsatt tidspunkt ikke passer. Det vil ikke bli avholdt visning uten påmelding. Husk å laste ned salgsoppgaven digitalt før visning. Velkommen til en hyggelig visning!
VisningspåmeldingOm boligen
Velholdt bolig med god og innholdsrik planløsning for familien.
Livet utendørs nytes til fulle i en inngjerdet hage med sommerstue, redskapsbod, terrasse og mye boltreplass.
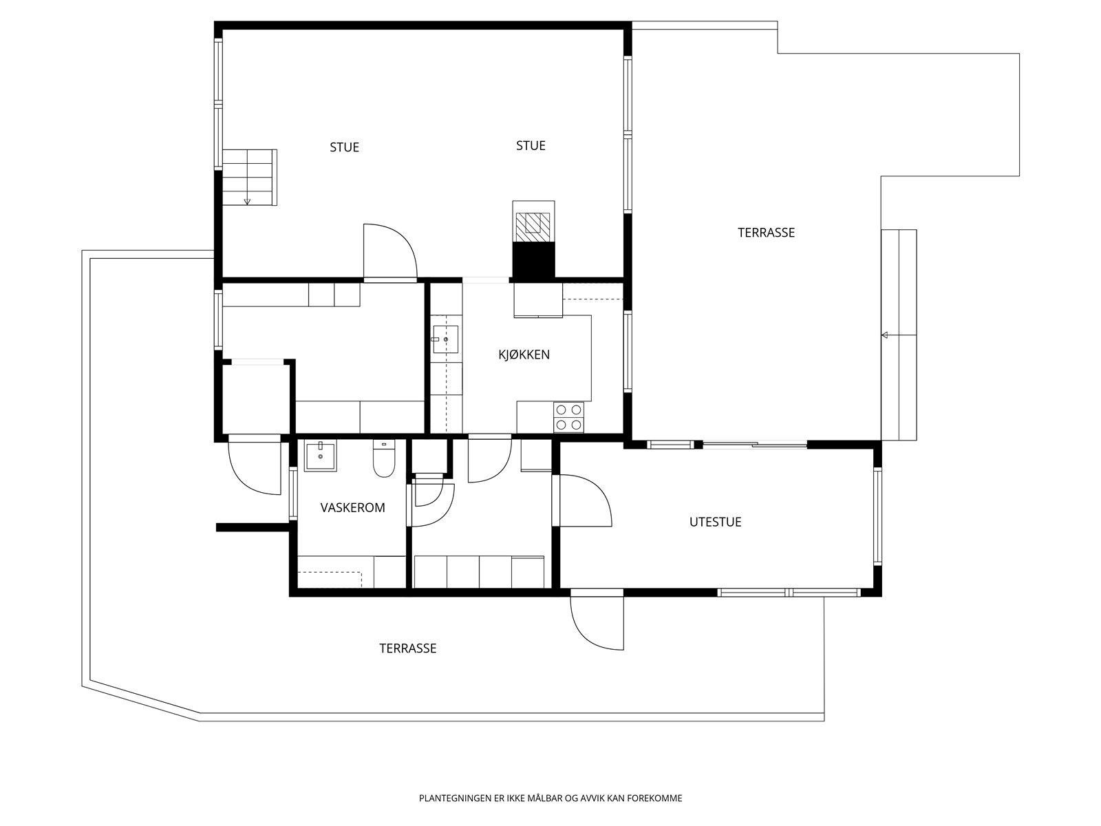
Boligen er over to plan og har fine kvaliteter som kan passe perfekt for familien. I første etasje finner du entré, stue, kjøkken, bi-inngang og vaskerom/bad. I andre etasje er det bad, TV-stue og tre soverom.
Haugenes er et ideelt bosted for familier som ønsker å ha nærheten til flotte friområder, trygge og barnevennlige omgivelser samt sentral beliggenhet både i forhold til Arendal og Grimstad. På Feviktoppen har man et godt utvalg av servicetilbud. I dette området ligger også Fevik barne- og ungdomsskole og Fevikhallen.
Livet utendørs nytes til fulle i en inngjerdet hage med sommerstue, redskapsbod, terrasse og mye boltreplass.
Boligen er over to plan og har fine kvaliteter som kan passe perfekt for familien. I første etasje finner du entré, stue, kjøkken, bi-inngang og vaskerom/bad. I andre etasje er det bad, TV-stue og tre soverom.
Haugenes er et ideelt bosted for familier som ønsker å ha nærheten til flotte friområder, trygge og barnevennlige omgivelser samt sentral beliggenhet både i forhold til Arendal og Grimstad. På Feviktoppen har man et godt utvalg av servicetilbud. I dette området ligger også Fevik barne- og ungdomsskole og Fevikhallen.
NB: Knappen for å vise hele beskrivelsen har kun en visuell effekt.
NB: Knappen for å vise hele beskrivelsen har kun en visuell effekt.
Salgsoppgaven beskriver vesentlig og lovpålagt informasjon om eiendommen
Se komplett salgsoppgaveNyttige lenker
Nærområdet
Eiendomsmegler Norge Grimstad
Det viktigste stedet i Norge er der du bor
Annonseinformasjon
| FINN-kode | 432029068 |
|---|---|
| Sist endret | 08. des. 2025 14:31 |
| Referanse | 58250148 |
Annonsene kan være mangelfulle i forhold til lovpålagt opplysningsplikt. Før bindende avtale inngås oppfordres interessenter til å innhente komplett informasjon fra meglerforetaket, selger eller utleier.








































